Bénéficiez des services de nos partenaires locaux soigneusement sélectionnés
pour vous accompagner dans votre parcours d'achat immobilier

Appartement paris 5 pièce(s) 84 m2

— Paris-10e 75010 —
790 000 €
84 m²
5 pièces

Nos partenaires locaux
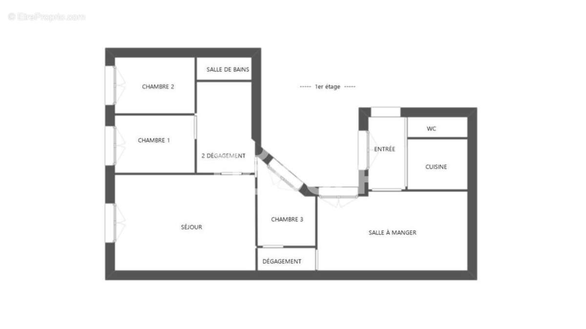
Appartement familial traversant, 3 chambres, Rue des Petites Écuries (10e arrondissement) Au coeur d'un quartier vivant et recherché du 10e arrondissement, rue des Petites Écuries, découvrez ce bel appartement familial de 84 m², situé dans une copropriété ancienne, bien entretenue. Ce bien traversant et lumineux se compose de : -une salle à manger conviviale avec cuisine semi-ouverte, -un séjour offrant de beaux volumes et le charme de l'ancien ( parquet, moulures, belle hauteur sous plafond), -trois chambres bien agencées, avec des rangements, idéales pour une famille, -une salle de bains et des WC séparés -une cave L'appartement séduit par son plan fonctionnel, son charme de l'ancien et sa proximité immédiate des commerces, écoles et transports (métros Château d'Eau, Bonne Nouvelle, Strasbourg-Saint-Denis). Un bien rare dans le secteur, alliant charme de l'ancien et vie de quartier dynamique. A visiter sans tarder ! (3.95 % honoraires TTC à la charge de l'acquéreur.) Copropriété de 38 lots - dont 25 lots habitation. (Pas de procédure en cours). Charges annuelles : 1908 euros.
Voir plus

Bien en copropriété. Nombre de lots : 38. Charges de copropriété : 1908 €.
Honoraires d'agence de 3.95% à la charge de l'acquéreur
DPE
A
B
C
D
E
F
G
GES
A
B
C
D
E
F
G

Prêt immobilier

Vous souhaitez connaître votre capacité d’emprunt et trouver le meilleur crédit immobilier ?
Réaliser une simulation gratuite

Appartement à PARIS-10E
Appartement à PARIS-10E
Appartement à PARIS-10E
Appartement à PARIS-10E
Appartement à PARIS-10E
Appartement à PARIS-10E
Ce site est protégé par reCAPTCHA la Politique de confidentialité et les Conditions d’utilisation de Google s’appliquent.
Obtenir un prêt immobilier au meilleur taux ?

En poursuivant votre navigation sans modifier vos paramètres, vous acceptez l'utilisation de cookies susceptibles de réaliser des statistiques de visite. Cliquez ici pour plus d'informations