Bénéficiez des services de nos partenaires locaux soigneusement sélectionnés
pour vous accompagner dans votre parcours d'achat immobilier

Barr, ensemble immobilier d'habitation

— Barr 67140 —
258 600 €
18 pièces

Nos partenaires locaux
Au coeur du centre historique de Barr.

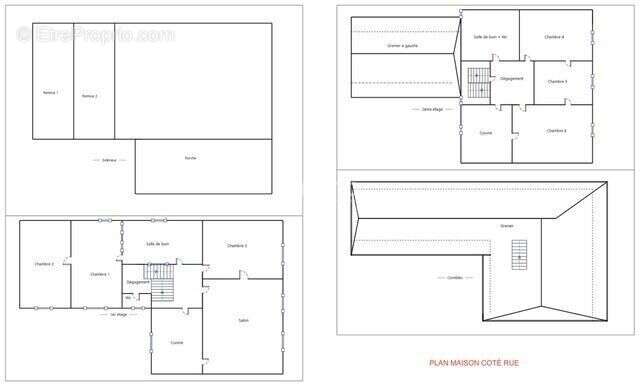
Cet ensemble immobilier, donnant sur une cour intérieure privative, est composé de deux maisons d'habitation de 233 m2 et 64 m2 avec leurs combles aménageables, un espace de verdure rattaché à une des maisons, 3 remises de 11 m2 chacune et une grande cave de 46 m2. De grands travaux de rénovation sont à prévoir.
Ce bien est exempté de DPE.

Avec un prix de vente attractif de 258 600 €, cet ensemble immobilier, à fort potentiel, est idéal pour les investisseurs ou les familles nombreuses, en recherche d'un espace généreux et calme. Il offre le choix de la transformation :
Appartements indépendants, bureaux ou tout simplement un grand espace de vie dans cette ville, idéalement située entre Strasbourg et Colmar.
Barr vous apporte un cadre de vie paisible et pittoresque, avec ses rues pavées, ses maisons à colombages, ses vignobles environnants, son accès direct à l'autoroute et ses nombreuses infrastructures : commerces, gare, écoles, centres aérés, collège, lycée, pôle santé, maison de retraite, centre sportif, etc.... Vous pourrez ainsi profiter de la tranquillité de la campagne tout en étant à proximité des commodités et des attractions de la région.

Contactez-moi dès aujourd'hui pour découvrir les potentialités de ce bien. À très vite !
Prix hors honoraires d'agence 249 000 €.
Prix honoraires inclus 258 600 €.

Annonce publiée par Christine Champagne Giovannetti (EI) votre agent commercial en immobilier LF immo à Barr, 67140 immatriculé au RSAC de Colmar sous le n°799 8[Coordonnées masquées]. Consultez nos tarifs sur le site LF immo.

Les informations sur les risques auxquels ce bien est exposé sont disponibles sur le site Géorisques : www.georisques.gouv.fr.
Voir plus

Référence: fr071909
Honoraires d'agence de 3.86% à la charge de l'acquéreur

Prêt immobilier

Vous souhaitez connaître votre capacité d’emprunt et trouver le meilleur crédit immobilier ?
Réaliser une simulation gratuite

Appartement à BARR
Appartement à BARR
Appartement à BARR
Appartement à BARR
Ce site est protégé par reCAPTCHA la Politique de confidentialité et les Conditions d’utilisation de Google s’appliquent.
Obtenir un prêt immobilier au meilleur taux ?

En poursuivant votre navigation sans modifier vos paramètres, vous acceptez l'utilisation de cookies susceptibles de réaliser des statistiques de visite. Cliquez ici pour plus d'informations