Bénéficiez des services de nos partenaires locaux soigneusement sélectionnés
pour vous accompagner dans votre parcours d'achat immobilier

A vendre t4 -80,99 m² dernier etage dans résidence neuve livrée avec deux balcons

— Saint-Nazaire 44600 —
439 000 €
81 m²
4 pièces
parkingbalcon/terrasseascenseur

Nos partenaires locaux
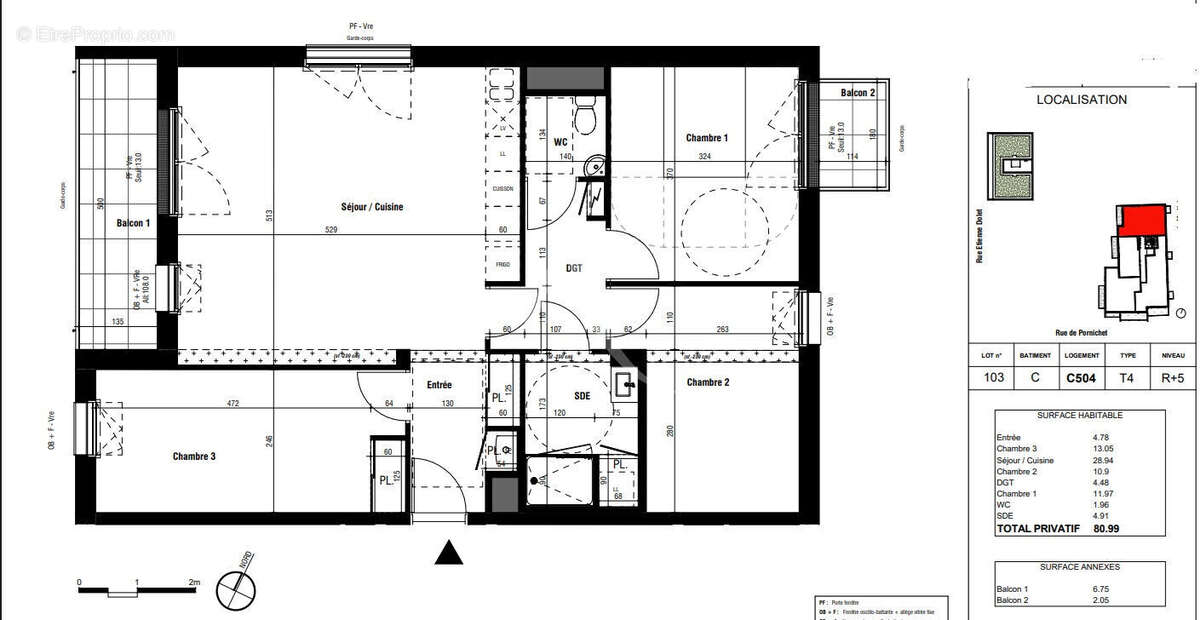
Découvrez une résidence neuve idéalement située à Saint-Nazaire, à deux pas du littoral et des plaisirs de la vie balnéaire. Entre plages accessibles à pied, commerces de proximité, transports et services du quotidien, profitez d'un cadre de vie exceptionnel où confort moderne et douceur de vivre se rencontrent. La résidence est livrée : il ne vous reste plus qu'à poser vos valises. Cet appartement T4 de 80,99 m² est situé au dernier étage d'une résidence neuve récemment livrée. Il s'ouvre sur une entrée de 4,78 m² équipée d'un placard. Le séjour-cuisine, d'une surface de 28,94 m², donne accès à un premier balcon de 6,75 m². L'appartement comprend trois chambres : une première chambre de 11,97 m² avec accès direct à un second balcon de 2,05 m², une deuxième chambre de 10,90 m² et une troisième chambre de 13,05 m². Un dégagement de 4,48 m² dessert les différentes pièces. La salle d'eau mesure 4,91 m² et les WC séparés ont une surface de 1,96 m². L'ensemble offre une organisation fonctionnelle, deux espaces extérieurs et plusieurs rangements intégrés. La résidence est située à proximité des commodités et du littoral. Prix: 439 000 euros TTC FRAIS DE NOTAIRE OFFERT REF:34667OceC504 "Les informations sur les risques auxquels ce bien est exposé sont disponibles sur le site Géorisques : www.georisques.gouv.fr" Copropriété de 52 lots - dont 52 lots habitation.(Pas de procédure en cours).
Voir plus

Honoraires à la charge du vendeur.
Barème des honoraires

Prêt immobilier

Vous souhaitez connaître votre capacité d’emprunt et trouver le meilleur crédit immobilier ?
Réaliser une simulation gratuite

Appartement à SAINT-NAZAIRE
Appartement à SAINT-NAZAIRE
Appartement à SAINT-NAZAIRE
Ce site est protégé par reCAPTCHA la Politique de confidentialité et les Conditions d’utilisation de Google s’appliquent.
Obtenir un prêt immobilier au meilleur taux ?

En poursuivant votre navigation sans modifier vos paramètres, vous acceptez l'utilisation de cookies susceptibles de réaliser des statistiques de visite. Cliquez ici pour plus d'informations