Appartement récent - type t2 - 40.19 m2 - vue mer - résidence saint goustan

— Le Croisic 44490 —
392 000 €
40 m²
2 pièces
parkingbalcon/terrasse

BIEN SUR LE MARCHE - Cobalt Immobilier a le plaisir de vous proposer cet appartement récent de Type T2, de plus de 40 m2 au 2ème étage avec ascenseur d’une résidence sécurisée datant du 19e siècle. Situé dans un secteur privilégié du Croisic, face à l'océan, à seulement 300 mètres du célèbre Océarium, à 450 mètres du port de pêche, à proximité de la navette reliant Le Croisic à Pen Bron 'Le Galipetant' et à seulement 1 km du centre ville, il sera parfait pour vous ressourcer.
Avant de vous décrire l'appartement, nous nous devons de vous raconter les multiples vies de ce bâtiment protégé, historique et emblématique du Croisic érigé en 1844. Tout d’abord Hôtel - Casino 'Etablissement de bains DESLANDES-ORIERE', puis sanatorium et centre hélio - marin, la résidence Saint Goustan est redevenue une résidence de tourisme au début des années 2000. Seule, l’ancienne partie du bâtiment, accueillant, à l’origine, le casino, puis transformée en chapelle par l’Ordre Hospitalier des Frères de St-Jean de Dieu, n’avait pas été restaurée.
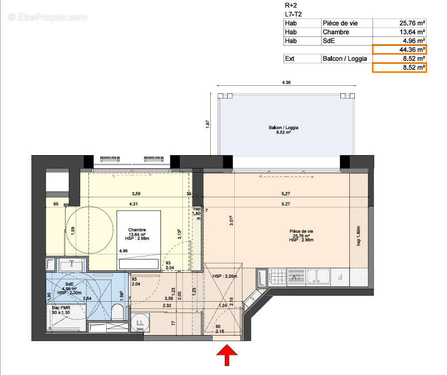
L'appartement se compose d'une entrée avec placards, d'une pièce de vie de plus de 25 m2 avec sa cuisine aménagée et semi-équipée (plaques de cuisson, hotte, réfrigérateur-top) exposée ouest, le tout donnant sur le balcon, idéal pour profiter de cette vue imprenable sur l'océan tout en étant confortablement installé, d'une chambre avec placards retraçant une partie de vie de l'ancienne Chapelle grâce à ses vitraux d'origine ainsi que d'une salle d'eau (douche à l'italienne, douche parapluie) avec WC suspendu.
Une place de stationnement aérienne privative et un espage vert en commun viennent parfaire ce bien.
Les atouts : secteur idyllique et recherché, résidence emblématique du Croisic, vue imprenable sur l'océan, garanties décennales.
FRAIS DE NOTAIRE REDUITS / PRIX PROMOTEUR
Procédure en cours
Bien en copropriété. Lot référence L7. Charges de copropriété de 528 € / trimestre soit 176 € / mois. Estimations des coûts annuels des énergies compris entre 440 € et 640 € (abonnements compris). Prix indexés au 1er janvier 2025. Honoraires d'agence à la charge du Vendeur. Prix de vente : 392 000 €. Pour de plus amples renseignements, veuillez contacter Mathilde LAMBERT soit par téléphone au [Coordonnées masquées] soit par mail [Coordonnées masquées].
Réf : ML/B-241-1 Et pour plus d’exclusivités en avant première, abonnez-vous à @cobaltimmobilier sur Instagram et Facebook !
Voir plus

Bien en copropriété.
Honoraires à la charge du vendeur.
Barème des honoraires
DPE
A
B
C
D
E
F
G
GES
A
B
C
D
E
F
G

Prêt immobilier

Vous souhaitez connaître votre capacité d’emprunt et trouver le meilleur crédit immobilier ?
Réaliser une simulation gratuite

Appartement à LE CROISIC
Appartement à LE CROISIC
Appartement à LE CROISIC
Appartement à LE CROISIC
Appartement à LE CROISIC
Appartement à LE CROISIC
Appartement à LE CROISIC
Appartement à LE CROISIC
Appartement à LE CROISIC
Appartement à LE CROISIC
Appartement à LE CROISIC
Appartement à LE CROISIC
Appartement à LE CROISIC
Appartement à LE CROISIC
Ce site est protégé par reCAPTCHA la Politique de confidentialité et les Conditions d’utilisation de Google s’appliquent.
Obtenir un prêt immobilier au meilleur taux ?

En poursuivant votre navigation sans modifier vos paramètres, vous acceptez l'utilisation de cookies susceptibles de réaliser des statistiques de visite. Cliquez ici pour plus d'informations