Immeuble de rapport à osséja

— Osseja 66340 —
165 000 €
113 m²
balcon/terrasse

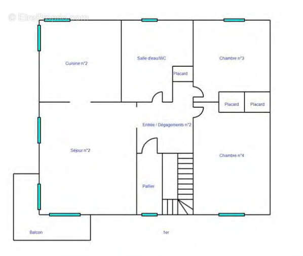
Osséja, immeuble de rapport, sur parcelle cloturée de 360m2, comprenant 2 appartements similaires, en rez de chaussée et 1er étage.Chaque appartement dispose d'environ 55 m2 habitables avec dégagement d'entrée, salle de bains et wc, 2 chambres doubles avec placards, séjour et cuisine séparée (voir croquis de distribution); Le toit (couverture) a été rénové en 1995 par de l'ardoise naturelle, toutes les fenêtres ont été remplacé en 2010 par du double vitrage.Chaque appartement est indépendant en comptage eau/électricité.Les deux appartements sont actuellements loués en bail d'habitation vide (3 ans), loyer de 375€/mensuel par appartement.2 caves également attenant à la bâtisse.
Voir plus

Référence: 2919
Honoraires à la charge du vendeur.
Barème des honoraires
DPE
A
B
C
D
E
F
G
GES
A
B
C
D
E
F
G

Prêt immobilier

Vous souhaitez connaître votre capacité d’emprunt et trouver le meilleur crédit immobilier ?
Réaliser une simulation gratuite

Appartement à OSSEJA
Appartement à OSSEJA
Appartement à OSSEJA
Appartement à OSSEJA
Appartement à OSSEJA
Appartement à OSSEJA
Appartement à OSSEJA
Appartement à OSSEJA
Appartement à OSSEJA
Appartement à OSSEJA
Ce site est protégé par reCAPTCHA la Politique de confidentialité et les Conditions d’utilisation de Google s’appliquent.
Obtenir un prêt immobilier au meilleur taux ?

En poursuivant votre navigation sans modifier vos paramètres, vous acceptez l'utilisation de cookies susceptibles de réaliser des statistiques de visite. Cliquez ici pour plus d'informations