Maison neuve t3 bis à beignon - opportunité à ne pas manquer !

— Beignon 56380 —
203 190 €
71 m² / 258 m²
4 pièces
parkingbalcon/terrassejardin

Découvrez avec CHT Immobilier cette maison neuve, située dans la Résidence HORIZON BROCELIANDE.
Idéalement placée à proximité des commerces et des écoles, cette propriété offre un cadre de vie pratique et paisible.
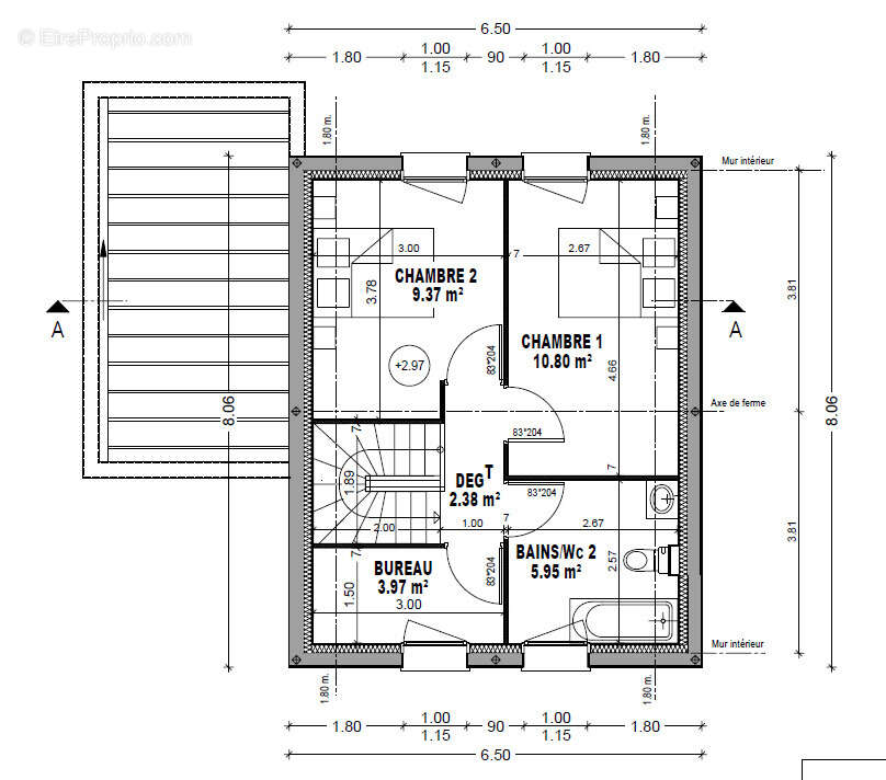
Construite selon la norme RT 2020, cette maison allie modernité et confort. Au rez-de-chaussée, vous trouverez une entrée accueillante, une cuisine aménagée et équipée ouverte sur un spacieux salon-séjour, ainsi qu’une salle de bains fonctionnelle. À l’étage, un dégagement dessert deux chambres, un bureau idéal pour le télétravail ou un espace de lecture, et une salle de bains avec WC.
Le bien dispose également d’un garage attenant, parfait pour votre véhicule ou pour du rangement supplémentaire. Le tout est édifié sur un terrain clôturé sur trois côtés d’environ 258 m2, offrant un espace extérieur agréable pour profiter des beaux jours.
Ce bien représente une opportunité rare : une maison neuve avec en plus des avantages financiers tels que des honoraires d’agence et des frais de notaire réduits.
Pour plus d’informations ou pour organiser une visite, n’hésitez pas à contacter CHT Immobilier au [Coordonnées masquées]. Nous serons ravis de vous accompagner dans votre projet immobilier !
DPE A. Les informations sur les risques auxquels ce bien est exposé sont disponibles sur le site Géorisques : www.georisques.gouv.fr.
Vous avez un projet immobilier sur le secteur de Brocéliande ? Pour vendre, acheter ou louer une maison à Plélan le Grand, Guer, Beignon, Saint Malo de Beignon, Porcaro, Augan, Monteneuf, Concoret, Campénéac, Paimpont, Saint Péran, Iffendic, Monterfil, Montfort sur Meu, Saint Thurial, Bovel, Loutehel, Val d'Anast, Maxent, Treffendel, Saint Malon sur Mel, Baulon... contactez nous. Sept conseillers à votre service, trois vitrines à Plélan le grand, Saint Cyr Coëtquidan et Beignon et publication de nos annonces sur plus de 80 sites internet. Plus d'offres sur cht-immobilier.com
Voir plus

Référence: 3181
Honoraires d'agence de 4.2% à la charge de l'acquéreur
Barème des honoraires
DPE
A
B
C
D
E
F
G
GES
A
B
C
D
E
F
G

Prêt immobilier

Vous souhaitez connaître votre capacité d’emprunt et trouver le meilleur crédit immobilier ?
Réaliser une simulation gratuite

Maison à BEIGNON
Maison à BEIGNON
Maison à BEIGNON
Maison à BEIGNON
Maison à BEIGNON
Maison à BEIGNON
Maison à BEIGNON
Maison à BEIGNON
Maison à BEIGNON
Maison à BEIGNON
Maison à BEIGNON
Ce site est protégé par reCAPTCHA la Politique de confidentialité et les Conditions d’utilisation de Google s’appliquent.
Obtenir un prêt immobilier au meilleur taux ?

En poursuivant votre navigation sans modifier vos paramètres, vous acceptez l'utilisation de cookies susceptibles de réaliser des statistiques de visite. Cliquez ici pour plus d'informations