Bénéficiez des services de nos partenaires locaux soigneusement sélectionnés
pour vous accompagner dans votre parcours d'achat immobilier

Plateau de la croix rousse

— Lyon-4e 69004 —
306 000 €
52 m²
2 pièces
parking

Nos partenaires locaux
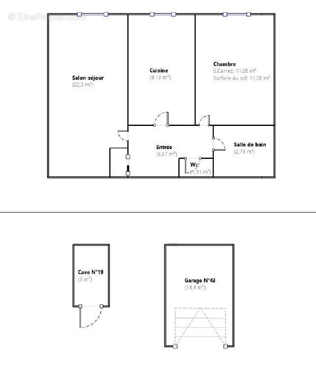
Au coeur du quartier très prisé de la Croix Rousse, à proximité immédiate de toutes les commodités, l'Agence PEDRINI vous propose de visiter cet appartement T2 de 51.52 m2.
Au 1er étage d'un bel immeuble de standing construit par UTEI en 1999, il se compose d'une entrée, d'un séjour carrelé de 22 m2 exposé plein Ouest, d'une cuisine séparée, d'une chambre en parquet, d'une salle de bains et sanitaire.
Un cave et un garage en sous-sol complètent ce bien.
Metro Croix rousse à 3 mn à pied, 2 mn à pied de Monoprix, 5mn à pied de la Grande rue de la Croix Rousse.
Un bien à visiter rapidement.
Pour toute information compélmentaire et pour uen visite, Pascal SAUZAY [Coordonnées masquées]
Voir plus

Référence: 2761
Bien en copropriété. Nombre de lots : 24. Charges de copropriété : 1092 €.
Honoraires d'agence de 5.52% à la charge de l'acquéreur
DPE
A
B
C
D
E
F
G
GES
A
B
C
D
E
F
G

Prêt immobilier

Vous souhaitez connaître votre capacité d’emprunt et trouver le meilleur crédit immobilier ?
Réaliser une simulation gratuite

Appartement à LYON-4E
Appartement à LYON-4E
Appartement à LYON-4E
Appartement à LYON-4E
Appartement à LYON-4E
Appartement à LYON-4E
Appartement à LYON-4E
Appartement à LYON-4E
Appartement à LYON-4E
Appartement à LYON-4E
Ce site est protégé par reCAPTCHA la Politique de confidentialité et les Conditions d’utilisation de Google s’appliquent.
Obtenir un prêt immobilier au meilleur taux ?

En poursuivant votre navigation sans modifier vos paramètres, vous acceptez l'utilisation de cookies susceptibles de réaliser des statistiques de visite. Cliquez ici pour plus d'informations