Maison 7 pièces 176m2

— Saint-Etienne-Du-Bois 85670 —
258 000 €
176 m² / 2 433 m²
7 pièces
parkingjardin

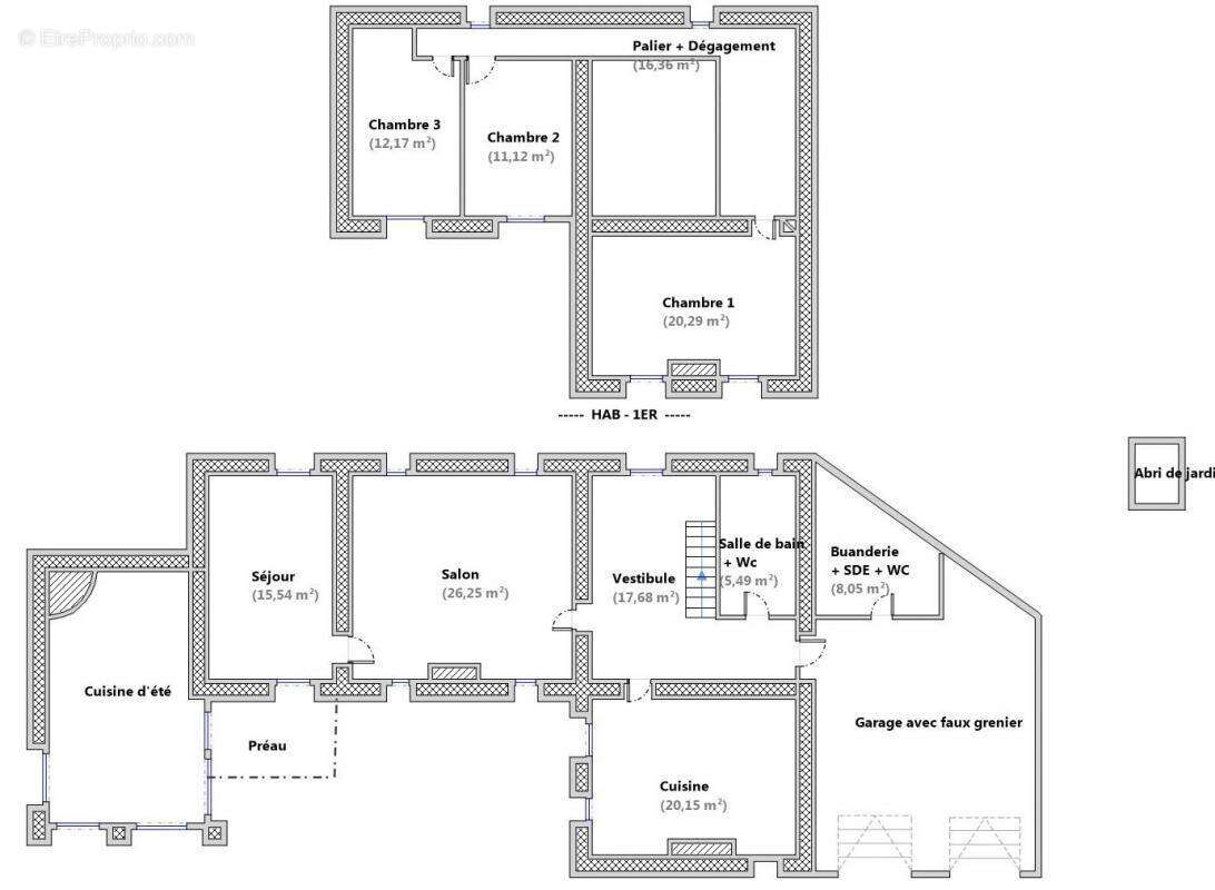
Votre conseillère Stéphanie Fortin Noovimo, vous propose à Saint-Etienne-du-Bois: Au calme de la campagne, découvrez cette maison familiale de 176 m2, exposée plein sud, sur un beau terrain arboré de 1843m2. Le rez-de-chaussée propose : cuisine, salon, salle à manger, chambre, salle de bain et WC, ainsi qu'une buanderie avec salle d'eau et WC. À l'étage : trois chambres. Un garage de 40m2 est attenant et une cuisine d'été avec vue sur la nature vient compléter l'ensemble, idéale pour vos moments conviviaux. Le terrain, composé d'une parcelle principale avec un Puits et d'un jardin complémentaire de 590m2, offre un joli potentiel pour un potager ou des animaux. Maison à rénover, avec principalement l'isolation des murs extérieurs à prévoir : l'occasion d'en faire un lieu de vie à votre image, dans un environnement paisible. Honoraires 8 000EUR fixe et 250 000EUR (prix de vente honoraires exclus). Soit 258 000EUR honoraires inclus. Honoraires à la charge de l'acquéreur. Ref:25352.Votre agent indépendant Noovimo. Nos honoraires sont consultables sur www.noovimo.fr. Les informations sur les risques auxquels ce bien est exposé, sont disponibles sur le site Géorisques: http://www.georisques.gouv.fr - Annonce rédigée et publiée par un Agent Mandataire indépendant inscrit au RSAC sous le no843444357
Cette annonce vous est proposée par NOOVIMO OUEST - - NoRSAC: , Enregistré à de - Annonce rédigée et publiée par un Agent Mandataire -
Voir plus

Référence: 74_SFN-0025352
Honoraires d'agence de 3.2% à la charge de l'acquéreur
DPE
A
B
C
D
E
F
G
GES
A
B
C
D
E
F
G

Prêt immobilier

Vous souhaitez connaître votre capacité d’emprunt et trouver le meilleur crédit immobilier ?
Réaliser une simulation gratuite

Maison à SAINT-ETIENNE-DU-BOIS
Maison à SAINT-ETIENNE-DU-BOIS
Maison à SAINT-ETIENNE-DU-BOIS
Maison à SAINT-ETIENNE-DU-BOIS
Maison à SAINT-ETIENNE-DU-BOIS
Maison à SAINT-ETIENNE-DU-BOIS
Maison à SAINT-ETIENNE-DU-BOIS
Maison à SAINT-ETIENNE-DU-BOIS
Maison à SAINT-ETIENNE-DU-BOIS
Maison à SAINT-ETIENNE-DU-BOIS
Ce site est protégé par reCAPTCHA la Politique de confidentialité et les Conditions d’utilisation de Google s’appliquent.
Obtenir un prêt immobilier au meilleur taux ?

En poursuivant votre navigation sans modifier vos paramètres, vous acceptez l'utilisation de cookies susceptibles de réaliser des statistiques de visite. Cliquez ici pour plus d'informations