Maison de caractère,t7,160m², 335000€ dépendance. terrain de 8000m²

— Bernay 27300 —
335 000 €
163 m² / 8 000 m²
7 pièces
parking

A DECOUVRIR !!!

15MN de BERNAY, 20MN de LISIEUX, Accès rapide commerces (à pied), écoles, collèges, gare .............. Secteur recherché.

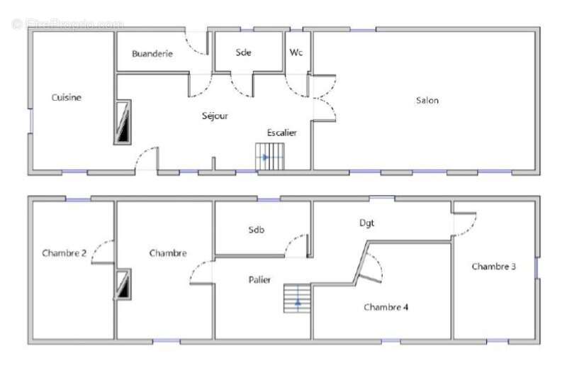
CHARMANTE PROPRIETE avec maison de caractère, offrant: cuisine aménagée, séjour avec cheminée, salon de 44M²env. SdD, wc, buanderie. Etage: palier desservant 4 chambres, SdB wc.

Dépendance: Double garage, cellier, cave, un grand espace aménagé avec coin cuisine, salle d'eau, wc. Etage: combles à finir d'aménager ( possibililité: 2éme habitation sous conditions d'autorisation ou atelier pour activité professionnelle: artisanale ou libérale )

L'ensemble sur un beau terrain plat de 8000M²env. avec une partie en prairie (possibilités: 2 chevaux, poneys, moutons, chèvres, jardin ......)

- ORBEC / LA VESPIERE,
- 8/15MN BROGLIE, MONTREUIL-L'ARGILLE, LIVAROT, VIMOUTIERS, THIBERVILLE, LE SAP-EN-AUGE,
- 20/30MN de LA NEUVE-LYRE, LA BARRE-EN-OUCHE, GACE,
- 50MN de CABOURG, HONFLEUR,
- SNCF: DEAUVILLE, TROUVILLE, CAEN, LISIEUX, ROUEN, BERNAY (1H25 PARIS-St LAZARE) SERQUIGNY, CONCHES, EVREUX, MANTES-LA-JOLIE,
- Accès rapide: A28, D613, D438, D131, D519 ...............

- UN PROJET IMMOBILIER ? Je suis disponible pour en discuter.

- Contactez Gilles GUYET à CAORCHES-SAINT-NICOLAS (27300) en Normandie, Agent commercial, votre conseiller en immobilier OptimHome (Secteur BERNAY) au [Coordonnées masquées] https://www.optimhome.com/conseillers/guyet

- Les honoraires sont à la charge du vendeur.
Les informations sur les risques auxquels ce bien est exposé sont disponibles sur le site Géorisques : www. georisques. gouv. fr.

Contactez Gilles GUYET Entrepreneur Individuel, Agent commercial OptimHome (RSAC N°429 822 141 Greffe de PONT AUDEMER) [Coordonnées masquées] (réf. 597213 )
Voir plus

Référence: 830033193903
Honoraires à la charge du vendeur.
DPE
A
B
C
D
E
F
G
GES
A
B
C
D
E
F
G

Prêt immobilier

Vous souhaitez connaître votre capacité d’emprunt et trouver le meilleur crédit immobilier ?
Réaliser une simulation gratuite

Maison à BERNAY
Maison à BERNAY
Maison à BERNAY
Maison à BERNAY
Maison à BERNAY
Maison à BERNAY
Maison à BERNAY
Maison à BERNAY
Maison à BERNAY
Maison à BERNAY
Maison à BERNAY
Maison à BERNAY
Maison à BERNAY
Maison à BERNAY
Maison à BERNAY
Maison à BERNAY
Maison à BERNAY
Maison à BERNAY
Maison à BERNAY
Maison à BERNAY
Maison à BERNAY
Maison à BERNAY
Maison à BERNAY
Ce site est protégé par reCAPTCHA la Politique de confidentialité et les Conditions d’utilisation de Google s’appliquent.
Obtenir un prêt immobilier au meilleur taux ?

En poursuivant votre navigation sans modifier vos paramètres, vous acceptez l'utilisation de cookies susceptibles de réaliser des statistiques de visite. Cliquez ici pour plus d'informations