Bénéficiez des services de nos partenaires locaux soigneusement sélectionnés
pour vous accompagner dans votre parcours d'achat immobilier

Exclusivité doly - appartement - rue du faubourg saint-honoré, 75008

— Paris-8e 75008 —
749 000 €
53 m²
2 pièces

Nos partenaires locaux
REFAIT À NEUF • PLAN MODULABLE • COUP DE CŒUR

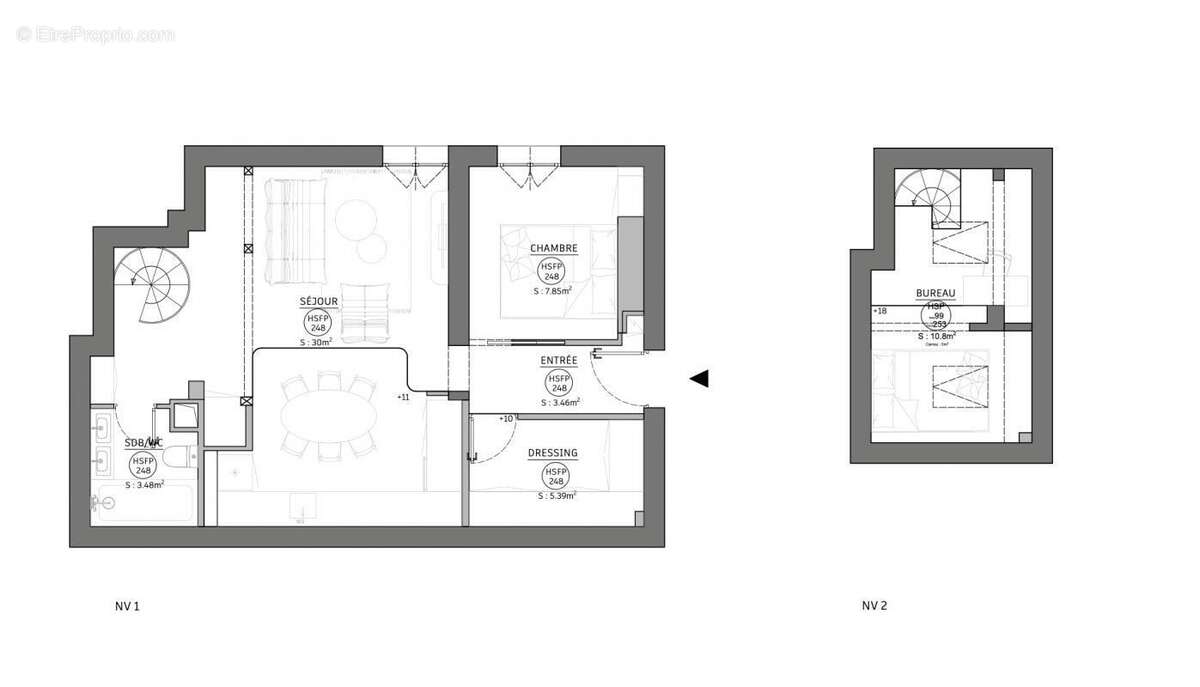
* Plans et projections 3D réalisés par un architecte pour une version 2 pièces — photos actuelles de l'appartement à la fin *

DOLY a le plaisir de vous dévoiler ce superbe appartement entièrement rénové avec des matériaux de qualité, niché au 3ᵉ étage sans ascenseur d'un immeuble ancien de la prestigieuse Rue du Faubourg Saint-Honoré, à deux pas de la Madeleine.

Actuellement configuré en 3 pièces, il se compose d'une entrée, d'un séjour lumineux exposé Ouest agrémenté de poutres apparentes, d'une cuisine indépendante équipée, d'une chambre principale et d'un bureau ou chambre d'enfant, ainsi que d'une salle de bains avec WC.
Une mezzanine vient compléter l'ensemble et offre un espace supplémentaire plein de charme (coin lecture, rangements, ou couchage d'appoint).

Un architecte a imaginé une seconde configuration en 2 pièces spacieux et épuré, dont les plans et projections 3D permettent d'apprécier tout le potentiel de modularité du bien.

Le parfait équilibre entre cachet de l'ancien et confort contemporain, au cœur d'une adresse parisienne d'exception.
Voir plus

Référence: DOM24723-9
Honoraires d'agence de 3.6% à la charge de l'acquéreur
DPE
A
B
C
D
E
F
G
GES
A
B
C
D
E
F
G

Prêt immobilier

Vous souhaitez connaître votre capacité d’emprunt et trouver le meilleur crédit immobilier ?
Réaliser une simulation gratuite

Appartement à PARIS-8E
Appartement à PARIS-8E
Appartement à PARIS-8E
Appartement à PARIS-8E
Appartement à PARIS-8E
Appartement à PARIS-8E
Appartement à PARIS-8E
Appartement à PARIS-8E
Appartement à PARIS-8E
Appartement à PARIS-8E
Appartement à PARIS-8E
Appartement à PARIS-8E
Appartement à PARIS-8E
Appartement à PARIS-8E
Appartement à PARIS-8E
Appartement à PARIS-8E
Appartement à PARIS-8E
Appartement à PARIS-8E
Appartement à PARIS-8E
Ce site est protégé par reCAPTCHA la Politique de confidentialité et les Conditions d’utilisation de Google s’appliquent.
Obtenir un prêt immobilier au meilleur taux ?

En poursuivant votre navigation sans modifier vos paramètres, vous acceptez l'utilisation de cookies susceptibles de réaliser des statistiques de visite. Cliquez ici pour plus d'informations