Bénéficiez des services de nos partenaires locaux soigneusement sélectionnés
pour vous accompagner dans votre parcours d'achat immobilier

Appartement 3 chambre(s) à vendre

— Perpignan 66000 —
110 000 €
91 m²
4 pièces
parkingbalcon/terrasseascenseur

Nos partenaires locaux
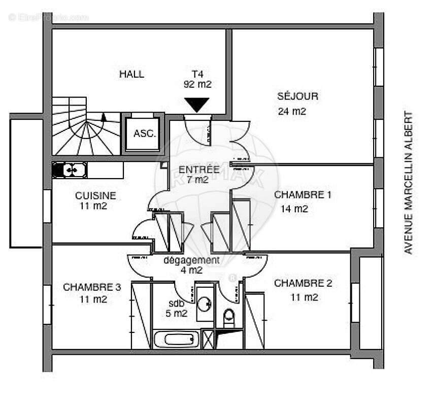
Appartement T4 de 91,90 m² – Quartier Saint-Martin - Parking + Cave
Dans le quartier de Saint-Martin, au 1er étage d’une résidence calme et sécurisée avec ascenseur, découvrez cet appartement traversant de 91,90 m².
Il se compose d’un hall d’entrée avec rangements, d’un salon-séjour, d’une cuisine séparée ouvrant sur un balcon, ainsi que de trois chambres avec placards intégrés, dont une avec balcon privatif. 
Une salle de bains et un WC indépendant viennent compléter l’ensemble.
Un emplacement de stationnement privatif dans un parking fermé et sécurisé
Une cave privative.
Proximité immédiate des commerces, écoles et transports.
Honoraires à la charge du vendeur.
Bien en copropriété : 20 lots.
Montant moyen annuel de la quote-part de charges courantes : 1 445 €.
Nombre de procédure en cours: 0.
Les informations sur les risques auxquels ce bien est exposé sont disponibles sur le site Géorisques : www.georisques.gouv.fr .
Voir plus

Référence: 750171001-92
Honoraires à la charge du vendeur.
DPE
A
B
C
D
E
F
G
GES
A
B
C
D
E
F
G

Prêt immobilier

Vous souhaitez connaître votre capacité d’emprunt et trouver le meilleur crédit immobilier ?
Réaliser une simulation gratuite

Appartement à PERPIGNAN
Appartement à PERPIGNAN
Appartement à PERPIGNAN
Appartement à PERPIGNAN
Appartement à PERPIGNAN
Appartement à PERPIGNAN
Appartement à PERPIGNAN
Appartement à PERPIGNAN
Appartement à PERPIGNAN
Appartement à PERPIGNAN
Appartement à PERPIGNAN
Appartement à PERPIGNAN
Appartement à PERPIGNAN
Appartement à PERPIGNAN
Ce site est protégé par reCAPTCHA la Politique de confidentialité et les Conditions d’utilisation de Google s’appliquent.
Obtenir un prêt immobilier au meilleur taux ?

En poursuivant votre navigation sans modifier vos paramètres, vous acceptez l'utilisation de cookies susceptibles de réaliser des statistiques de visite. Cliquez ici pour plus d'informations