Bénéficiez des services de nos partenaires locaux soigneusement sélectionnés
pour vous accompagner dans votre parcours d'achat immobilier

Exclusivite : a vendre brest triangle d'or saint-louis appartement t2

— Brest 29200 —
120 000 €
38 m²
2 pièces

Nos partenaires locaux
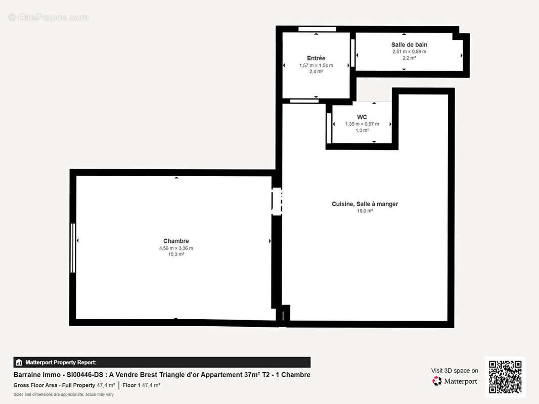
EXCLUSIVITE : A VENDRE BREST TRIANGLE D'OR SAINT-LOUIS Référence : SI00446-DS Découvrez cet appartement de 2 pièces, idéalement situé à Brest, à seulement 3 minutes du tramway et à proximité immédiate des commerces. D'une surface de 37.79 m², cet appartement en rez-de-chaussée surélevé se compose d'une chambre, d'un séjour lumineux de 16.80 m² exposé sud-ouest, d'une kitchenette, d'une salle d'eau et d'un WC. Le chauffage est électrique avec des radiateurs et l'eau chaude est fournie par un ballon électrique. L'appartement sera vendu vide et sera disponible à partir du 20/05/2026. Côté pratique l'appartement dispose d'une cave et la copropriété d'un local à vélo. L'immeuble, construit en 1950, est en bon état général, avec des fenêtres en PVC double vitrage et des volets pliants. Vous bénéficierez également d'une cave pour un espace de rangement supplémentaire. Ce bien nécessite quelques travaux d'isolation et de décoration, notamment le détapissage. D'après le simulateur de l'ADEME à compter du 1er janvier l'appartement passera sa note énergétique de G à F, simulation disponible en agence. A proximité, vous trouverez plusieurs établissements scolaires tels que l'École maternelle publique Simone Veil, l'École élémentaire publique Simone Veil et l'École primaire privée Saint-Louis, ainsi que des restaurants et une piscine à 1 km. Ne manquez pas cette opportunité rare sur le marché, contactez l'Agence Barraine IMMO Brest - Siam pour plus d'informations. Copropriété de 10 lots - dont 10 lots habitation. (Pas de procédure en cours). Charges annuelles : 1174.37 euros.
Voir plus

Bien en copropriété. Nombre de lots : 10. Charges de copropriété : 1174 €.
Honoraires à la charge du vendeur.
Barème des honoraires
DPE
A
B
C
D
E
F
G
GES
A
B
C
D
E
F
G

Prêt immobilier

Vous souhaitez connaître votre capacité d’emprunt et trouver le meilleur crédit immobilier ?
Réaliser une simulation gratuite

Appartement à BREST
Appartement à BREST
Appartement à BREST
Appartement à BREST
Appartement à BREST
Appartement à BREST
Appartement à BREST
Appartement à BREST
Appartement à BREST
Appartement à BREST
Appartement à BREST
Appartement à BREST
Appartement à BREST
Appartement à BREST
Appartement à BREST
Appartement à BREST
Appartement à BREST
Appartement à BREST
Ce site est protégé par reCAPTCHA la Politique de confidentialité et les Conditions d’utilisation de Google s’appliquent.
Obtenir un prêt immobilier au meilleur taux ?

En poursuivant votre navigation sans modifier vos paramètres, vous acceptez l'utilisation de cookies susceptibles de réaliser des statistiques de visite. Cliquez ici pour plus d'informations