Bénéficiez des services de nos partenaires locaux soigneusement sélectionnés
pour vous accompagner dans votre parcours d'achat immobilier

Métro convention - paris 15e studio ensoleillé en excellent état et avec balcon/terrasse

— Paris-15e 75015 —
249 000 €
22 m²
1 pièce
balcon/terrasseascenseur

Nos partenaires locaux
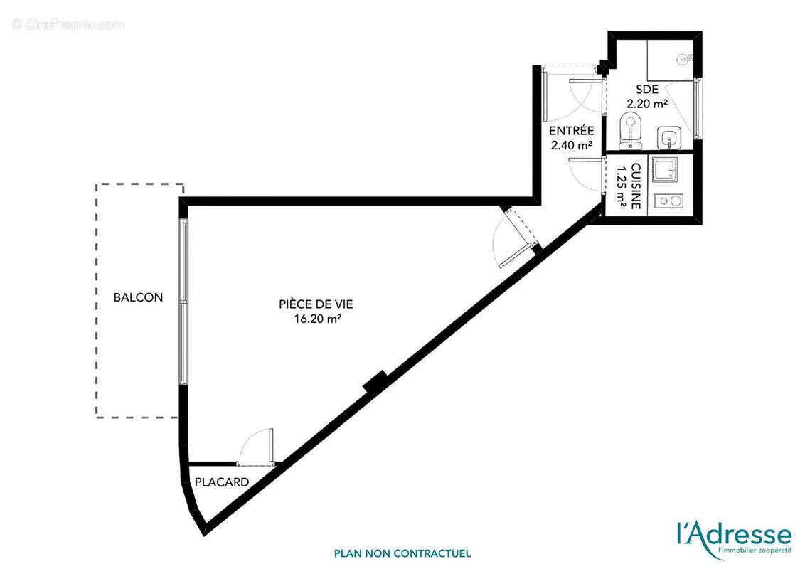
Votre agence l'Adresse Cambronne Paris 15 vous propose ce studio de 22 m2 + balcon, parfaitement agencé et en excellent état, situé à seulement 3 minutes à pied du métro Convention. Au 4eme étage avec ascenseur d'une copropriété récente et bien entretenue, vous apprécierez son ensoleillement et sa vue dégagée. Il se compose : d'une entrée, d'une pièce de vie de 16.20 m² donnant sur le balcon/terrasse ensoleillé, d'une cuisine séparée, d'une salle d'eau avec WC. AUCUN TRAVAUX à prévoir, idéal pour un premier achat ou un investissement locatif. Emplacement recherché, à proximité immédiate des commerces et du marché de la rue de la Convention Un bien rare sur le secteur ! A visiter sans tarder ! _________________________________ Transports à proximité Métro : - Ligne 12, arrêt Convention : 3 min BUS : - 39, 80 et 62 : 2 min (6.87 % honoraires TTC à la charge de l'acquéreur.) Copropriété de 24 lots - dont 20 lots habitation. (Pas de procédure en cours). Charges annuelles : 2413.12 euros.
Voir plus

Référence: 353
Bien en copropriété. Nombre de lots : 24. Charges de copropriété : 2413 €.
Honoraires d'agence de 6.87% à la charge de l'acquéreur
Barème des honoraires
DPE
A
B
C
D
E
F
G
GES
A
B
C
D
E
F
G

Prêt immobilier

Vous souhaitez connaître votre capacité d’emprunt et trouver le meilleur crédit immobilier ?
Réaliser une simulation gratuite

Appartement à PARIS-15E
Appartement à PARIS-15E
Appartement à PARIS-15E
Appartement à PARIS-15E
Appartement à PARIS-15E
Appartement à PARIS-15E
Appartement à PARIS-15E
Appartement à PARIS-15E
Appartement à PARIS-15E
Appartement à PARIS-15E
Appartement à PARIS-15E
Ce site est protégé par reCAPTCHA la Politique de confidentialité et les Conditions d’utilisation de Google s’appliquent.
Obtenir un prêt immobilier au meilleur taux ?

En poursuivant votre navigation sans modifier vos paramètres, vous acceptez l'utilisation de cookies susceptibles de réaliser des statistiques de visite. Cliquez ici pour plus d'informations