Coup de coeur à ménilmontant -charmant deux-pièces à réinventer

— Paris-20e 75020 —
190 000 €
19 m²
2 pièces

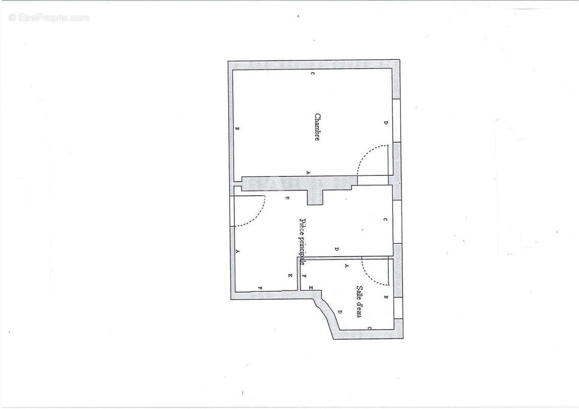
Coup de coeur à Ménilmontant ? Charmant deux-pièces au dernier étage A deux pas du métro Ménilmontant, au coeur d'un quartier parisien vivant et authentique, découvrez ce ravissant deux-pièces perché au 5e et dernier étage d'un immeuble ancien parfaitement entretenu (sans ascenseur). D'une surface optimisée de 19,02 m² Carrez, ce bien offre une configuration idéale : Séjour et chambre exposé plein sud, baignés de lumière avec cuisine ouverte, véritable chambre séparée, salle d'eau avec WC. Quelques travaux de rafraîchissement permettront de le personnaliser selon vos envies et d'exprimer pleinement son potentiel. Situé dans une rue recherchée, à proximité immédiate des commerces, des transports et de toutes les commodités, cet appartement représente une opportunité rare : parfait pour un premier achat, un pied-à-terre parisien ou un investissement locatif attractif. Les améliorations préconisées pour optimiser sa performance énergétique : remplacement des fenêtres et du cumulus. DPE : Classe G ? 758 kWh/m². Un bien au charme évident, dans un secteur dynamique et prisé, qui séduira les amoureux de la vie parisienne. Copropriété de 58 lots (Pas de procédure en cours). Charges annuelles : 786 euros.
Voir plus

Référence: 5078
Bien en copropriété. Nombre de lots : 58. Charges de copropriété : 786 €.
Honoraires à la charge du vendeur.
Barème des honoraires
DPE
A
B
C
D
E
F
G
GES
A
B
C
D
E
F
G

Prêt immobilier

Vous souhaitez connaître votre capacité d’emprunt et trouver le meilleur crédit immobilier ?
Réaliser une simulation gratuite

Appartement à PARIS-20E
Appartement à PARIS-20E
Appartement à PARIS-20E
Appartement à PARIS-20E
Appartement à PARIS-20E
Appartement à PARIS-20E
Appartement à PARIS-20E
Appartement à PARIS-20E
Appartement à PARIS-20E
Appartement à PARIS-20E
Appartement à PARIS-20E
Appartement à PARIS-20E
Ce site est protégé par reCAPTCHA la Politique de confidentialité et les Conditions d’utilisation de Google s’appliquent.
Obtenir un prêt immobilier au meilleur taux ?

En poursuivant votre navigation sans modifier vos paramètres, vous acceptez l'utilisation de cookies susceptibles de réaliser des statistiques de visite. Cliquez ici pour plus d'informations