Bénéficiez des services de nos partenaires locaux soigneusement sélectionnés
pour vous accompagner dans votre parcours d'achat immobilier

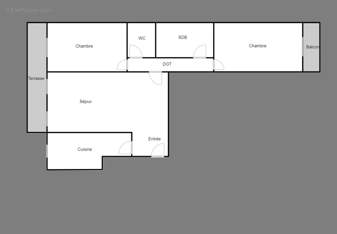
À vendre - levallois-perret louise michel - appartement 3 pièces avec terrasse et balcon de 84 m²

— Levallois-Perret 92300 —
950 000 €
84 m²
3 pièces
parkingbalcon/terrasseascenseur

Nos partenaires locaux
Idéalement situé à Levallois-Perret, à deux pas du métro Louise Michel, BUILDING PARTNERS vous propose à la vente cet appartement 3 pièces de 84 m², situé au 2e étage d'un immeuble récent bien entretenu. Ce bien, lumineux et parfaitement agencé, offre de beaux volumes et une exposition plein sud. Il se compose d'une entrée, d'un vaste séjour de 37,49 m² ouvrant sur une terrasse de 11,43 m², d'une cuisine indépendante aménagée et équipée, de deux chambres, d'une salle de bains, d'un WC séparé, ainsi que d'un balcon de 3,75 m². Son plan optimisé, sans perte d'espace, et son calme en font un cadre de vie idéal, à proximité immédiate des commerces, écoles et transports. Une cave et une place de parking en sous-sol complètent ce bien. Prix de vente : 950 000 euros honoraires inclus, à la charge du vendeur. Charges annuelles : 3 600 euros - DPE : C - Pas de procédure en cours. Ce bien rare à la vente séduira un couple ou une petite famille à la recherche d'un appartement lumineux et fonctionnel, offrant terrasse et balcon au coeur de Levallois. N'hésitez pas à nous contacter pour plus d'informations ou organiser une visite. Depuis 1993, BUILDING PARTNERS accompagne les propriétaires dans la vente de biens immobiliers de standing sur l'ouest parisien. Notre force ? Une organisation unique avec deux rôles experts : >Les Brokers, spécialisés dans la prospection et la valorisation de votre bien. >Les Sellers, experts en négociation et en mise en relation avec notre portefeuille d'acheteurs qualifiés. Avec 5 agences implantées au coeur des quartiers les plus recherchés (Paris 16e, Paris 17e, Neuilly, Levallois, Courbevoie), nous vous offrons une visibilité maximale, un accompagnement personnalisé et un engagement total jusqu'à la signature. Confiez-nous votre bien pour une vente rapide, au meilleur prix. Estimation offerte, confidentielle et sans engagement. Copropriété de 3 lots (Pas de procédure en cours). Charges annuelles : 3600 euros.
Voir plus

Référence: 16872
Bien en copropriété. Nombre de lots : 3. Charges de copropriété : 3600 €.
Honoraires à la charge du vendeur.
Barème des honoraires

Prêt immobilier

Vous souhaitez connaître votre capacité d’emprunt et trouver le meilleur crédit immobilier ?
Réaliser une simulation gratuite

Appartement à LEVALLOIS-PERRET
Appartement à LEVALLOIS-PERRET
Appartement à LEVALLOIS-PERRET
Appartement à LEVALLOIS-PERRET
Appartement à LEVALLOIS-PERRET
Appartement à LEVALLOIS-PERRET
Appartement à LEVALLOIS-PERRET
Appartement à LEVALLOIS-PERRET
Appartement à LEVALLOIS-PERRET
Appartement à LEVALLOIS-PERRET
Ce site est protégé par reCAPTCHA la Politique de confidentialité et les Conditions d’utilisation de Google s’appliquent.
Obtenir un prêt immobilier au meilleur taux ?

En poursuivant votre navigation sans modifier vos paramètres, vous acceptez l'utilisation de cookies susceptibles de réaliser des statistiques de visite. Cliquez ici pour plus d'informations