Bénéficiez des services de nos partenaires locaux soigneusement sélectionnés
pour vous accompagner dans votre parcours d'achat immobilier

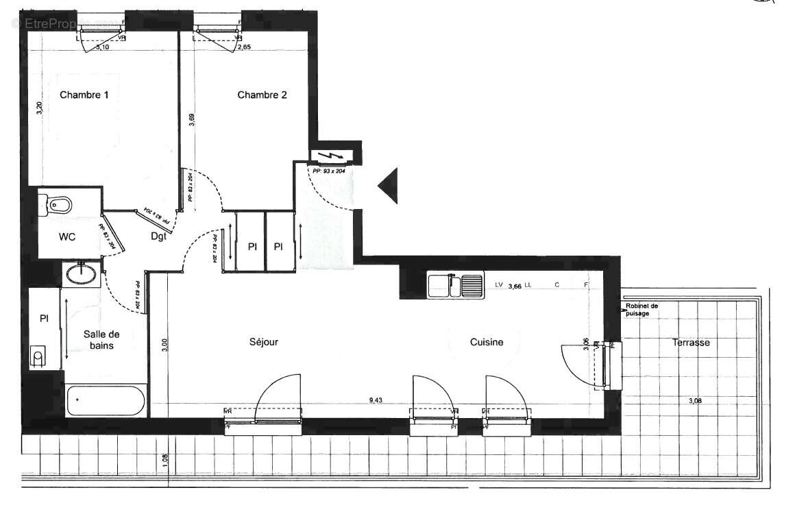
Appartement t3 toulouse sud - oncopole - st simon - parking

— Toulouse 31100 —
139 000 €
64 m²
3 pièces
ascenseur

Nos partenaires locaux
APPARTEMENT T3 TOULOUSE SUD - ONCOPOLE - ST SIMON - PARKING Votre agence Immo de France à le plaisir de vous proposer à la vente cet appartement T3 au dernier étage. Il se compose d'une entrée avec placard, d'un grand séjour double avec cuisine aménagée, Le coin nuit est composé de 2 chambres, d'une salle de bain et d'un wc séparée. Cet appartement au dernier étage bénéficie d'une très belle terrasse sans vis à vis de 20m2, exposée Sud Ouest. Une place de parking en sous-sol complète ce bien. La résidence se situe à proximité des commerces et de l'ONCOPOLE, BUS L4 au pied de la résidence. L'appartement est vendu libre d'occupation. AUCUN TRAVAUX A PREVOIR. (7.00 % honoraires TTC à la charge de l'acquéreur.) Copropriété de 47 lots - dont 47 lots habitation. (Pas de procédure en cours). Charges annuelles : 1136 euros.
Voir plus

Référence: 886
Honoraires d'agence de 7% à la charge de l'acquéreur
Barème des honoraires
DPE
A
B
C
D
E
F
G
GES
A
B
C
D
E
F
G

Prêt immobilier

Vous souhaitez connaître votre capacité d’emprunt et trouver le meilleur crédit immobilier ?
Réaliser une simulation gratuite

Appartement à TOULOUSE
Appartement à TOULOUSE
Appartement à TOULOUSE
Appartement à TOULOUSE
Appartement à TOULOUSE
Appartement à TOULOUSE
Appartement à TOULOUSE
Appartement à TOULOUSE
Ce site est protégé par reCAPTCHA la Politique de confidentialité et les Conditions d’utilisation de Google s’appliquent.
Obtenir un prêt immobilier au meilleur taux ?

En poursuivant votre navigation sans modifier vos paramètres, vous acceptez l'utilisation de cookies susceptibles de réaliser des statistiques de visite. Cliquez ici pour plus d'informations