Ensemble immobilier avec deux maisons - cour et dependances - libre d'occupation

— Chavagnes 49540 —
165 350 €
113 m² / 481 m²
5 pièces
parkingjardin

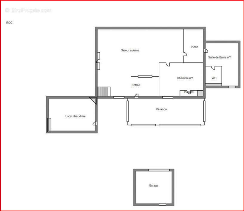
LES ARÈNES IMMOBILIER ANGERS vous propose en exclusivité IDÉAL INVESTISSEUR / Ensemble immobilier composé de deux maisons 1er LOT : Maison d'habitation (libre d'occupation) - 68 m² habitables Potentiel locatif 770 euros/ mois cc Rez-de-chaussée : Entrée Salon avec cuisine ouverte Chambre avec placards Buanderie Salle de bains WC séparé Étage : Une chambre Une seconde salle de bains Annexes : Véranda Cave Local chaudière fioul Deux grands garages DPE : E / GES : E Servitude de passage (fonds dominant) 2ème LOT : Maison entièrement à rénover 1er niveau : environ 67 m² à réhabiliter 2ème niveau : greniers aménageables offrant plus de 60 m² au sol Au 1er niveau : Espace garage Salon/cuisine Deux pièces en enfilade Débarras avec ancienne cheminée Petit jardin avec cabanon Au 2ème niveau : Trois greniers à aménager Création d'un escalier à prévoir Travaux à prévoir : Rénovation complète (hors maçonnerie et toiture en bon état) Reprise sols, murs, électricité, isolation, menuiseries Installation d'un système de chauffage Création des sanitaires (pas de WC existant) Servitude de passage : fonds servant RARE SUR LE SECTEUR : A SAISIR RAPIDEMENT ! (6.68 % honoraires TTC à la charge de l'acquéreur.)
Voir plus

Référence: 337
Honoraires d'agence de 6.68% à la charge de l'acquéreur
Barème des honoraires
DPE
A
B
C
D
E
F
G
GES
A
B
C
D
E
F
G

Prêt immobilier

Vous souhaitez connaître votre capacité d’emprunt et trouver le meilleur crédit immobilier ?
Réaliser une simulation gratuite

Maison à CHAVAGNES
Maison à CHAVAGNES
Maison à CHAVAGNES
Maison à CHAVAGNES
Maison à CHAVAGNES
Maison à CHAVAGNES
Maison à CHAVAGNES
Maison à CHAVAGNES
Maison à CHAVAGNES
Maison à CHAVAGNES
Maison à CHAVAGNES
Ce site est protégé par reCAPTCHA la Politique de confidentialité et les Conditions d’utilisation de Google s’appliquent.
Obtenir un prêt immobilier au meilleur taux ?

En poursuivant votre navigation sans modifier vos paramètres, vous acceptez l'utilisation de cookies susceptibles de réaliser des statistiques de visite. Cliquez ici pour plus d'informations