Bénéficiez des services de nos partenaires locaux soigneusement sélectionnés
pour vous accompagner dans votre parcours d'achat immobilier

Maison de 149 m2 avec vie de plain-pied - 4 chambres - proche commodités

— Bayeux 14400 —
340 000 €
140 m² / 900 m²
7 pièces
jardin

Nos partenaires locaux
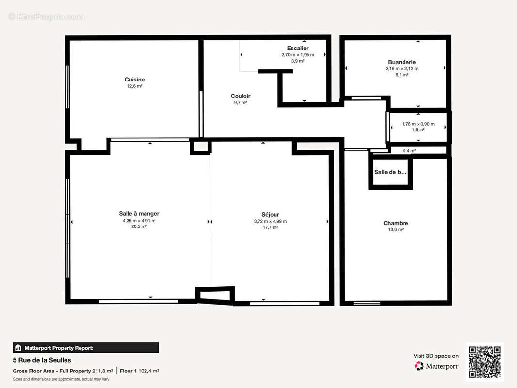
MAISON DE 149 M2 AVEC VIE DE PLAIN-PIED - 4 CHAMBRES - PROCHE COMMODITÉS Uniquement chez Rue du Particulier, nous vous proposons à la vente cette maison mitoyenne d'un seul côté, sans travaux, offrant 149,04 m² habitables et idéalement située à proximité de Tilly-sur-Seulles. Elle est édifiée sur un terrain d'environ 900 m². Au rez-de-chaussée, vous découvrirez une très belle pièce de vie lumineuse d'environ 50 m2 comprenant une cuisine AMÉNAGÉE ET ÉQUIPÉE, ouverte sur la salle à manger et le séjour. Un couloir dessert ensuite une chambre de 13 m² avec sa salle d'eau privative, une buanderie ainsi qu'un WC indépendant avec rangements. A l'étage, le palier mène à deux grandes chambres de 17,1 m² et 17,7 m², une salle d'eau avec baignoire et douche, ainsi qu'un WC indépendant. Le deuxième étage offre un espace comprenant un bureau et une chambre de 20 m² au sol. A l'extérieur, vous profiterez d'un kiosque en bois et d'un chalet. Petit plus : un robot de tonte automatique, assurant un entretien régulier du jardin et une pelouse impeccable, pourra être laissé lors de la vente. La maison se situe à seulement 3 minutes en voiture de toutes les commodités : grande surface, boulangerie, boucherie, pôle santé, pharmacie, écoles, collège, etc. Une boulangerie, un restaurant et un bar-tabac se trouvent à proximité de la maison. Cuisine aménagée et équipée. Huisseries en PVC double vitrage. Chauffage au fioul. Assainissement individuel. Taxe foncière : 1091 euros DPE effectué en 2025 : Montant estimé des dépenses annuelles d'énergie pour un usage standard : entre 3 950 euros et 5 400 euros. Prix moyens des énergies indexés au 01/01/2021 (abonnements compris). DPE : E / GES : E Consommation énergie primaire : 231 kWh/m2/an Les informations sur les risques auxquels ce bien est exposé sont disponibles sur le site Géorisques : https://www.georisques.gouv.fr/ Honoraires à la charge du vendeur.
Voir plus
DPE
A
B
C
D
E
F
G
GES
A
B
C
D
E
F
G

Prêt immobilier

Vous souhaitez connaître votre capacité d’emprunt et trouver le meilleur crédit immobilier ?
Réaliser une simulation gratuite

Maison à BAYEUX
Maison à BAYEUX
Maison à BAYEUX
Maison à BAYEUX
Maison à BAYEUX
Maison à BAYEUX
Maison à BAYEUX
Maison à BAYEUX
Maison à BAYEUX
Maison à BAYEUX
Maison à BAYEUX
Maison à BAYEUX
Maison à BAYEUX
Maison à BAYEUX
Ce site est protégé par reCAPTCHA la Politique de confidentialité et les Conditions d’utilisation de Google s’appliquent.
Obtenir un prêt immobilier au meilleur taux ?

En poursuivant votre navigation sans modifier vos paramètres, vous acceptez l'utilisation de cookies susceptibles de réaliser des statistiques de visite. Cliquez ici pour plus d'informations