Bénéficiez des services de nos partenaires locaux soigneusement sélectionnés
pour vous accompagner dans votre parcours d'achat immobilier

Maison 260m² à marcellaz

— Marcellaz 74250 —
305 000 €
260 m² / 747 m²
10 pièces
jardin

Nos partenaires locaux
Marcellaz, environnement campagne, proche centre village et à 35 minutes de Genève.
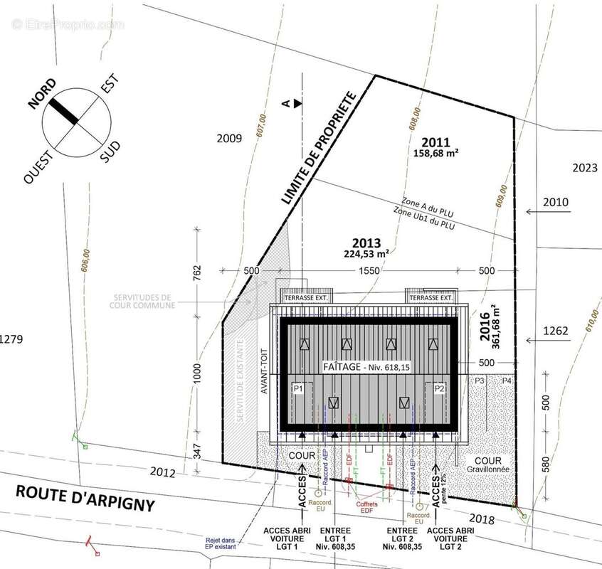
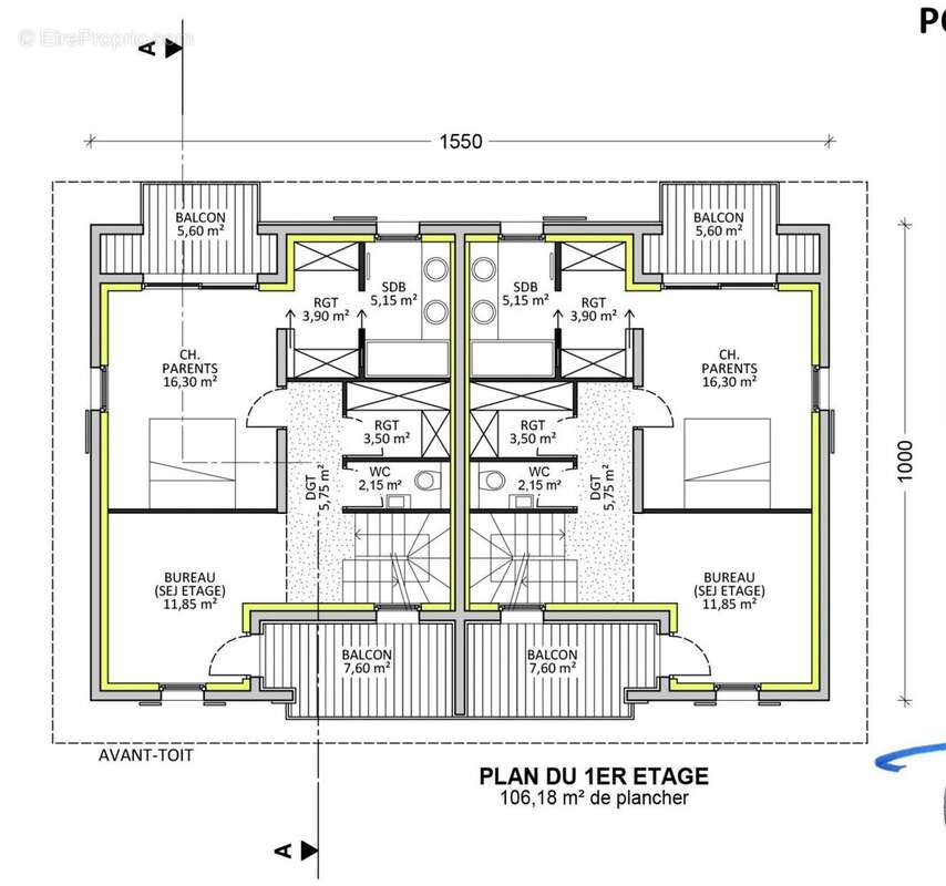
Ferme à rénover – Permis de construire accordé pour 2 logements (260 m² au total)

Opportunité idéale pour un projet de rénovation : cette ferme est vendue avec un permis de construire purgé de tout recours permettant la création de deux logements de 130 m² chacun.

Chaque logement prévoit :

- Une belle pièce de vie avec accès à une terrasse et à un jardin privatif
- Quatre chambres
- 2 salles de bains et 3 wc
- Un balcon
- Un garage
- Une cave

Un projet rare pour investisseurs, marchands de biens ou amateurs de rénovation souhaitant créer deux habitations modernes tout en conservant le charme de l'existant.

Contactez-moi pour plus d'informations.

Les informations sur les risques auxquels ce bien est exposé sont disponibles sur le site Géorisques : www.georisques.gouv.fr
Prix de vente : 305 000 ¤
Honoraires charge vendeur

Contactez votre conseiller SAFTI : Sébastien MANEL, Tél. : [Coordonnées masquées], E-mail : [Coordonnées masquées] - EI - Agent commercial immatriculé au RSAC de ANNECY sous le numéro 831 246 764.
Informations LOI ALUR :
Honoraires charge vendeur. (gedeon_26118_32214822)
Voir plus

Référence: 1563638
Honoraires à la charge du vendeur.
Barème des honoraires
DPE
A
B
C
D
E
F
G
GES
A
B
C
D
E
F
G

Prêt immobilier

Vous souhaitez connaître votre capacité d’emprunt et trouver le meilleur crédit immobilier ?
Réaliser une simulation gratuite

Photo 1 - Maison à MARCELLAZ
Photo 1
Photo 2 - Maison à MARCELLAZ
Photo 2
Photo 3 - Maison à MARCELLAZ
Photo 3
Photo 4 - Maison à MARCELLAZ
Photo 4
Photo 5 - Maison à MARCELLAZ
Photo 5
Photo 6 - Maison à MARCELLAZ
Photo 6
Photo 7 - Maison à MARCELLAZ
Photo 7
Photo 8 - Maison à MARCELLAZ
Photo 8
Photo 9 - Maison à MARCELLAZ
Photo 9
Ce site est protégé par reCAPTCHA la Politique de confidentialité et les Conditions d’utilisation de Google s’appliquent.
Obtenir un prêt immobilier au meilleur taux ?

En poursuivant votre navigation sans modifier vos paramètres, vous acceptez l'utilisation de cookies susceptibles de réaliser des statistiques de visite. Cliquez ici pour plus d'informations