Bénéficiez des services de nos partenaires locaux soigneusement sélectionnés
pour vous accompagner dans votre parcours d'achat immobilier

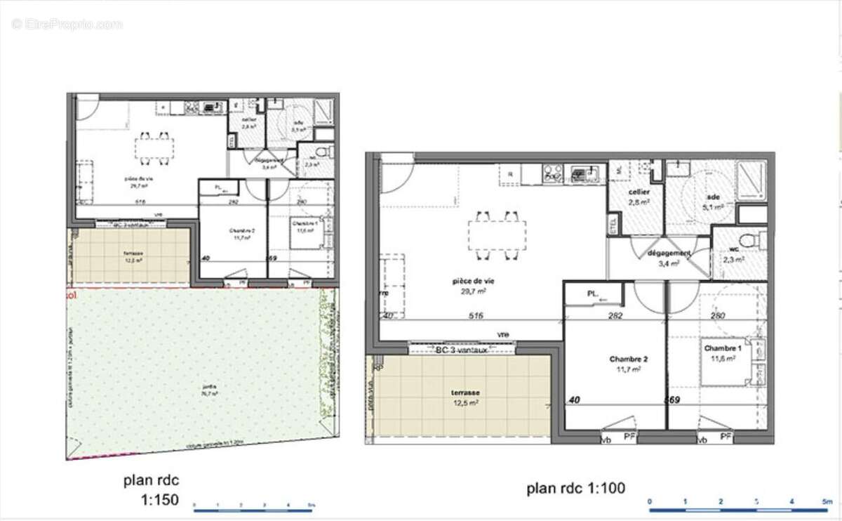
Appartement 66m² à les sables-d'olonne

— Les Sables-D'olonne 85100 —
309 000 €
66 m²
3 pièces
parkingbalcon/terrasse

Nos partenaires locaux
Iad France - Frédérique Pacteau ([Coordonnées masquées]) vous propose : NOUVELLE RÉSIDENCE AUX SABLES D'OLONNE

Une adresse d'exception au cOEur du quartier historique de la Chaume : les commerces, le quai, le port. à quelques enjambées.

Le programme TERRE NEUVE prendra vie au cours du 4ème trimestre 2027.
Il est composé d'appartements lumineux de 2 et 3 pièces et de maisons mitoyennes de 3 et 4 pièces à l'architecture typiquement chaumoise, répartis en îlots à l'esprit village, dans un environnement pensé pour conjuguer authenticité, intimité, charme et bien-être.
Chaque logement bénéficie d'une orientation optimale
et d'un espace extérieur généreux -- terrasse, balcon ou
jardin. Les pièces de vie sont baignées de lumière naturelle,
prolongées vers l'extérieur, pour savourer pleinement la
douceur de vie sablaise.

Prestations et équipements haut de gamme : pompes à chaleur air / eau, parquet, carrelage et faïence PORCELANOSA, placards, meubles de salle de bains, menuiseries extérieures double vitrage, volets roulants motorisés,.

Côté stationnement, des places aériennes et en sous-sol ainsi que des locaux à vélos viennent compléter ce cadre de vie agréable et pratique.

Honoraires d'agence à la charge du vendeur. Bien non soumis au DPE. Les informations sur les risques auxquels ce bien est exposé sont disponibles sur le site Géorisques : www.georisques.gouv.fr. La présente annonce immobilière a été rédigée sous la responsabilité éditoriale de Mme Frédérique Pacteau EI (ID 58744), mandataire indépendant en immobilier (sans détention de fonds), agent commercial de la SAS I@D France immatriculé au RSAC de la roche sur yon sous le numéro 429817257, titulaire de la carte de démarchage immobilier pour le compte de la société I@D France SAS.
Retrouvez tous nos biens sur notre site internet. www.iadfrance.fr.
Informations LOI ALUR :
Honoraires charge vendeur. (gedeon_6727_32101179)
Voir plus

Référence: 1878516-16
Honoraires à la charge du vendeur.

Prêt immobilier

Vous souhaitez connaître votre capacité d’emprunt et trouver le meilleur crédit immobilier ?
Réaliser une simulation gratuite

Photo 1 - Appartement à LES SABLES-D'OLONNE
Photo 1
Photo 2 - Appartement à LES SABLES-D'OLONNE
Photo 2
Photo 3 - Appartement à LES SABLES-D'OLONNE
Photo 3
Photo 4 - Appartement à LES SABLES-D'OLONNE
Photo 4
Photo 5 - Appartement à LES SABLES-D'OLONNE
Photo 5
Ce site est protégé par reCAPTCHA la Politique de confidentialité et les Conditions d’utilisation de Google s’appliquent.
Obtenir un prêt immobilier au meilleur taux ?

En poursuivant votre navigation sans modifier vos paramètres, vous acceptez l'utilisation de cookies susceptibles de réaliser des statistiques de visite. Cliquez ici pour plus d'informations