Bénéficiez des services de nos partenaires locaux soigneusement sélectionnés
pour vous accompagner dans votre parcours d'achat immobilier

Maison 200m² à marsac-sur-don

— Marsac-Sur-Don 44170 —
209 900 €
200 m² / 575 m²
9 pièces
jardin

Nos partenaires locaux
Iad France - Noëmie Saffre vous propose : NOUVEAUTÉ - EN EXCLUSIVITÉ - TRÈS GRANDE MAISON DE BOURG - 200 m² HABITABLES - MARSAC-SUR-DON
A 5 minutes du bourg de Nozay, de la voie rapide Nantes-Rennes et 30 min du Cardo.
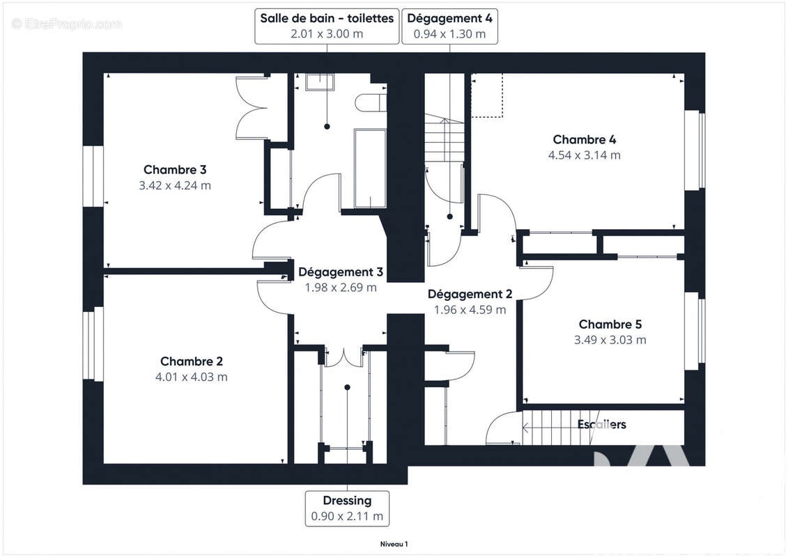
Laissez-vous séduire par le charme de cette maison « ancien café de la commune » de 200 m². Idéalement située en plein cOEur du bourg de MARSAC-SUR-DON, en face des commerces, écoles et services. Dès l'entrée, le ton est donné : beaux volumes et authenticité. Vous y découvrirez une grande pièce de vie (ancienne salle de restauration / bar), un salon / séjour, deux cuisines, une buanderie, et un WC. Côté nuit, une chambre au rez-de-chaussée, 4 grandes chambres au premier étage avec une salle de bain et WC, nombreux rangements. Le dernier étage offre un grenier à aménager selon vos envies - suite parentale, salle de jeux, espace de travail... les possibilités sont nombreuses. À l'extérieur, de nombreuses dépendances : garage, abri de jardin, préau, cave. De quoi allier confort et praticité au quotidien, le tout sur une parcelle de presque 600 m². SES ATOUTS : DPE C (Pompe à chaleur et / ou poêle à granulés) - confort tout à l'égout - agrandissement possible.

Honoraires d'agence à la charge du vendeur.
Information d'affichage énergétique sur ce bien : classe ENERGIE C indice 117 et classe CLIMAT A indice 3. Les informations sur les risques auxquels ce bien est exposé, y compris l'obligation légale de débroussaillement, sont disponibles sur le site Géorisques : http://www.georisques.gouv.fr.
La présente annonce immobilière a été rédigée sous la responsabilité éditoriale de Mme Noëmie Saffre mandataire indépendant en immobilier (sans détention de fonds), agent commercial de la SAS I@D France immatriculé au RSAC de NANTES sous le numéro 900335043, titulaire de la carte de démarchage immobilier pour le compte de la société I@D France SAS.
Informations LOI ALUR :
Honoraires charge vendeur. (gedeon_6727_32214213)
Voir plus

Référence: 1892456
Honoraires à la charge du vendeur.
DPE
A
B
C
D
E
F
G
GES
A
B
C
D
E
F
G

Prêt immobilier

Vous souhaitez connaître votre capacité d’emprunt et trouver le meilleur crédit immobilier ?
Réaliser une simulation gratuite

Photo 1 - Maison à MARSAC-SUR-DON
Photo 1
Photo 2 - Maison à MARSAC-SUR-DON
Photo 2
Photo 3 - Maison à MARSAC-SUR-DON
Photo 3
Photo 4 - Maison à MARSAC-SUR-DON
Photo 4
Photo 5 - Maison à MARSAC-SUR-DON
Photo 5
Photo 6 - Maison à MARSAC-SUR-DON
Photo 6
Photo 2 - Maison à MARSAC-SUR-DON
Photo 2
Photo 7 - Maison à MARSAC-SUR-DON
Photo 7
Photo 8 - Maison à MARSAC-SUR-DON
Photo 8
Photo 9 - Maison à MARSAC-SUR-DON
Photo 9
Ce site est protégé par reCAPTCHA la Politique de confidentialité et les Conditions d’utilisation de Google s’appliquent.
Obtenir un prêt immobilier au meilleur taux ?

En poursuivant votre navigation sans modifier vos paramètres, vous acceptez l'utilisation de cookies susceptibles de réaliser des statistiques de visite. Cliquez ici pour plus d'informations