Nouveauté, opportunité à saisir !

— Breux-Jouy 91650 —
342 000 €
99 m² / 669 m²
6 pièces
parkingbalcon/terrassejardin

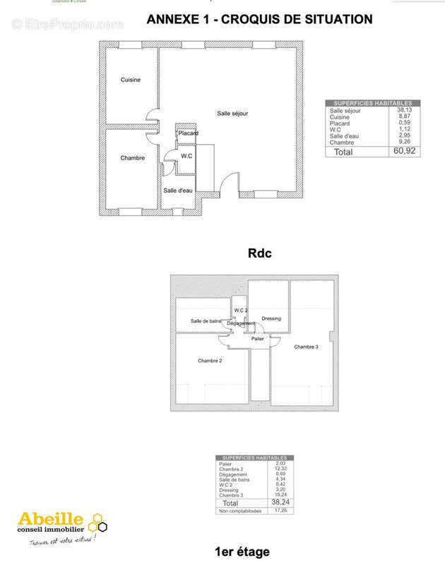
Une maison traditionnelle comprenant au rez-de-chaussée : entrée sur salon/salle à manger (38m2) avec cheminée insert, cuisine aménagée, chambre (9,26m2), salle d’eau et Wc indépendant, rangements. A l’étage dégagement, 2 grandes chambres (12,32m2 et 15,24m2), salle de bains et rangements, wc indépendant. Garage indépendant 1 voiture (21m2) et rangements au-dessus, abri de jardin (9m2), le tout édifié sur un terrain de 671m2. A saisir rapidement ! + de biens sur www.abeille-conseilimmobilier.com
Voir plus

Référence: 2752
Honoraires d'agence de 3.64% à la charge de l'acquéreur
Barème des honoraires
DPE
A
B
C
D
E
F
G
GES
A
B
C
D
E
F
G

Prêt immobilier

Vous souhaitez connaître votre capacité d’emprunt et trouver le meilleur crédit immobilier ?
Réaliser une simulation gratuite

Maison à BREUX-JOUY
Maison à BREUX-JOUY
Maison à BREUX-JOUY
Maison à BREUX-JOUY
Maison à BREUX-JOUY
Maison à BREUX-JOUY
Maison à BREUX-JOUY
Maison à BREUX-JOUY
Maison à BREUX-JOUY
Maison à BREUX-JOUY
Maison à BREUX-JOUY
Maison à BREUX-JOUY
Maison à BREUX-JOUY
Ce site est protégé par reCAPTCHA la Politique de confidentialité et les Conditions d’utilisation de Google s’appliquent.
Obtenir un prêt immobilier au meilleur taux ?

En poursuivant votre navigation sans modifier vos paramètres, vous acceptez l'utilisation de cookies susceptibles de réaliser des statistiques de visite. Cliquez ici pour plus d'informations