Bénéficiez des services de nos partenaires locaux soigneusement sélectionnés
pour vous accompagner dans votre parcours d'achat immobilier

Maison 130m² à les angles

— Les Angles 30133 —
350 000 €
130 m² / 405 m²
6 pièces
parkingbalcon/terrassejardin

Nos partenaires locaux
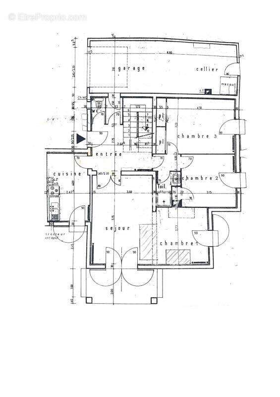
Située au fond d'une impasse où je réside également, cette maison de 130 m² offre un cadre de vie idéal pour une famille recherchant tranquillité et espace. Édifiée sur un terrain clos et arboré de 405 m², elle bénéficie d'un agencement fonctionnel ainsi que de plusieurs accès directs au jardin.

En entrant, vous découvrez un hall qui dessert les premiers espaces de vie. Le séjour et la salle à manger, lumineux et confortables grâce à la climatisation et à la cheminée, s'ouvrent largement sur le jardin.

La cuisine, attenante, offre un espace pratique pour la vie quotidienne.

Le rez-de-chaussée comprend deux chambres : la première de 10 m² et la seconde de 13,50m², toutes deux équipées de placards et profitant d'un accès direct au jardin.

Une salle d'eau, un WC indépendant et un sas menant au garage complètent ce niveau.

À l'étage, un palier climatisé distribue deux nouvelles chambres de 10 m² et 13,50 m², chacune dotée d'un placard intégré.

Une salle de bains vient parfaire cet étage, ainsi que des combles aménagés offrant un potentiel de rangement supplémentaire.

Une terrasse d'environ 10 m² permet de profiter pleinement du calme extérieur et d'une vue dégagée sans vis-à-vis.

La maison dispose également d'un garage avec mezzanine de 13 m², idéal pour le stockage.

Côté confort, vous bénéficierez d'une chaudière gaz de ville installée en 2019, de plusieurs climatiseurs, de volets roulants électriques dans la plupart des pièces ainsi que de volets en bois.

Par son emplacement en fond d'impasse, son calme, son agencement familial et ses multiples accès au jardin, cette maison représente une opportunité dans le secteur. Elle conviendra parfaitement à celles et ceux qui recherchent une vie paisible tout en restant proches des commodités.

Pour plus d'informations ou pour organiser une visite, je reste à votre disposition.
Envie d'en savoir plus ou de la visiter ? Contactez moi dès aujourd'hui au [Coordonnées masquées] pour découvrir cette maison et recevoir l'album photo complet ou la vidéo de présentation. C'est avec plaisir que je vous l'offre

Les informations sur les risques auxquels ce bien est exposé sont disponibles sur le site : www.georisques.gouv.fr Jérôme Forner – Agent commercial mandataire en immobilier – RSAC Avignon n°853 299 832 Mandant : Efficity, 48 avenue de Villiers – 75017 Paris Carte professionnelle CPI 75[Coordonnées masquées]02 025 – CCI Paris IDF Caisse de garantie : GALIAN Assurances, 89 rue de la Boétie, 75008 Paris
Les informations sur les risques auxquels ce bien est exposé sont disponibles sur le site Georisque : georisques. gouv. fr
Jérôme Forner - EI - est Agent Commercial mandataire en immobilier, immatriculé au Registre Spécial des Agents Commerciaux du Tribunal de Commerce de Avignon sous le n°853299832.
Siège social du mandant : effiCity, 48 avenue de Villiers - 75017 PARIS - Société par Actions Simplifiée, société au capital de 132 373,05 euros, immatriculée au RCS Paris 497 617 746 et titulaire de la Carte professionnelle CPI 75[Coordonnées masquées]02 025 - CCI Paris IDF - Caisse de Garantie : GALIAN Assurances 89 rue de la Boétie 75008 Paris
Voir plus

Référence: 199968
Honoraires d'agence de 5.42% à la charge de l'acquéreur
Barème des honoraires
DPE
A
B
C
D
E
F
G
GES
A
B
C
D
E
F
G

Prêt immobilier

Vous souhaitez connaître votre capacité d’emprunt et trouver le meilleur crédit immobilier ?
Réaliser une simulation gratuite

Maison à LES ANGLES
Maison à LES ANGLES
Maison à LES ANGLES
Maison à LES ANGLES
Maison à LES ANGLES
Maison à LES ANGLES
Maison à LES ANGLES
Maison à LES ANGLES
Maison à LES ANGLES
Maison à LES ANGLES
Maison à LES ANGLES
Maison à LES ANGLES
Maison à LES ANGLES
Maison à LES ANGLES
Maison à LES ANGLES
Maison à LES ANGLES
Maison à LES ANGLES
Maison à LES ANGLES
Maison à LES ANGLES
Maison à LES ANGLES
Maison à LES ANGLES
Ce site est protégé par reCAPTCHA la Politique de confidentialité et les Conditions d’utilisation de Google s’appliquent.
Obtenir un prêt immobilier au meilleur taux ?

En poursuivant votre navigation sans modifier vos paramètres, vous acceptez l'utilisation de cookies susceptibles de réaliser des statistiques de visite. Cliquez ici pour plus d'informations