Bénéficiez des services de nos partenaires locaux soigneusement sélectionnés
pour vous accompagner dans votre parcours d'achat immobilier

Maison 50m² à lille

— Lille 59800 —
109 900 €
50 m² / 24 m²
3 pièces

Nos partenaires locaux
59000 LILLE – MAISON 2 MITOYENNETES – 50M² - 2 CHAMBRES

Efficity, l'agence qui estime votre bien en ligne, vous propose à la vente cette maison à travaux située à Lille Fives, un Quartier en pleine transformation, avec un beau potentiel d'investissement.

maison pleine de potentiel à Lille – Bois d'Annapes
Prix ultra attractif : 109 900 € !
Idéal primo-accédant • Parfait investisseur (travaux défiscalisables)

Découvrez cette maison de 50 m², située dans le quartier dynamique du Bois d'Annapes, connu pour ses commerces de proximité, ses écoles, ses médecins et son ambiance de vie pratique et agréable.
Tout est à portée de main !
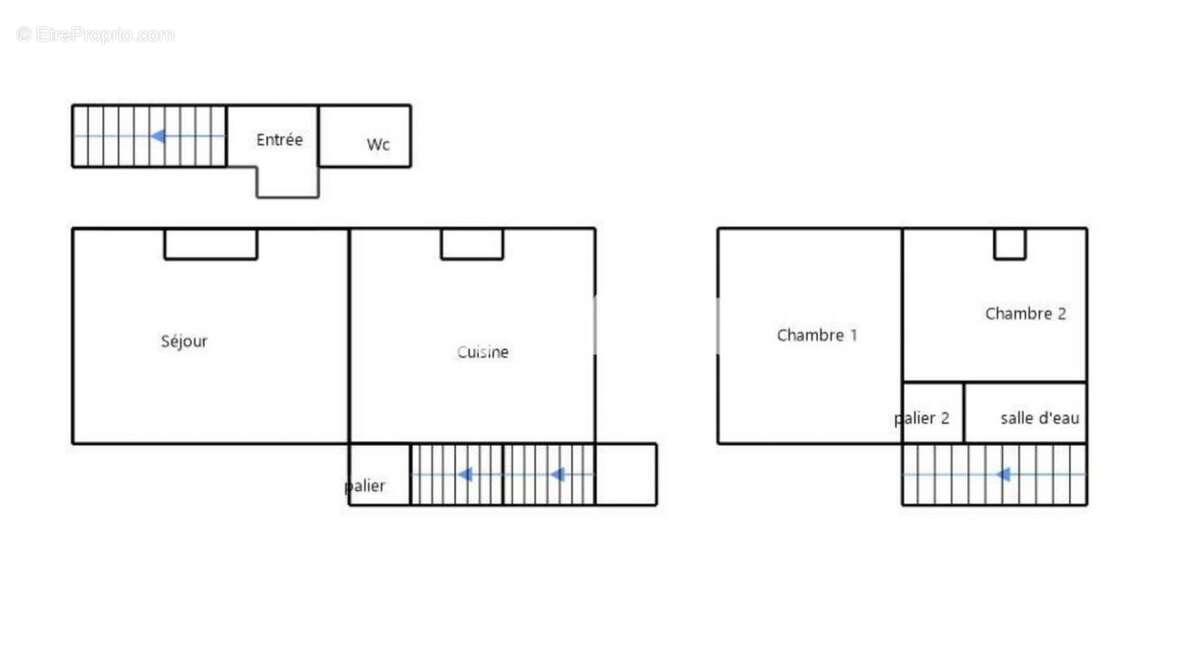
La maison se compose de 3 niveaux :
RDC : entrée avec WC séparés + Place pour dressing pratique pour manteaux et chaussures
1er étage : une cuisine lumineuse de 13 m² + un séjour cosy de 13 m²
2e étage : deux chambres (11,5 m² et 9 m²) + une petite salle de douche

Le bien est à rénover entièrement, ne dispose pas d'extérieur ni de chauffage (Cause d'Exemption:Non soumis au DPE) , mais offre un super potentiel pour ceux qui souhaitent créer un cocon à leur image
Une opportunité devenue rare à ce prix dans le secteur ! À visiter sans tarder !
Les informations sur les risques auxquels ce bien est exposé sont disponibles sur le site Georisque : georisques. gouv. fr
Florence Kaczmarek - EI - est Agent Commercial mandataire en immobilier, immatriculé au Registre Spécial des Agents Commerciaux du Tribunal de Commerce de lille sous le n°843607441.
Siège social du mandant : effiCity, 48 avenue de Villiers - 75017 PARIS - Société par Actions Simplifiée, société au capital de 132 373,05 euros, immatriculée au RCS Paris 497 617 746 et titulaire de la Carte professionnelle CPI 75[Coordonnées masquées]02 025 - CCI Paris IDF - Caisse de Garantie : GALIAN Assurances 89 rue de la Boétie 75008 Paris
Voir plus

Référence: 198323
Honoraires d'agence de 9.9% à la charge de l'acquéreur
Barème des honoraires
DPE
A
B
C
D
E
F
G
GES
A
B
C
D
E
F
G

Prêt immobilier

Vous souhaitez connaître votre capacité d’emprunt et trouver le meilleur crédit immobilier ?
Réaliser une simulation gratuite

Maison à LILLE
Maison à LILLE
Maison à LILLE
Maison à LILLE
Maison à LILLE
Maison à LILLE
Ce site est protégé par reCAPTCHA la Politique de confidentialité et les Conditions d’utilisation de Google s’appliquent.
Obtenir un prêt immobilier au meilleur taux ?

En poursuivant votre navigation sans modifier vos paramètres, vous acceptez l'utilisation de cookies susceptibles de réaliser des statistiques de visite. Cliquez ici pour plus d'informations