Nice pessicart / parc montebello - 4 pièces - vue panoramique mer et ville

— Nice 06100 —
670 000 €
109 m²
4 pièces
parkingbalcon/terrasseascenseur

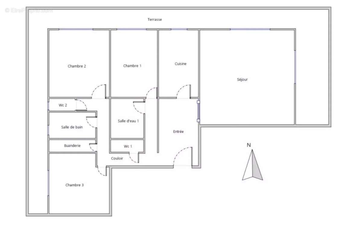
Pessicart / Parc Montebello : Situé en étage Élevé d'une résidence de standing des années 70 avec Piscine et espaces Verts, découvrez cet appartement 4 Pièces d'environ 110 m² bénéficiant d'une terrasse de plus de 45 m2 offrant une vue Panoramique sur la ville, la Mer et les Collines

Il se compose d’un Lumineux Séjour / Salle à manger de plus de 30 m²

Une cuisine Indépendante, pouvant être ouverte sur le séjour selon vos envies

L’espace Nuit se compose de trois Chambres, d’une salle de Bain, d’une salle d’eau et de deux toilettes Indépendants

De nombreux placards intégrés assurent Rangement et confort Optimal

Une Cave et un Garage en sous-sol complètent ce bien au cœur d’une résidence Sécurisée avec Gardien

Un appartement offrant de beaux Volumes, un fort Potentiel d’aménagement et un cadre de vie Privilégié

Dossier de présentation Complet et visite virtuelle Immersive disponibles sur demande

Les honoraires sont à la charge de l’Acheteur

Les informations sur les risques auxquels ce bien est exposé sont disponibles sur le site Géorisques : georisques.gouv.fr
Voir plus

Référence: JT2538
DPE
A
B
C
D
E
F
G
GES
A
B
C
D
E
F
G

Prêt immobilier

Vous souhaitez connaître votre capacité d’emprunt et trouver le meilleur crédit immobilier ?
Réaliser une simulation gratuite

Appartement à NICE
Appartement à NICE
Appartement à NICE
Appartement à NICE
Appartement à NICE
Appartement à NICE
Appartement à NICE
Appartement à NICE
Appartement à NICE
Appartement à NICE
Appartement à NICE
Appartement à NICE
Appartement à NICE
Appartement à NICE
Appartement à NICE
Appartement à NICE
Appartement à NICE
Appartement à NICE
Appartement à NICE
Appartement à NICE
Appartement à NICE
Appartement à NICE
Appartement à NICE
Appartement à NICE
Ce site est protégé par reCAPTCHA la Politique de confidentialité et les Conditions d’utilisation de Google s’appliquent.
Obtenir un prêt immobilier au meilleur taux ?

En poursuivant votre navigation sans modifier vos paramètres, vous acceptez l'utilisation de cookies susceptibles de réaliser des statistiques de visite. Cliquez ici pour plus d'informations