Bénéficiez des services de nos partenaires locaux soigneusement sélectionnés
pour vous accompagner dans votre parcours d'achat immobilier

Maison 85m² à martillac

— Martillac 33650 —
174 000 €
85 m² / 377 m²
3 pièces
balcon/terrassejardin

Nos partenaires locaux
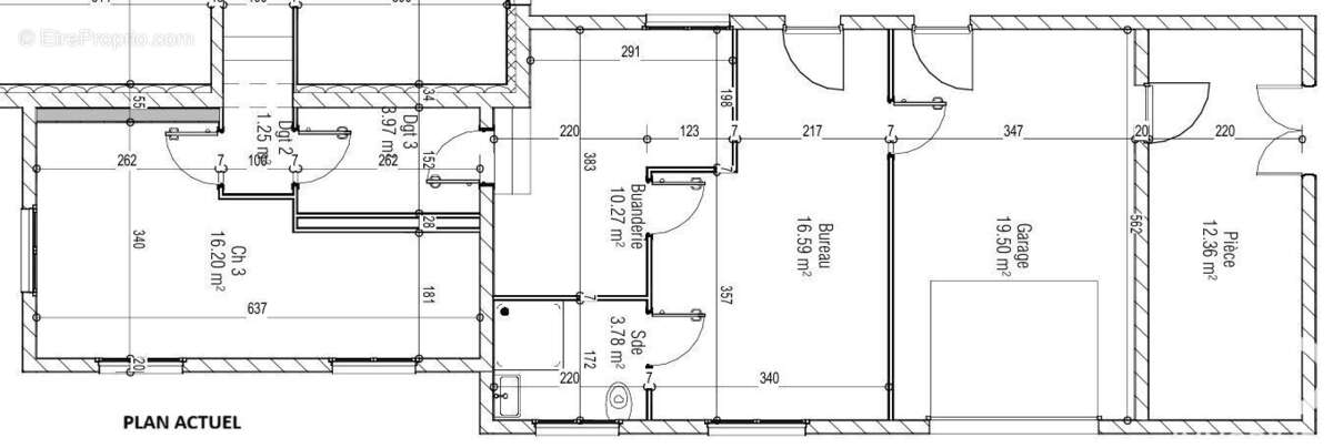
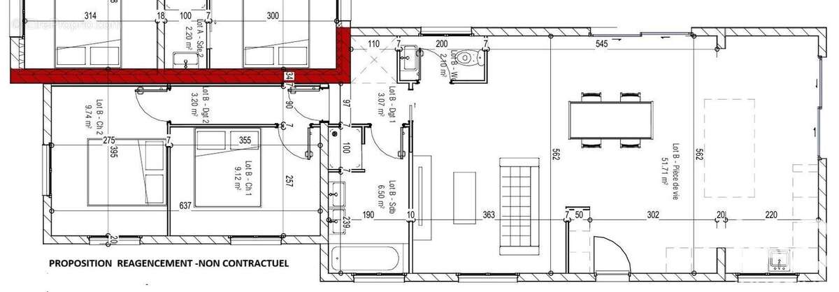
Iad France - Daisy Bernasconi vous propose : Martillac Centre Bourg, maison de 85 m² à réagencer et rénover, située dans un environnement calme et recherché.

Édifiée sur un terrain de 377 m², elle se prête parfaitement à la création d'un T3 de plain-pied pensé selon vos attentes. Un double carport permet de stationner à l'abri 2 véhicules.

Un plan de l'agencement existant ainsi qu'une projection du potentiel et une vidéo immersive accompagnent la découverte du bien.

Le secteur bénéficie d'un accès rapide aux écoles, aux commerces, aux espaces verts et aux axes menant à Bordeaux. Martillac se distingue par son cadre de vie, son dynamisme et son attractivité au cOEur du Sud Gironde.

Cette maison constitue une vraie opportunité pour un projet de rénovation, un premier achat ou un investissement patrimonial.

Contactez-moi pour organiser une visite et explorer tout son potentiel.

Honoraires d'agence à la charge du vendeur.
Information d'affichage énergétique sur ce bien : classe ENERGIE D indice 198 et classe CLIMAT D indice 42. Les informations sur les risques auxquels ce bien est exposé, y compris l'obligation légale de débroussaillement, sont disponibles sur le site Géorisques : http://www.georisques.gouv.fr.
La présente annonce immobilière a été rédigée sous la responsabilité éditoriale de Mme Daisy Bernasconi mandataire indépendant en immobilier (sans détention de fonds), agent commercial de la SAS I@D France immatriculé au RSAC de BORDEAUX sous le numéro 885193003, titulaire de la carte de démarchage immobilier pour le compte de la société I@D France SAS.
Informations LOI ALUR :
Honoraires charge vendeur. (gedeon_6727_32219279)
Voir plus

Référence: 1891908
Honoraires à la charge du vendeur.
DPE
A
B
C
D
E
F
G
GES
A
B
C
D
E
F
G

Prêt immobilier

Vous souhaitez connaître votre capacité d’emprunt et trouver le meilleur crédit immobilier ?
Réaliser une simulation gratuite

Photo 1 - Maison à MARTILLAC
Photo 1
Photo 2 - Maison à MARTILLAC
Photo 2
Photo 3 - Maison à MARTILLAC
Photo 3
Photo 4 - Maison à MARTILLAC
Photo 4
Photo 5 - Maison à MARTILLAC
Photo 5
Photo 6 - Maison à MARTILLAC
Photo 6
Photo 7 - Maison à MARTILLAC
Photo 7
Photo 8 - Maison à MARTILLAC
Photo 8
Photo 9 - Maison à MARTILLAC
Photo 9
Ce site est protégé par reCAPTCHA la Politique de confidentialité et les Conditions d’utilisation de Google s’appliquent.
Obtenir un prêt immobilier au meilleur taux ?

En poursuivant votre navigation sans modifier vos paramètres, vous acceptez l'utilisation de cookies susceptibles de réaliser des statistiques de visite. Cliquez ici pour plus d'informations