Maison 182m² à plozevet

— Plozevet 29710 —
189 500 €
182 m²
9 pièces

Iad France - Jannick Gourmelun vous propose : Charmante Maison à proximité immédiate du bourg de Plozévet, sur la route de la plage.
Cette maison de 182 m², est une véritable perle rare à Plozévet, offrant charme, espace et potentiel pour les amoureux de l'authenticité.
La maison, en bon état général, vous permettra de laisser libre cours à votre imagination pour la personnaliser à votre goût. Avec ses pièces spacieuses et lumineuses, elle offre un cadre de vie idéal pour une famille ou un projet de rénovation.

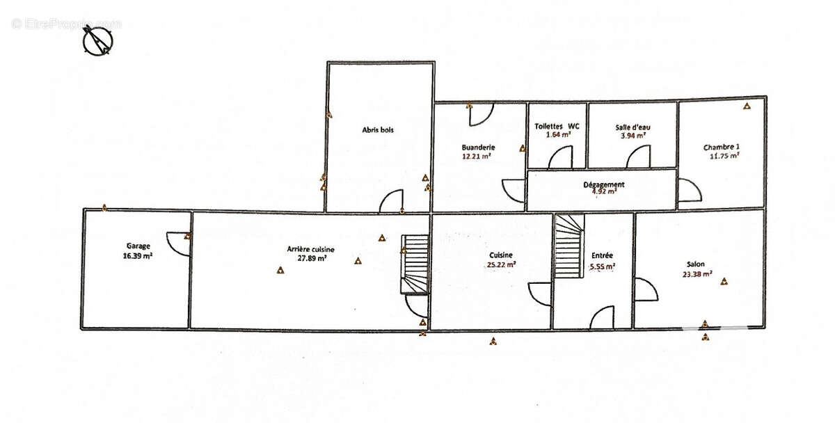
La distribution :
Rez-de-chaussée : Vaste Entrée, salon-séjour-cuisine ouverte avec son poêle à bois, wc, une chambre, salle d'eau à terminer, buanderie.
Premier étage : Palier, trois chambres, w.-c, salle de bain.
Deuxième étage : Palier, deux chambres, un bureau-chambre, w.-c, salle d'eau.
Annexes : Jardin, garage, arrière cuisine avec grenier.

Ce que l'on aime : L'emplacement, centre ville à pieds, la vue mer des étages, la rénovation, l'état général de la maison, le charme de l'ancien, les beaux parquets, la distribution, le volume des chambres, les perspectives d'évolution.

Travaux à prévoir : assainissement individuel, système de chauffage fioul

Points d'intérêts :
À 900 M des commerces
À 2 KM de la plage
À 2 minutes des écoles

La maison est idéalement située à proximité des commerces locaux, des écoles et des commodités.
Cette maison pleine de caractère et de potentiel attend votre touche personnelle pour devenir un véritable cocon familial. Contactez-nous dès maintenant pour organiser une visite.



Honoraires d'agence à la charge de l'acquéreur. Prix honoraires inclus : 189500 euros. Prix hors honoraires : 180000 euros. Honoraires TTC à la charge de l'acquéreur (5,28% du prix du bien hors honoraires) : 9500 euros.
Information d'affichage énergétique sur ce bien : classe ENERGIE F indice 269 et classe CLIMAT F indice 76. Les informations sur les risques auxquels ce bien est exposé, y compris l'obligation légale de débroussaillement, sont disponibles sur le site Géorisques : http://www.georisques.gouv.fr.
La présente annonce immobilière a été rédigée sous la responsabilité éditoriale de Mme Jannick Gourmelun mandataire indépendant en immobilier (sans détention de fonds), agent commercial de la SAS I@D France immatriculé au RSAC de QUIMPER sous le numéro 904985173, titulaire de la carte de démarchage immobilier pour le compte de la société I@D France SAS.
Informations LOI ALUR :
Honoraires charge vendeur. (gedeon_6727_32219336)
Voir plus

Référence: 1893692
Honoraires à la charge du vendeur.
DPE
A
B
C
D
E
F
G
GES
A
B
C
D
E
F
G

Prêt immobilier

Vous souhaitez connaître votre capacité d’emprunt et trouver le meilleur crédit immobilier ?
Réaliser une simulation gratuite

Photo 1 - Maison à PLOZEVET
Photo 1
Photo 2 - Maison à PLOZEVET
Photo 2
Photo 3 - Maison à PLOZEVET
Photo 3
Photo 4 - Maison à PLOZEVET
Photo 4
Photo 5 - Maison à PLOZEVET
Photo 5
Photo 6 - Maison à PLOZEVET
Photo 6
Photo 7 - Maison à PLOZEVET
Photo 7
Photo 8 - Maison à PLOZEVET
Photo 8
Photo 9 - Maison à PLOZEVET
Photo 9
Ce site est protégé par reCAPTCHA la Politique de confidentialité et les Conditions d’utilisation de Google s’appliquent.
Obtenir un prêt immobilier au meilleur taux ?

En poursuivant votre navigation sans modifier vos paramètres, vous acceptez l'utilisation de cookies susceptibles de réaliser des statistiques de visite. Cliquez ici pour plus d'informations