Puteaux centre - rue roque de fillol / rousselle - appartement familial de 6 pièces de 128m2 en étage élevé

— Puteaux 92800 —
998 000 €
128 m²
6 pièces
parking

Puteaux, rue Roque de Fillol & rue Rousselle, idéalement situé à proximité du centre-ville et de tous ses commerces ainsi que des transports
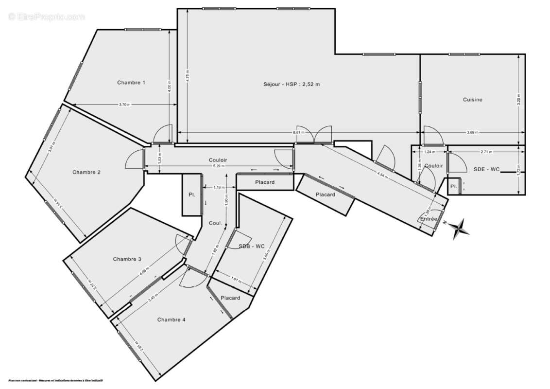
L'Immobilier Sans Vis-à-Vis vous propose, en exclusivité, au 5ème étage (sur 6) un très bel appartement familial de 6 pièces, totalisant une superficie de 128m2 et composé de la manière suivante:
- Une entrée - Une double séjour (espace salon et salle à manger) de 37m2 - Une cuisine de 12m2 - Un dégagement avec placards - 4 chambres de 9.86m2 /10.50m2 / 11.96m2 & 12.35m2 - Une salle de bain avec WC de 5m2 - Une salle d'eau avec WC 4m2 - Une seconde salle d'eau (sans WC mais avec branchements et évacuations nécessaires) de 3.5m2
Une cave en sous-sol complète ce bien Place de parking et box en enfilade disponibles en sus du prix de vente (42 000€)
Eau chaude et chauffage individuels électriques
Appartement très lumineux et bien agencé, coup de coeur assuré Produit rare sur le secteur, à visiter sans plus tarder Pour toutes informations complémentaires et/ou demande de visite: Mylène [Coordonnées masquées]
Voir plus

Bien en copropriété. Nombre de lots : 124. Charges de copropriété : 4296 €.
Barème des honoraires
DPE
A
B
C
D
E
F
G
GES
A
B
C
D
E
F
G

Prêt immobilier

Vous souhaitez connaître votre capacité d’emprunt et trouver le meilleur crédit immobilier ?
Réaliser une simulation gratuite

Appartement à PUTEAUX
Appartement à PUTEAUX
Appartement à PUTEAUX
Appartement à PUTEAUX
Appartement à PUTEAUX
Appartement à PUTEAUX
Appartement à PUTEAUX
Appartement à PUTEAUX
Appartement à PUTEAUX
Appartement à PUTEAUX
Appartement à PUTEAUX
Appartement à PUTEAUX
Appartement à PUTEAUX
Appartement à PUTEAUX
Appartement à PUTEAUX
Appartement à PUTEAUX
Appartement à PUTEAUX
Ce site est protégé par reCAPTCHA la Politique de confidentialité et les Conditions d’utilisation de Google s’appliquent.
Obtenir un prêt immobilier au meilleur taux ?

En poursuivant votre navigation sans modifier vos paramètres, vous acceptez l'utilisation de cookies susceptibles de réaliser des statistiques de visite. Cliquez ici pour plus d'informations