Bénéficiez des services de nos partenaires locaux soigneusement sélectionnés
pour vous accompagner dans votre parcours d'achat immobilier

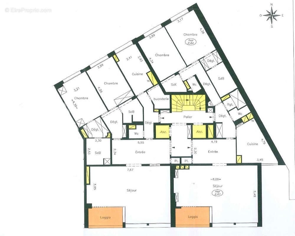
8 pièces 230m2 + 2 balcon/terrasse de 12m2 + double caves + double box

— Saint-Mande 94160 —
2 500 000 €
230 m²
8 pièces
parkingbalcon/terrasse

Nos partenaires locaux
Saint Mandé Sud, Face Bois sur l'Avenue Daumesnil. Dans une résidence récente de bon standing avec Gardien, en étage avec Ascenseur, seul sur le pallier, se trouve un plateau de 230m2 regroupant 2 appartements de 115m2 chacun en très bon état général (d'un côté 5 pièces 3 chambres et de l'autre 5 pièces 2 chambres) avec 2 Balcons/Terrasses de 12m2. Toute la partie avant exposé Plein Sud sur le bois avec une vue dégagée sans vis et vis et à l'arrière qui donne sur une rue calme à sens unique. Double vitrage et volets roulants électriques dans toutes les pièces !! Climatisation, système d'alarme, électricité quasi-neuve !! Deux caves d'environ 5m2 chacune ainsi que 2 box dont un avec une porte électrique et l'autre avec une borne de recharge et une mezzanine de rangement supplémentaire complètent ce bien.
Gros potentiel !! Possibilité d'aménagement divers !! Possibilité aussi de découper le plateau avec une partie habitation selon la surface nécessaire et de louer l'autre partie pour du rendement !! Idéal grande famille ou investisseur !! À visiter sans tarder !!
Voir plus

Bien en copropriété. Nombre de lots : 82.
Barème des honoraires
DPE
A
B
C
D
E
F
G
GES
A
B
C
D
E
F
G

Prêt immobilier

Vous souhaitez connaître votre capacité d’emprunt et trouver le meilleur crédit immobilier ?
Réaliser une simulation gratuite

Appartement à SAINT-MANDE
Appartement à SAINT-MANDE
Appartement à SAINT-MANDE
Ce site est protégé par reCAPTCHA la Politique de confidentialité et les Conditions d’utilisation de Google s’appliquent.
Obtenir un prêt immobilier au meilleur taux ?

En poursuivant votre navigation sans modifier vos paramètres, vous acceptez l'utilisation de cookies susceptibles de réaliser des statistiques de visite. Cliquez ici pour plus d'informations