Rue au maire

— Paris-3e 75003 —
590 000 €
50 m²
2 pièces

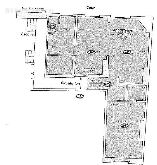
Dans une jolie copropriété parfaitement entretenue, découvrez ce magnifique 2 pièces situé au 3ᵉ étage, alliant confort moderne et charme de l’ancien.
L’appartement se compose d’un double séjour, d’une cuisine entièrement équipée et aménagée, d’une chambre ainsi que de deux salles d’eau avec WC.
Vous serez séduit par les prestations authentiques qui font tout le charme du Marais : poutres apparentes, pierres naturelles et colombages d’époque.
Une cave saine vient compléter ce bien rare sur le marché.
Parfait pour un logement divisible en deux appartements distincts ou pour un EXCELLENT investissement locatif (4.50 %)
Pour tous renseignements, appeler L'AGENCE DES ARTS ET MÉTIERS au [Coordonnées masquées].
Voir plus

Référence: 85529577
DPE
A
B
C
D
E
F
G
GES
A
B
C
D
E
F
G

Prêt immobilier

Vous souhaitez connaître votre capacité d’emprunt et trouver le meilleur crédit immobilier ?
Réaliser une simulation gratuite

Appartement à PARIS-3E
Appartement à PARIS-3E
Appartement à PARIS-3E
Appartement à PARIS-3E
Appartement à PARIS-3E
Appartement à PARIS-3E
Appartement à PARIS-3E
Appartement à PARIS-3E
Appartement à PARIS-3E
Appartement à PARIS-3E
Appartement à PARIS-3E
Appartement à PARIS-3E
Appartement à PARIS-3E
Ce site est protégé par reCAPTCHA la Politique de confidentialité et les Conditions d’utilisation de Google s’appliquent.
Obtenir un prêt immobilier au meilleur taux ?

En poursuivant votre navigation sans modifier vos paramètres, vous acceptez l'utilisation de cookies susceptibles de réaliser des statistiques de visite. Cliquez ici pour plus d'informations