Bénéficiez des services de nos partenaires locaux soigneusement sélectionnés
pour vous accompagner dans votre parcours d'achat immobilier

Appartement 42m² à lozanne

— Lozanne 69380 —
212 000 €
42 m²
2 pièces
parkingascenseur

Nos partenaires locaux
Iad France - Chloé Jaillet vous propose : À saisir : appartement T2 lumineux avec terrasse - idéal primo-accédant ou investisseur

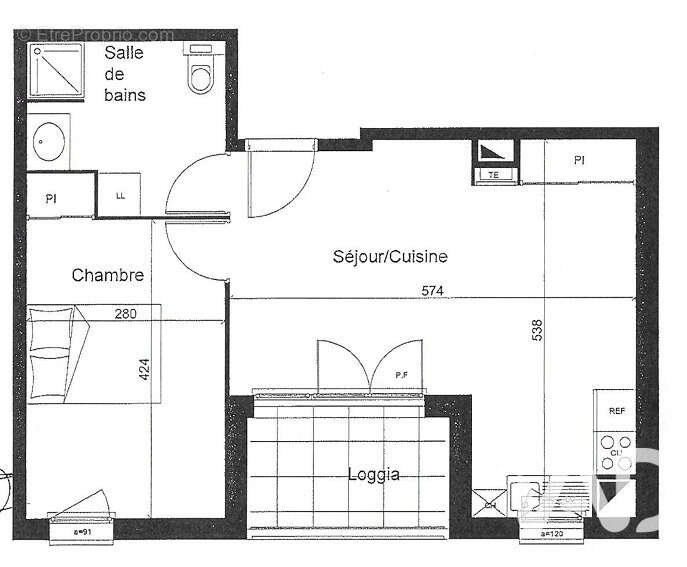
Venez découvrir ce très bel appartement T2 de 42 m², situé en rez-de-chaussée d'un immeuble récent de 2016. Une opportunité rare sur Lozane, où l'offre est faible sur ce type de biens !

Vous serez immédiatement séduit par sa luminosité, son excellent état général et sa localisation stratégique, à deux pas de la gare, permettant de rejoindre Lyon rapidement et facilement. Un atout majeur pour un quotidien fluide ou pour un investissement locatif attractif.

L'appartement offre une pièce de vie spacieuse de 24 m², agréable et bien agencée, avec un accès direct à une loggia orientée plein sud, parfaite pour profiter d'un espace extérieur en toute saison.

La grande chambre de 12,5 m² assure confort et tranquillité. Vous apprécierez également la salle d'eau moderne et généreuse, pratique au quotidien.

Les bonnes performances énergétiques, les faibles charges de copropriété et la présence d'un garage box en sous-sol viennent compléter ce bien aux nombreux atouts.

Cet appartement coche toutes les cases : emplacement prisé, confort, fonctionnalité et potentiel. Que vous cherchiez votre premier achat ou un investissement sûr, c'est le moment de saisir cette opportunité !

Vous souhaitez le visiter ? Contactez-moi dès maintenant pour organiser une visite!

La presente annonce immobiliere vise 2 lots situés dans une copropriété de 73 lots au total et ne faisant l'objet d'aucune procédure en cours citée à l'article L. 721-1 du code de la construction et de l'habitation. Montant moyen mensuel de charges déclaré par le vendeur : 53¤ par mois (soit 636 ¤ annuel). Honoraires d'agence à la charge du vendeur.
Information d'affichage énergétique sur ce bien : classe ENERGIE C indice 139 et classe CLIMAT C indice 27. Les informations sur les risques auxquels ce bien est exposé, y compris l'obligation légale de débroussaillement, sont disponibles sur le site Géorisques : http://www.georisques.gouv.fr.
La présente annonce immobilière a été rédigée sous la responsabilité éditoriale de Mme Chloé Jaillet mandataire indépendant en immobilier (sans détention de fonds), agent commercial de la SAS I@D France immatriculé au RSAC de LYON sous le numéro 892694704, titulaire de la carte de démarchage immobilier pour le compte de la société I@D France SAS.
Informations LOI ALUR :
Soumis au régime de copropriété.
Nombre de lots : 73.
Quote part annuelle(moyenne) : 636 euros.
Honoraires charge vendeur. (gedeon_6727_32221548)
Voir plus

Référence: 1888616
Bien en copropriété. Nombre de lots : 73. Charges de copropriété : 636 €.
Honoraires à la charge du vendeur.
DPE
A
B
C
D
E
F
G
GES
A
B
C
D
E
F
G

Prêt immobilier

Vous souhaitez connaître votre capacité d’emprunt et trouver le meilleur crédit immobilier ?
Réaliser une simulation gratuite

Photo 1 - Appartement à LOZANNE
Photo 1
Photo 2 - Appartement à LOZANNE
Photo 2
Photo 3 - Appartement à LOZANNE
Photo 3
Photo 4 - Appartement à LOZANNE
Photo 4
Photo 5 - Appartement à LOZANNE
Photo 5
Photo 6 - Appartement à LOZANNE
Photo 6
Photo 7 - Appartement à LOZANNE
Photo 7
Ce site est protégé par reCAPTCHA la Politique de confidentialité et les Conditions d’utilisation de Google s’appliquent.
Obtenir un prêt immobilier au meilleur taux ?

En poursuivant votre navigation sans modifier vos paramètres, vous acceptez l'utilisation de cookies susceptibles de réaliser des statistiques de visite. Cliquez ici pour plus d'informations