Bénéficiez des services de nos partenaires locaux soigneusement sélectionnés
pour vous accompagner dans votre parcours d'achat immobilier

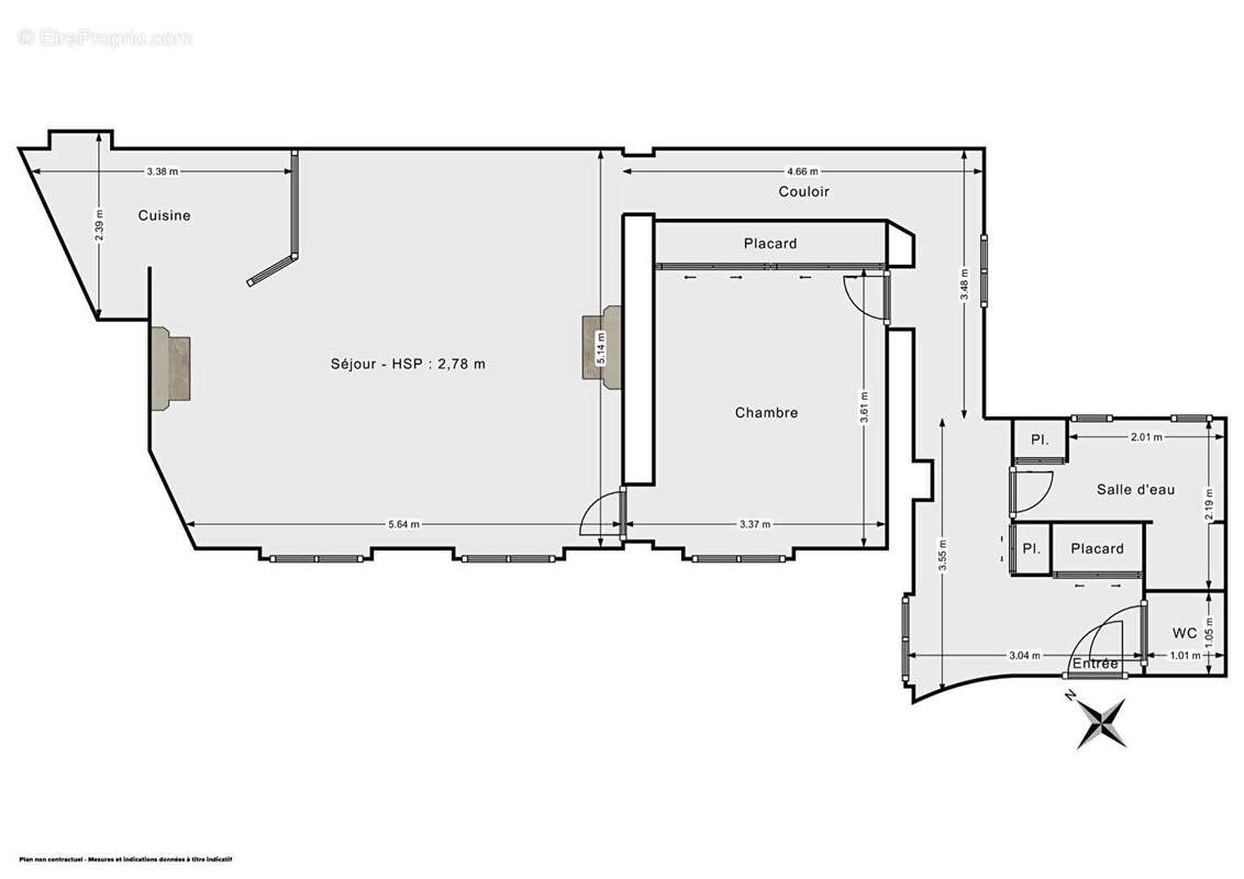
Paris 14ème - sarrette - appartement 2 p

— Paris-14e 75014 —
580 000 €
63 m²
2 pièces

Nos partenaires locaux
PARIS 14ème - A VENDRE chez TOIT IMMOBILIER Situé dans le quartier prisé d'Alésia, TOIT IMMOBILIER vous invite à découvrir ce spacieux 2 pièces d'une superficie de 62,73 m2 (loi Carrez) au 1er étage sans ascenseur d'une copropriété bien entretenue et sécurisée du début du 20ème siècle. Passez le seuil de la porte et le charme de cette période opère instantanément : parquet massif, cheminées en marbre, moulures et belle hauteur sous plafond. Commencez la visite par une entrée avec rangement, bibliothèque et placards sur-mesure desservant ensuite les différents espaces de vie pensés et rénovés par un architecte d'intérieur. La pièce de vie offre un très beau volume de plus de 32 m2 avec une cuisine ouverte aménagée et équipée procurant ainsi une atmosphère conviviale et chaleureuse. Poursuivez la visite: une grande chambre avec triple dressing intégré, une salle d'eau carrelée entièrement avec fenêtres, VMC et aménagement pour le lave-linge, et enfin des wc séparés. Pour les amoureux de la décoration et de l'agencement intérieur, ce bien est une aubaine car il peut être facilement repensé, réorganisé et ainsi répondre au gout de chacun avec un espace de télétravail ou encore une 2ème chambre. D'autres atouts vous séduiront : calme sur cour, double vitrage, fibre, local vélo, et porte blindée. Son emplacement au pieds des transports (M4, bus, tramway), des commerces, espaces verts (Parc Montsouris), cinéma, et des écoles vous promettent une vie parisienne de quartier harmonieuse. PROFESSION LIBERALE POSSIBLE Une cave complète ce bien. Copropriété de 83 lots - dont 27 lots habitation. Charges annuelles : 1000 euros.
Voir plus

Référence: 435
Bien en copropriété. Nombre de lots : 83. Charges de copropriété : 1000 €. Procédure en cours : Procédure en cours.
Honoraires à la charge du vendeur.
Barème des honoraires
DPE
A
B
C
D
E
F
G
GES
A
B
C
D
E
F
G

Prêt immobilier

Vous souhaitez connaître votre capacité d’emprunt et trouver le meilleur crédit immobilier ?
Réaliser une simulation gratuite

Appartement à PARIS-14E
Appartement à PARIS-14E
Appartement à PARIS-14E
Appartement à PARIS-14E
Appartement à PARIS-14E
Appartement à PARIS-14E
Appartement à PARIS-14E
Appartement à PARIS-14E
Appartement à PARIS-14E
Ce site est protégé par reCAPTCHA la Politique de confidentialité et les Conditions d’utilisation de Google s’appliquent.
Obtenir un prêt immobilier au meilleur taux ?

En poursuivant votre navigation sans modifier vos paramètres, vous acceptez l'utilisation de cookies susceptibles de réaliser des statistiques de visite. Cliquez ici pour plus d'informations