Bénéficiez des services de nos partenaires locaux soigneusement sélectionnés
pour vous accompagner dans votre parcours d'achat immobilier

Appt 5 p. 125 m2 + terrasse + pkg bordeaux gare st jean

— Bordeaux 33800 —
508 000 €
125 m²
5 pièces
parkingbalcon/terrasseascenseuraccès handicapé

Nos partenaires locaux
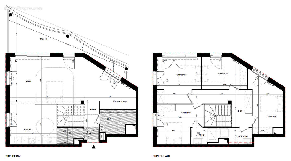
Appartement 5 pièces : 125 m² habitables + terrasse de 17 m² + parking
Adresse : Résidence Explore, rue des Mots Passants, 33800 Bordeaux
Prix : 508 000 € (TVA 5,5%) ou 575 000 € (TVA 20%)*
FRAIS DE NOTAIRE OFFERTS + bien éligible au PTZ

Venez découvrir cet appartement moderne de 5 pièces d'une superficie de 125 m², situé au cœur du quartier dynamique de Bordeaux Euratlantique. Cet emplacement privilégié vous permettra de bénéficier de tous les avantages d'un cadre de vie pratique, à la fois calme et proche des commodités, au pied du Parc du Pont Roulant.

« Un emplacement idéal »
La gare de Bordeaux est à seulement 10 minutes à pied.
Accès rapide au centre-ville via les tram D et C (stations à 200 m à pied).
Accès à la rive droite facilité grâce au pont Simone Veil.
Proximité immédiate des commerces, restaurants, écoles, et services médicaux.
Quartier convivial avec marché, parc, jeux pour enfants, commerces, services et nombreux espaces de détente.

Les habitants de ce quartier en pleine expansion bénéficient d'un cadre de vie pratique et agréable, avec de nombreux commerces de proximité et des activités de loisirs à portée de main : groupe scolaire, bibliothèque, gymnase, commerces de proximité, restaurants, professions médicales, salle de sport, laboratoire… difficile de tout citer !

Caractéristiques du bien :
• Superficie : 125,51 m² habitables
• Extérieur : terrasse couverte de 17,23 m² exposée NO
• Stationnement : 1 place de parking et un grand local vélo au pied de l'immeuble
• Pièces :
o 1 entrée accueillante avec un espace rangement aménageable
o 1 pièce à vivre baignée de lumière avec cuisine ouverte de plus de 50 m², ouverte sur le balcon terrasse couvert
o 3 salles d’eau (vasque / douche) et 2 WC
o 4 chambres confortables avec des zones prévues pour l’aménagement de placards
DPE : Classe B (énergie), GES A (gaz à effet de serre), coûts annuels d’énergie du logement estimés entre 1 020 € et 1 430 € par an


Avantages :
• Frais de notaire offerts*
• Garantie décennale incluse
• TVA réduite (sous conditions d'éligibilité)*
• Aucun honoraire d’agence – Vente directe promoteur
• Visite en visio ou sur place à votre convenance

Prix TTC du bien :
• TVA 5,5% : 508 000 €*
• TVA 20% (plein tarif) : 575 000 €*
• Bien vendu non meublé, non occupé, soumis au régime de la copropriété ( 56 lots - aucune procédure en cours).


Contact & visites : via téléphone, messagerie bon coin ou directement sur le site internet de Signature Promotion.

Référence annonce : B94-Explore-BORDEAUX
*Prix intégrant l'offre commerciale de fin d'année (- 5000 €/pièce) + frais de notaire offerts. Détails et conditions de nos offres disponibles sur notre site internet ou auprès de nos conseillers. Photos, plan et suggestions d’aménagement non contractuels – Appartement vendu non meublé.
Voir plus

Honoraires à la charge du vendeur.
DPE
A
B
C
D
E
F
G
GES
A
B
C
D
E
F
G

Prêt immobilier

Vous souhaitez connaître votre capacité d’emprunt et trouver le meilleur crédit immobilier ?
Réaliser une simulation gratuite

Appartement à BORDEAUX
Appartement à BORDEAUX
Appartement à BORDEAUX
Appartement à BORDEAUX
Appartement à BORDEAUX
Appartement à BORDEAUX
Appartement à BORDEAUX
Appartement à BORDEAUX
Appartement à BORDEAUX
Appartement à BORDEAUX
Appartement à BORDEAUX
Ce site est protégé par reCAPTCHA la Politique de confidentialité et les Conditions d’utilisation de Google s’appliquent.
Obtenir un prêt immobilier au meilleur taux ?

En poursuivant votre navigation sans modifier vos paramètres, vous acceptez l'utilisation de cookies susceptibles de réaliser des statistiques de visite. Cliquez ici pour plus d'informations