Bénéficiez des services de nos partenaires locaux soigneusement sélectionnés
pour vous accompagner dans votre parcours d'achat immobilier

Opportunite meylan - prox grenoble - local à aménager

— Meylan 38000 —
263 000 €
129 m²
parking

Nos partenaires locaux
OPPORTUNITÉ À SAISIR – DERNIERS BUREAUX DISPONIBLES À MEYLAN (INOVALLÉE)
L'Hestia – Programme neuf à fort potentiel dans l'écosystème tech de Grenoble

Au cœur de l'Inovallée, technopôle d'excellence de la région Rhône-Alpes, CARRE PRO Immobilier vous propose un plateau de bureaux de 363 m² à aménager selon vos besoins.

Situé dans un programme mixte haut de gamme (bureaux, commerces, logements), ce dernier lot disponible est une véritable opportunité pour implanter ou développer votre entreprise dans un quartier en pleine mutation.

Pourquoi Inovallée ? Pourquoi Meylan ?
Une situation stratégique à seulement 10 minutes de Grenoble :
Accès rapide via l'A41, la Rocade Sud, et les transports en commun de la métropole
Proximité immédiate avec le plus grand domaine universitaire de la région Auvergne-Rhône-Alpes
Technopôle reconnu, avec 360 entreprises et plus de 11 000 emplois qualifiés
Forte dynamique d'investissement public & privé : Inovallée est en plein renouveau

L'Hestia – Un programme immobilier pensé pour la performance
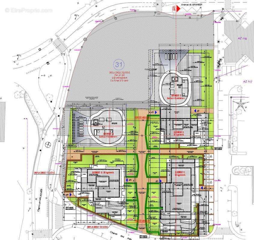
Adresse : 6, chemin de Malacher – Meylan
Plateau de 129 m² privatifs au 1er étage du Bâtiment E, livré brut (liberté d'aménagement totale)
Sanitaires PMR déjà intégrés dans les parties communes – aucun coût à prévoir pour ces équipements
1 place de parking en sous-sol inclus

Prix de vente : 263 000 € HT soit 315 600 € TTC.
Direct promoteur – Aucun frais d'agence

Les + qui font la différence :
Environnement innovant, connecté et à haute valeur ajoutée
Cadre de travail privilégié au pied des Alpes
Grande flexibilité d'aménagement
Forte attractivité pour les talents (entreprises, start-ups, ingénierie, recherche…)
Idéal pour entreprises du numérique, santé, R&D, conseil, architecture, etc.

Découvrir le programme en vidéo :
Présentation du programme: https://www.youtube.com/watch?v=PeYk7jMygSc

Intéressé ? Un seul numéro : [Coordonnées masquées]
Saisissez cette opportunité unique d'investir dans l'avenir !
Voir plus

Référence: MEYLAN_-_129_M_
Bien en copropriété. Nombre de lots : 263.

Prêt immobilier

Vous souhaitez connaître votre capacité d’emprunt et trouver le meilleur crédit immobilier ?
Réaliser une simulation gratuite

Commerce à MEYLAN
Commerce à MEYLAN
Commerce à MEYLAN
Ce site est protégé par reCAPTCHA la Politique de confidentialité et les Conditions d’utilisation de Google s’appliquent.
Obtenir un prêt immobilier au meilleur taux ?

En poursuivant votre navigation sans modifier vos paramètres, vous acceptez l'utilisation de cookies susceptibles de réaliser des statistiques de visite. Cliquez ici pour plus d'informations