Bénéficiez des services de nos partenaires locaux soigneusement sélectionnés
pour vous accompagner dans votre parcours d'achat immobilier

Immeuble de rapport cambrai gare

— Cambrai 59400 —
365 000 €
355 m²
balcon/terrasse

Nos partenaires locaux
Venez Implanter votre futur projet dans cet immeuble de rapport d'une surface de 355 m2 érigé sur 3 niveaux à Cambrai.

A 2 minutes à pied de la gare et proche du centre ville, cet immeuble sera idéal pour une entreprise souhaitant s'implanter dans une ville dynamique tout en restant proche des axes autoroutiers et des points de restaurations.

Cet immeuble est en bon état général et ne nécessitera qu'un réaménagement de vos futurs espaces.

.
Cette ancienne maison bourgeoise aménagée en bureaux a su préserver tout son cachet, elle offre de beaux volumes répartis sur 3 niveaux :


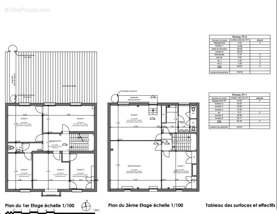
Rez de chaussée : surface 161 m2 Hall d'entrée, cinq bureaux, une pièce stockage, un local technique, une cuisine, 2 WC.

1er étage : Surface 95 m2 Palier, cinq bureaux, WC

2ème étage : 99 m2 palier, deux bureaux, une salle de réunion, une kitchenette, deux wc

Sous sol - Cave : 93 m2 exploitable pour stockage -local chaudière


Extérieur : grande terrasse bois déjà aménagée 50m2


Points important :

DPE D et GES D (Diagnostics réalisés en décembre 2022) (consommations 187KWH/an/m2 , 36Kg Co2/An/m2)

Menuiseries double vitrages (bois et Alluminium)
Chaudière gaz (2015)
Ballon d'eau chaude électrique (2015)
VMC simple flux
Toiture ardoise fibro ciment en Bon état

Taxe foncière : 5299€


Prix de vente : 365 000€ frais d'agence inclus

Mandat enregistré pour le compte de Maïté Begliomini agent commercial indépendant enregistré au RCAS de Valenciennes sous le numéro 2022AC00144 agissant pour le compte de l'agence immobilière La Pépite.
Les informations sur les risques auxquels ce bien est exposé sont disponibles sur le site Géorisques.
Voir plus

Référence: 413
Honoraires à la charge du vendeur.
Barème des honoraires
DPE
A
B
C
D
E
F
G
GES
A
B
C
D
E
F
G

Prêt immobilier

Vous souhaitez connaître votre capacité d’emprunt et trouver le meilleur crédit immobilier ?
Réaliser une simulation gratuite

Appartement à CAMBRAI
Appartement à CAMBRAI
Appartement à CAMBRAI
Appartement à CAMBRAI
Appartement à CAMBRAI
Appartement à CAMBRAI
Appartement à CAMBRAI
Appartement à CAMBRAI
Appartement à CAMBRAI
Appartement à CAMBRAI
Appartement à CAMBRAI
Appartement à CAMBRAI
Appartement à CAMBRAI
Appartement à CAMBRAI
Appartement à CAMBRAI
Appartement à CAMBRAI
Appartement à CAMBRAI
Appartement à CAMBRAI
Appartement à CAMBRAI
Appartement à CAMBRAI
Ce site est protégé par reCAPTCHA la Politique de confidentialité et les Conditions d’utilisation de Google s’appliquent.
Obtenir un prêt immobilier au meilleur taux ?

En poursuivant votre navigation sans modifier vos paramètres, vous acceptez l'utilisation de cookies susceptibles de réaliser des statistiques de visite. Cliquez ici pour plus d'informations