*** appartement t3 avec terrasse vue mer à palavas ***

— Palavas-Les-Flots 34250 —
249 000 €
51 m²
3 pièces
balcon/terrasse

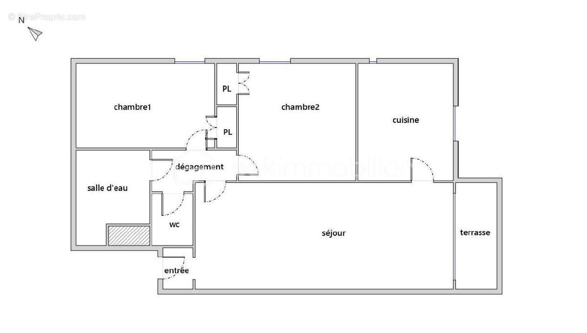
Situé sur l'Avenue Saint-Maurice, à quelques pas des plages, découvrez ce charmant appartement T3 de 51 m² offrant un cadre de vie idéal, aussi bien en résidence principale qu'en pied-à-terre.

Vous serez immédiatement séduit par sa terrasse exposée plein sud, parfaite pour profiter du soleil méditerranéen et offrant une vue mer.

L'appartement se compose de :
• Une belle pièce de vie lumineuse, ouvrant sur la terrasse
• Une cuisine indépendante, pratique et fonctionnelle
• Deux chambres confortables
• Une salle d'eau
• Un WC indépendant

Prestations complémentaires :
• Double vitrage
• Volets roulants électriques
• Store banne motorisé
• Résidence idéalement située, proche des commerces et de la plage
• Bonne performance énergétique : DPE classé C

Faibles charges de copropriété, syndic bénévole (600 euros / an comprenant l'eau)

A visiter rapidement !

Cette annonce référence 312415 vous est présentée par votre agent commercial BSK Immobilier KÉVIN LARCHER (EI) immatriculé au RSAC de MONTPELLIER (34000) sous le numéro 82222435800017.

Prix du bien : 249 000,00 €
Les honoraires d'agence sont à la charge du vendeur.

A propos des performances énergétiques :
Date de réalisation du diagnostic énergétique : 28/08/2025
Score DPE : 161 kWhEP/m²/an
Score GES : 5 kgepCO2/m²/an
Montant estimé des dépenses annuelles d'énergie pour un usage standard : entre 700.00 € et 980.00 € par an. Prix moyens des énergies indexés sur l'année 2021 (abonnements compris).

Les informations sur les risques auxquels ce bien est exposé sont disponibles sur le site Géorisques : www.georisques.gouv.fr
Voir plus

Référence: 312415
Honoraires à la charge du vendeur.
DPE
A
B
C
D
E
F
G
GES
A
B
C
D
E
F
G

Prêt immobilier

Vous souhaitez connaître votre capacité d’emprunt et trouver le meilleur crédit immobilier ?
Réaliser une simulation gratuite

Appartement à PALAVAS-LES-FLOTS
Appartement à PALAVAS-LES-FLOTS
Appartement à PALAVAS-LES-FLOTS
Appartement à PALAVAS-LES-FLOTS
Appartement à PALAVAS-LES-FLOTS
Appartement à PALAVAS-LES-FLOTS
Appartement à PALAVAS-LES-FLOTS
Appartement à PALAVAS-LES-FLOTS
Appartement à PALAVAS-LES-FLOTS
Appartement à PALAVAS-LES-FLOTS
Appartement à PALAVAS-LES-FLOTS
Appartement à PALAVAS-LES-FLOTS
Appartement à PALAVAS-LES-FLOTS
Ce site est protégé par reCAPTCHA la Politique de confidentialité et les Conditions d’utilisation de Google s’appliquent.
Obtenir un prêt immobilier au meilleur taux ?

En poursuivant votre navigation sans modifier vos paramètres, vous acceptez l'utilisation de cookies susceptibles de réaliser des statistiques de visite. Cliquez ici pour plus d'informations