Bénéficiez des services de nos partenaires locaux soigneusement sélectionnés
pour vous accompagner dans votre parcours d'achat immobilier

Paris 75009 - local commercial - ideal investisseur

— Paris-9e 75009 —
2 795 000 €
291 m²

Nos partenaires locaux
Local commercial ou bureaux
Surface 299 m2
Ezra Home Immobilier vous présente une opportunité rare à Paris, idéalement située au rue Ambroise Thomas, au cœur du 9e arrondissement et à proximité immédiate des Grands Boulevards et du quartier de l Opéra.
Ce secteur, reconnu pour son dynamisme économique, attire chaque année de nombreuses entreprises françaises et internationales, ce qui en fait une adresse stratégique pour un investissement professionnel.
Le local bénéficie d une architecture en angle et de très beaux volumes. Les larges façades vitrées offrent une luminosité exceptionnelle, parfaitement visible sur les plans du rez de chaussée et de l étage qui montrent de vastes espaces ouverts adaptés à des usages multiples .
Ce bien se prête aussi bien à l implantation de bureaux qu à l exploitation d une activité commerciale hors restauration selon le règlement de copropriété. Plusieurs configurations sont possibles grâce aux plateaux modulables et aux hauteurs sous plafond appréciables.
Caractéristiques détaillées
Surface totale 299 m2
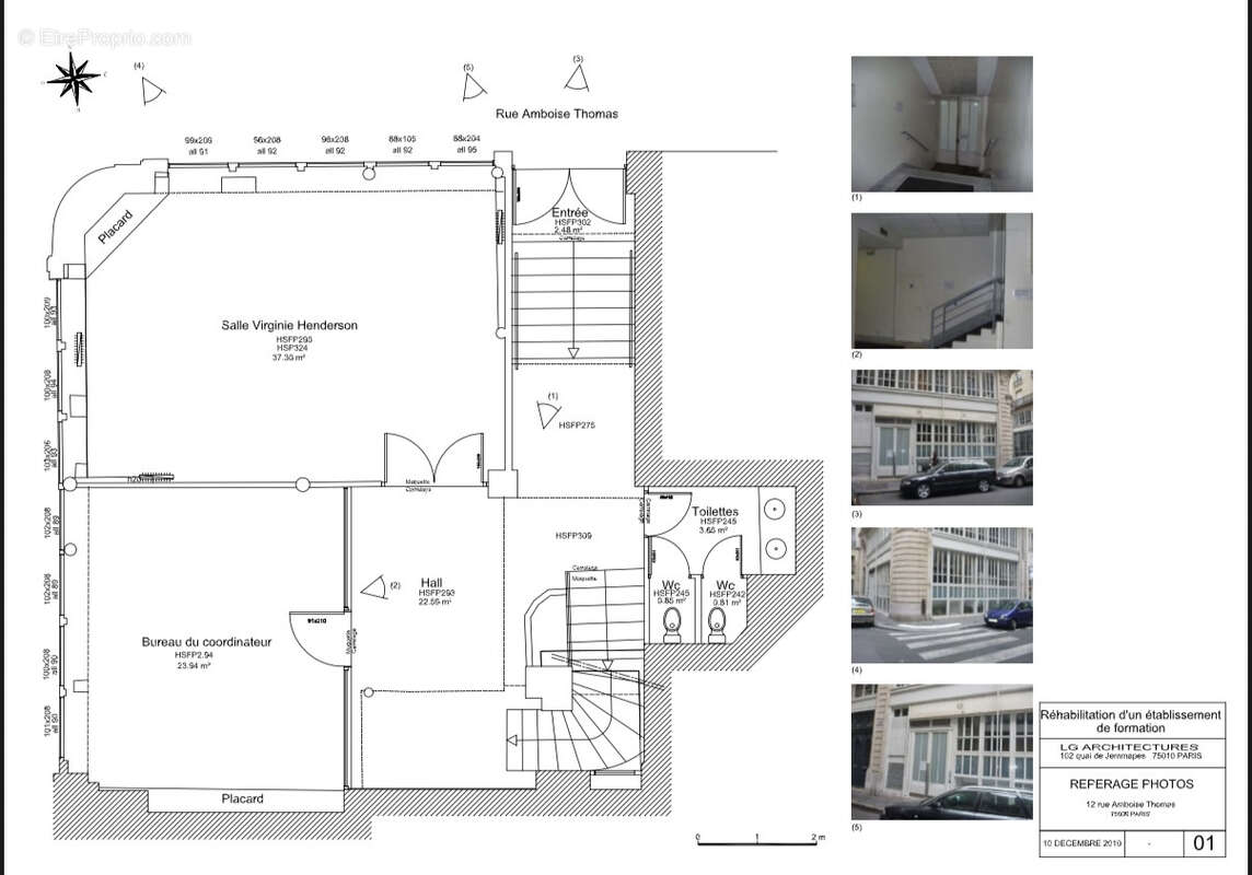
Rez de chaussée surélevé 93 m2 lumineux et traversant
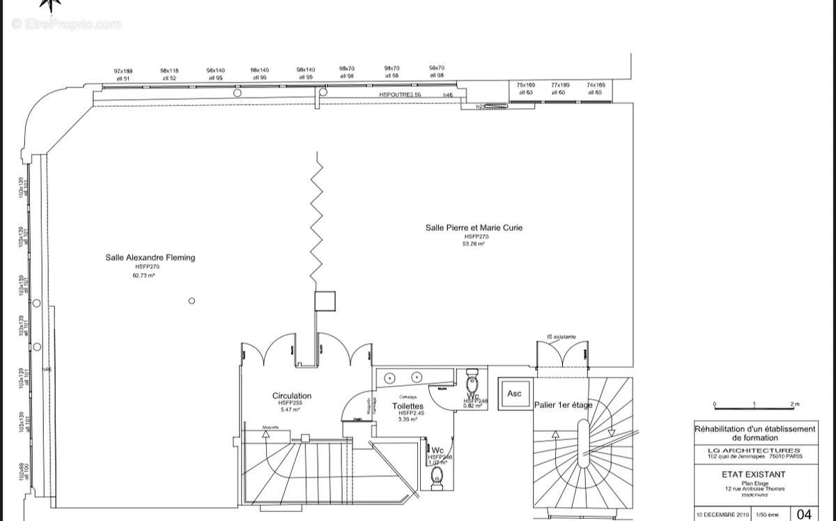
Premier étage 127 m2 avec deux grandes salles et une circulation centrale très efficace
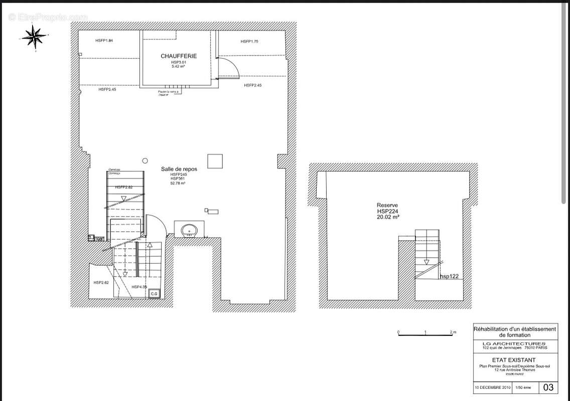
Sous sol 78 m2 avec salle de repos, local technique et chaufferie
Atouts pour investisseurs
Emplacement premium dans un secteur à forte demande locative
Adresse recherchée du 9e arrondissement entre Opéra et Grands Boulevards
Très forte visibilité grâce aux façades vitrées en angle
Volumes rares permettant plusieurs stratégies d occupation
Possibilité de division ou d exploitation en bureaux haut de gamme
Loyer potentiel élevé en fonction du type d activité installée
Local sans travaux lourds, immédiatement exploitable






Voir plus

Bien en copropriété. Nombre de lots : 32.
Barème des honoraires

Prêt immobilier

Vous souhaitez connaître votre capacité d’emprunt et trouver le meilleur crédit immobilier ?
Réaliser une simulation gratuite

Commerce à PARIS-9E
Commerce à PARIS-9E
Commerce à PARIS-9E
Commerce à PARIS-9E
Commerce à PARIS-9E
Commerce à PARIS-9E
Commerce à PARIS-9E
Commerce à PARIS-9E
Commerce à PARIS-9E
Commerce à PARIS-9E
Commerce à PARIS-9E
Commerce à PARIS-9E
Commerce à PARIS-9E
Commerce à PARIS-9E
Commerce à PARIS-9E
Commerce à PARIS-9E
Commerce à PARIS-9E
Commerce à PARIS-9E
Commerce à PARIS-9E
Commerce à PARIS-9E
Ce site est protégé par reCAPTCHA la Politique de confidentialité et les Conditions d’utilisation de Google s’appliquent.
Obtenir un prêt immobilier au meilleur taux ?

En poursuivant votre navigation sans modifier vos paramètres, vous acceptez l'utilisation de cookies susceptibles de réaliser des statistiques de visite. Cliquez ici pour plus d'informations