Bénéficiez des services de nos partenaires locaux soigneusement sélectionnés
pour vous accompagner dans votre parcours d'achat immobilier

La londe-les-maures centre - exclusivité t3 dans résidence de standing - double terrasses vue parc

— La Londe-Les-Maures 83250 —
505 000 €
80 m²
3 pièces
parkingbalcon/terrasse

Nos partenaires locaux
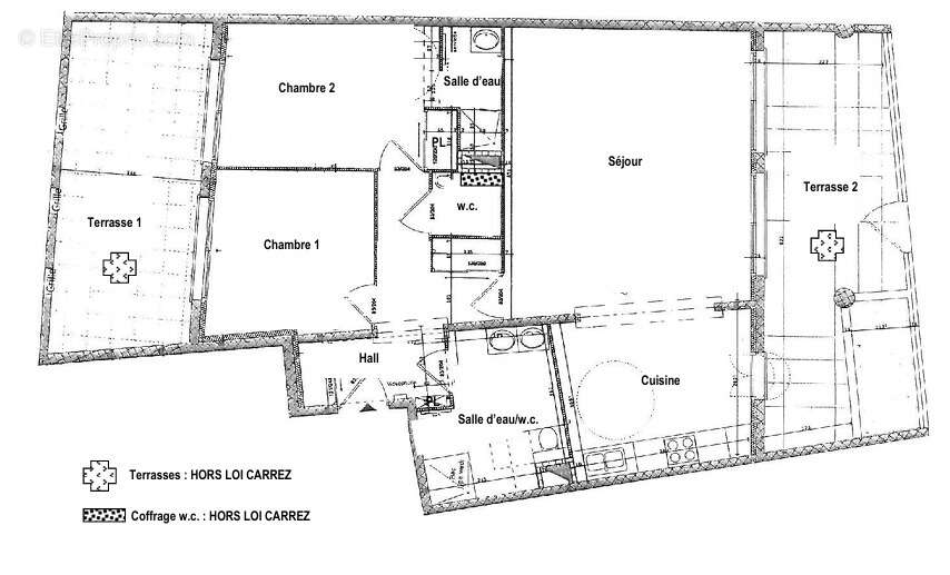
Découvrez ce superbe appartement T3 d’environ 80 m2, situé au rez-de-chaussée d’une résidence récente, sécurisée et de grand standing, en plein cœur de La Londe-les-Maures (83250). Traversant et lumineux, il bénéficie d’un environnement calme, sans vis-à-vis, avec une agréable vue sur un parc arboré


Surface habitable : env. 80 m2


Étage : Rez-de-chaussée (résidence de 3 étages avec ascenseur)


Résidence : Récente, sécurisée, haut standing


Orientation : Traversant séjour exposé Sud


Atout majeur : Deux terrasses privatives ( 34 m2 environ)


Espace de vie


Entrée équipée de rangements.


Séjour spacieux et très lumineux grâce à une large baie vitrée.


Cuisine ouverte entièrement équipée.


Accès direct à la terrasse principale exposée Sud avec vue dégagée sur le parc.


Espace nuit


Chambre principale avec placard intégré et salle d’eau privative.


Deuxième chambre confortable.


Salle de douche indépendante.


WC séparé.


Extérieurs


Deux terrasses permettant de profiter pleinement de l’extérieur.


Terrasse principale exposée Sud, offrant calme, intimité et vue sur parc arboré.


Prestations & Équipements


Double vitrage offrant excellent confort acoustique et thermique.


Cuisine et salles d’eau modernes et fonctionnelles.


Appartement vendu entièrement équipé.


Stationnement & Annexes


Cave et Garage fermé et sécurisé disponible en sus : 31 000 €


Localisation idéale
Situé en plein centre-ville, l’appartement offre un accès à pied à toutes les commodités :


Commerces, restaurants, cafés


Marché


Transports en commun


Un emplacement parfait pour une vie annuelle confortable et pratique.
Informations complémentaires


DPE : B A


Charges de copropriété : env. 170 €/mois dont eau chaude et froide ( panneaux solaires)


Taxe foncière : 1 637 €


Conformément aux nouvelles réglementations : « Les informations sur les risques auxquels ce bien est exposé sont disponibles sur le site Géorisques : www.georisques.gouv.fr ». La Londe-les-Maures : Un Cadre de Vie Privilégié Le bien se situe dans la charmante commune de La Londe-les-Maures, sur la magnifique Côte d'Azur Varoise, entre Hyères et Le Lavandou. Entre ses collines verdoyantes, ses vignobles réputés et ses plages de sable fin, La Londe-les-Maures fait face aux légendaires Îles D’Or (Port-Cros et Porquerolles). Son cœur de village, vibrant et actif toute l'année, est parfaitement relié par la voie verte des Annamites aux plages de la Baie des Isles, de l’Argentière et au Port de plaisance Miramar. Ses paysages méditerranéens variés, ses espaces naturels protégés et un climat d'une douceur exceptionnelle font de La Londe une destination de choix pour la villégiature et une vie à l'année. La commune est idéalement desservie : proche de l'accès à l'autoroute A57 (reliant Toulon/Marseille/Aix/Nice), à quelques minutes de l'aéroport de Toulon-Hyères, et des gares TGV de Hyères/Toulon. Contact & Visites Pour toute information complémentaire ou pour organiser une visite de ce bien exceptionnel, veuillez contacter : Agnes ROUSSEAU Téléphone : [Coordonnées masquées] Email : [Coordonnées masquées] Découvrez toutes nos offres sur notre site : www.agenceleslondaises.com L'Agence Les Londaises : Votre Expert Immobilier Local L'Agence Les Londaises vous accueille chaleureusement dans son Agence Boutique située en plein centre-ville de La Londe-les-Maures, au 4 rue Maréchal Foch. Forts de 12 ans d'expérience sur le secteur Londais, nos spécialistes vous accompagnent avec efficacité et professionnalisme dans tous vos projets d'achat, de vente ou de location saisonnière. Nous vous proposons un large éventail d'appartements, de maisons et de garages à la vente, et nous sommes là pour vous aider dans vos démarches de location saisonnière dans la région et ses environs.
Voir plus

Référence: 4152
Honoraires d'agence de 4.12% à la charge de l'acquéreur
Barème des honoraires
DPE
A
B
C
D
E
F
G
GES
A
B
C
D
E
F
G

Prêt immobilier

Vous souhaitez connaître votre capacité d’emprunt et trouver le meilleur crédit immobilier ?
Réaliser une simulation gratuite

Appartement à LA LONDE-LES-MAURES
Appartement à LA LONDE-LES-MAURES
Appartement à LA LONDE-LES-MAURES
Appartement à LA LONDE-LES-MAURES
Appartement à LA LONDE-LES-MAURES
Appartement à LA LONDE-LES-MAURES
Appartement à LA LONDE-LES-MAURES
Appartement à LA LONDE-LES-MAURES
Ce site est protégé par reCAPTCHA la Politique de confidentialité et les Conditions d’utilisation de Google s’appliquent.
Obtenir un prêt immobilier au meilleur taux ?

En poursuivant votre navigation sans modifier vos paramètres, vous acceptez l'utilisation de cookies susceptibles de réaliser des statistiques de visite. Cliquez ici pour plus d'informations