Calme et verdure pour ce t2 avec jardin à 5 mn de paris

— Montrouge 92120 —
437 000 €
52 m² / 47 m²
2 pièces
jardinascenseur

Exclusivité by Aurel. Montrouge porte d’Orléans.
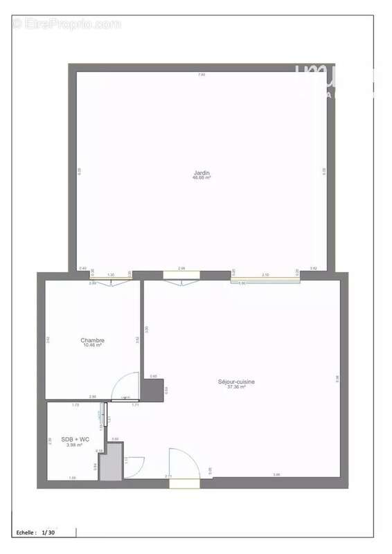
À 2km de porte d’Orléans, au coeur des commodités, cet appartement 2 pièces de 52 m2 ( 51,80 m2 carrez) avec jardin de 46,66 m2 se situe au rez-de chaussée d’une résidence arborée de 1991. Il se compose ainsi : une belle pièce de vie de 37 m2 avec cuisine aménagée et équipée, une chambre, le tout ouvrant sur terrasse et jardin, une salle d’eau avec toilettes. S’ajoutent à ce bien une cave et une place de parking en sous-sol.

Situé au coeur d’un parc et avec son jardin à usage privatif, cet appartement cocon allie la verdure et un agencement de qualité réalisé avec beaucoup de goût: espace optimisé avec nombreux rangements, pas de perte d’espace, cuisine aménagée et équipée (meubles haut et bas, four, plaques induction, hotte, lave vaisselle, réfrigérateur congélateur, lave linge), chambre avec dressing, salle d’eau avec toilettes suspendues à jets, vue sur terrasse et jardin depuis toutes les pièces, porte blindée, double vitrage, détecteur de fumée, fibre optique, sol en béton ciré.

L’immeuble dont l’accès est sécurisé par une grille, vigik et digicode, est idéalement situé à moins de 10 mn à pied des métros ( ligne 13 et 4), des commerces, restaurants, école, collège et lycée. École de commerce PPA Business School à 5mn. Périphérique et accès A6 à 5mn.

Charges de copropriété annuelles (quote part prévisionnelle vendeur): 1396 euros incluant eau froide et entretien des parties communes. Pas de procédure syndic en cours. 416,400 € Honoraires d'agence non inclus - Honoraires agence: 4.95%TTC Honoraires à la charge de l'acquéreur - Montant moyen de la quote-part de charges courantes 1,404 €/an - Montant estimé des dépenses annuelles d'énergie pour un usage standard, établi à partir des prix de l'énergie de l'année 2023 : 870€ ~ 1240€ - Aurelia ROSMY - Agent commercial - EI - RSAC VERSAILLES 479669160 - RCS 4[Coordonnées masquées]127 - Caisse de garantie QBE transaction 500000 EUR
Voir plus

Référence: 86382182
Barème des honoraires
DPE
A
B
C
D
E
F
G
GES
A
B
C
D
E
F
G

Prêt immobilier

Vous souhaitez connaître votre capacité d’emprunt et trouver le meilleur crédit immobilier ?
Réaliser une simulation gratuite

Appartement à MONTROUGE
Appartement à MONTROUGE
Appartement à MONTROUGE
Appartement à MONTROUGE
Appartement à MONTROUGE
Appartement à MONTROUGE
Appartement à MONTROUGE
Appartement à MONTROUGE
Appartement à MONTROUGE
Appartement à MONTROUGE
Appartement à MONTROUGE
Appartement à MONTROUGE
Appartement à MONTROUGE
Appartement à MONTROUGE
Appartement à MONTROUGE
Ce site est protégé par reCAPTCHA la Politique de confidentialité et les Conditions d’utilisation de Google s’appliquent.
Obtenir un prêt immobilier au meilleur taux ?

En poursuivant votre navigation sans modifier vos paramètres, vous acceptez l'utilisation de cookies susceptibles de réaliser des statistiques de visite. Cliquez ici pour plus d'informations