Exclusivité - proche 5ème – élégant trois pièces rénové avec charme de l’ancien et vue dégagée

— Paris-5e 75005 —
520 000 €
55 m²
3 pièces
ascenseur

Exclusivité - De nouveau à la vente ! À proximité du Jardin des Plantes, de la rue Monge et du cœur du 5e arrondissement, cet appartement de trois pièces conjugue charme, luminosité et situation privilégiée dans un secteur recherché de la rive gauche.

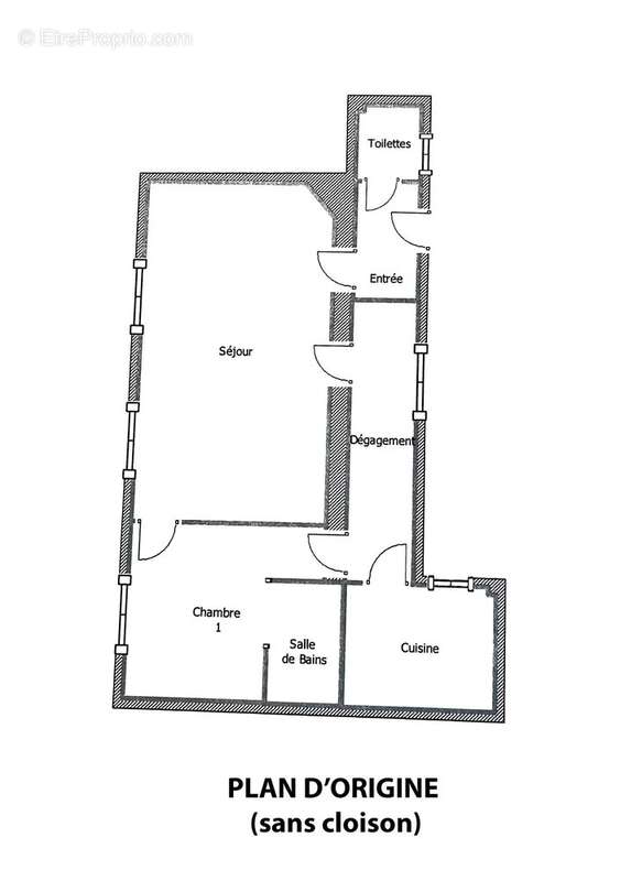
Installé au premier étage avec ascenseur d’un bel immeuble en pierre de taille, il développe une surface de 54,77 m² Loi Carrez. Aujourd’hui organisé en un séjour lumineux, deux chambres, une cuisine indépendante aménagée, une salle de bains et des toilettes séparées. Le plan, à la fois fluide et modulable, s’adapte aisément aux besoins de ses futurs occupants.
L’appartement séduit par ses beaux volumes, sa hauteur sous plafond généreuse, son parquet ancien, ses grandes fenêtres cintrées et son poêle prussien d’origine : autant d’éléments qui soulignent l’authenticité et l’élégance des lieux.

Grâce à sa double exposition sud-est, il bénéficie d’un ensoleillement important et d’une vue dégagée sur les arbres du boulevard, conférant une agréable sensation d’espace, de verdure et de clarté.

La copropriété est bien tenue, avec une gardienne à demeure et des charges de fonctionnement mesurées.

Le quartier, vivant et dynamique, bénéficie d’un environnement particulièrement riche : grands établissements hospitaliers (Pitié-Salpêtrière, Institut de cardiologie, Saint-Antoine), universités et facultés de renom (Jussieu, Sorbonne, Faculté de Médecine) en font un secteur à la fois central, intellectuel et patrimonial.
Excellente desserte en transports en commun, avec les métros lignes 5 et 7, le RER C ainsi que de nombreuses lignes de bus (), facilitant les déplacements vers le centre de Paris, les gares et les quartiers d'affaires.

Le diagnostic énergétique en classe F s’explique par la présence d’une chaudière individuelle ancienne, qu’il conviendra de remplacer pour améliorer la performance énergétique (devis sur demande).
Un bien rare, alliant cachet, clarté et emplacement stratégique, idéal pour une résidence principale comme pour un pied-à-terre de qualité.
Voir plus

Référence: 00060 bis
Barème des honoraires
DPE
A
B
C
D
E
F
G
GES
A
B
C
D
E
F
G

Prêt immobilier

Vous souhaitez connaître votre capacité d’emprunt et trouver le meilleur crédit immobilier ?
Réaliser une simulation gratuite

Appartement à PARIS-5E
Appartement à PARIS-5E
Appartement à PARIS-5E
Appartement à PARIS-5E
Appartement à PARIS-5E
Appartement à PARIS-5E
Appartement à PARIS-5E
Appartement à PARIS-5E
Appartement à PARIS-5E
Appartement à PARIS-5E
Ce site est protégé par reCAPTCHA la Politique de confidentialité et les Conditions d’utilisation de Google s’appliquent.
Obtenir un prêt immobilier au meilleur taux ?

En poursuivant votre navigation sans modifier vos paramètres, vous acceptez l'utilisation de cookies susceptibles de réaliser des statistiques de visite. Cliquez ici pour plus d'informations