Bénéficiez des services de nos partenaires locaux soigneusement sélectionnés
pour vous accompagner dans votre parcours d'achat immobilier

Voir tous les partenaires locaux

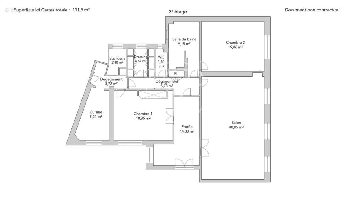
Paris 16e - ocde - appartement à vendre - 4 pièces - 131,51m² carrez - 2 chambres.

— Paris-16e 75016 —
1 890 000 €
132 m²
4 pièces
ascenseur

Nos partenaires locaux
Au sein d’un immeuble ancien en pierre de taille, cet appartement de 131,51m² loi Carrez au troisième étage par ascenseur se distingue par ses beaux volumes et son cachet préservé.

Il comporte une entrée, un double séjour, une suite avec salle de bains, une deuxième chambre, un dressing, une buanderie. Une deuxième salle de bains est possible.

Charme de l'ancien : parquet, moulures, cheminées et belle hauteur sous plafond.

Une cave complète ce bien.

Gardien à demeure.
Voir plus

Référence: 2188PASCAS3
Barème des honoraires
DPE
A
B
C
D
E
F
G
GES
A
B
C
D
E
F
G

Prêt immobilier

Vous souhaitez connaître votre capacité d’emprunt et trouver le meilleur crédit immobilier ?
Réaliser une simulation gratuite

Appartement à PARIS-16E
Appartement à PARIS-16E
Appartement à PARIS-16E
Appartement à PARIS-16E
Appartement à PARIS-16E
Appartement à PARIS-16E
Appartement à PARIS-16E
Appartement à PARIS-16E
Appartement à PARIS-16E
Appartement à PARIS-16E
Appartement à PARIS-16E
Appartement à PARIS-16E
Appartement à PARIS-16E
Appartement à PARIS-16E
Appartement à PARIS-16E
Appartement à PARIS-16E
Appartement à PARIS-16E
Appartement à PARIS-16E
Appartement à PARIS-16E
Appartement à PARIS-16E
Appartement à PARIS-16E
Appartement à PARIS-16E
Appartement à PARIS-16E
Ce site est protégé par reCAPTCHA la Politique de confidentialité et les Conditions d’utilisation de Google s’appliquent.
Obtenir un prêt immobilier au meilleur taux ?

En poursuivant votre navigation sans modifier vos paramètres, vous acceptez l'utilisation de cookies susceptibles de réaliser des statistiques de visite. Cliquez ici pour plus d'informations