Bénéficiez des services de nos partenaires locaux soigneusement sélectionnés
pour vous accompagner dans votre parcours d'achat immobilier

Voir tous les partenaires locaux

A vendre - hippodrome d'auteuil - 4 pièces - 92,69 m²

— Paris-16e 75016 —
1 050 000 €
93 m² / 3 m²
4 pièces
balcon/terrassejardinascenseur

Nos partenaires locaux
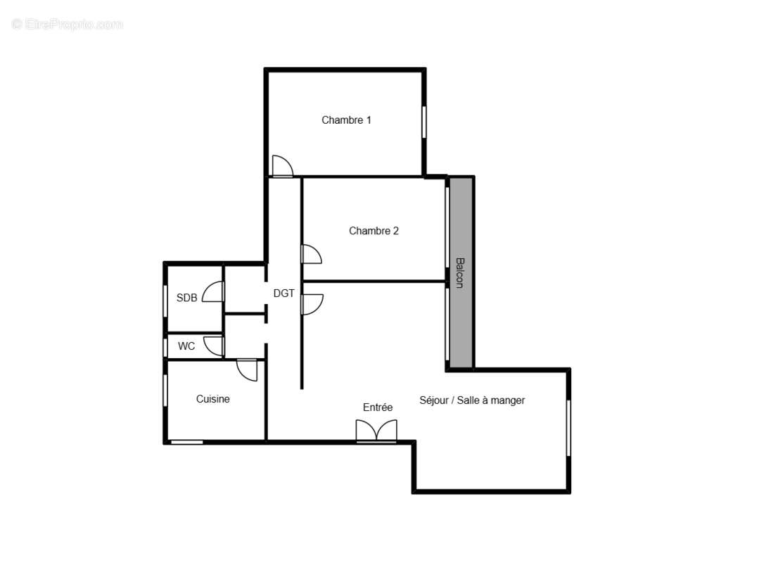
Hippodrome d'Auteuil - 4 pièces Appartement de 92,69 situé au deuxième étage par ascenseur au sein d'un immeuble ancien de bon standing. Entrée, double séjour donnant accès à un balcon, cuisine indépendante aménagée équipée, 2 chambres (3 chambres possibles), une salle de bains et 1 WC. Une cave complète ce bien. Une place de parking est disponible du prix. Idéalement situé à proximité directe des transports (ligne 10) et de toutes commodités. Sectorisation Jean de la Fontaine. Depuis 1993, BUILDING PARTNERS accompagne les propriétaires dans la vente de biens immobiliers de standing sur l'ouest parisien. Notre force ? Une organisation unique avec deux rôles experts : >Les Brokers, spécialisés dans la prospection et la valorisation de votre bien. >Les Sellers, experts en négociation et en mise en relation avec notre portefeuille d'acheteurs qualifiés. Avec 5 agences implantées au coeur des quartiers les plus recherchés (Paris 16e, Paris 17e, Neuilly, Levallois, Courbevoie), nous vous offrons une visibilité maximale, un accompagnement personnalisé et un engagement total jusqu'à la signature. Confiez-nous votre bien pour une vente rapide, au meilleur prix. Estimation offerte, confidentielle et sans engagement. Copropriété de 28 lots (Pas de procédure en cours).
Voir plus

Référence: 7601
Bien en copropriété. Nombre de lots : 28.
Honoraires à la charge du vendeur.
Barème des honoraires

Prêt immobilier

Vous souhaitez connaître votre capacité d’emprunt et trouver le meilleur crédit immobilier ?
Réaliser une simulation gratuite

Appartement à PARIS-16E
Appartement à PARIS-16E
Appartement à PARIS-16E
Appartement à PARIS-16E
Appartement à PARIS-16E
Appartement à PARIS-16E
Ce site est protégé par reCAPTCHA la Politique de confidentialité et les Conditions d’utilisation de Google s’appliquent.
Obtenir un prêt immobilier au meilleur taux ?

En poursuivant votre navigation sans modifier vos paramètres, vous acceptez l'utilisation de cookies susceptibles de réaliser des statistiques de visite. Cliquez ici pour plus d'informations