Bénéficiez des services de nos partenaires locaux soigneusement sélectionnés
pour vous accompagner dans votre parcours d'achat immobilier

Maison 136m² à demigny

— Demigny 71150 —
365 000 €
136 m² / 593 m²
6 pièces
parkingjardin

Nos partenaires locaux
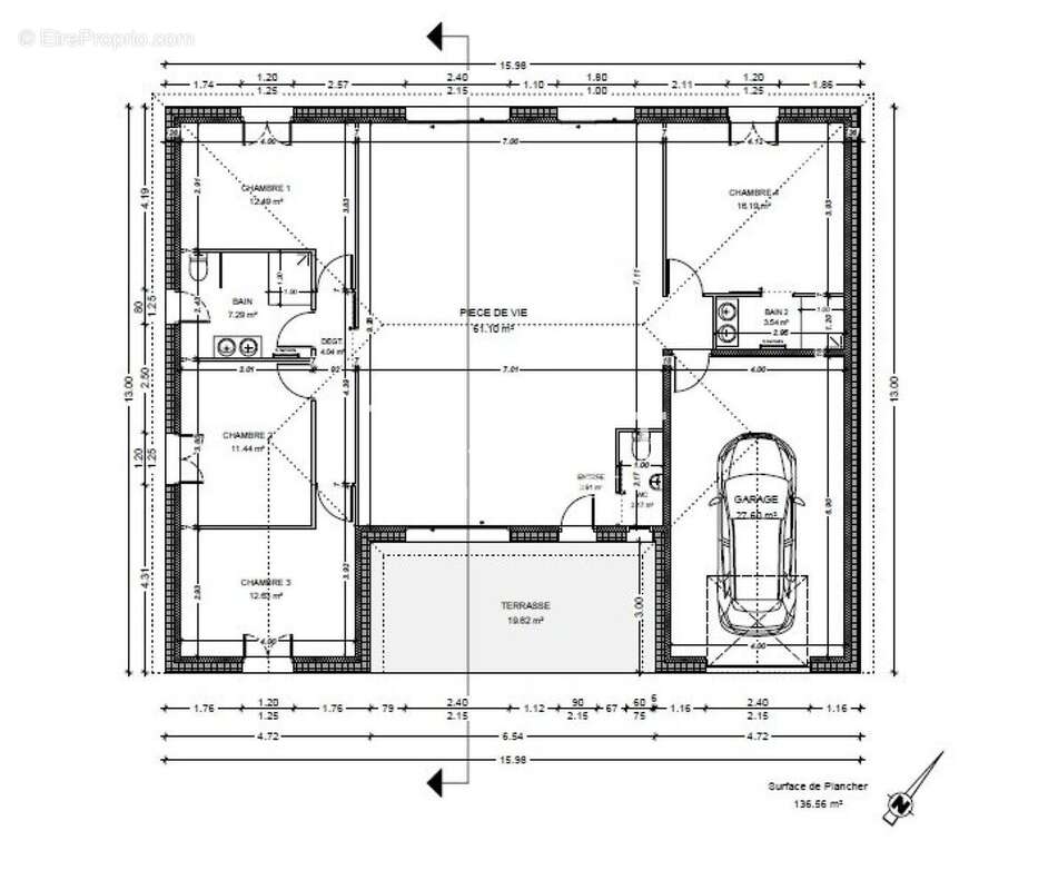
Située à Demigny, à 10 min de Beaune, cette maison neuve de 136 m² repose sur un terrain de 593 m² clôturé dans un quartier paisible et attractif. Cette commune dynamique offre un cadre de vie calme et convivial, à proximité de toutes les commodités essentielles telles que les écoles, les commerces locaux et les espaces de loisirs. De plus, sa localisation stratégique permet un accès rapide aux grands axes routiers facilitant les déplacements quotidiens.

Construite en 2025, cette maison neuve présente une surface habitable de 136 m², elle est composée de quatre chambres dont une suite parentale avec sa salle d'eau, une salle de bain de 7 m² et deux WC, le plus, sa pièce de vie de 61 m² avec son accès direct sur sa terrasse de 20 m², offrant un potentiel d'aménagement remarquable. Sa pompe à chaleur par chauffage au sol vous permettra de profiter d'un confort agréable.
Idéale pour les familles en quête d'un espace de vie spacieux, elle propose un environnement moderne à personnaliser selon les besoins. Cette propriété représente une opportunité rare pour profiter d'un cadre de vie unique, alliant confort et sérénité dans la charmante ville de Demigny.

Les informations sur les risques auxquels ce bien est exposé sont disponibles sur le site Géorisques : www.georisques.gouv.fr
Prix de vente : 365 000 ¤
Honoraires charge vendeur

Contactez votre conseiller SAFTI : Lindy PERROT, Tél. : [Coordonnées masquées], E-mail : [Coordonnées masquées] - EI - Agent commercial immatriculé au RSAC de CHALON-SUR-SAONE sous le numéro 797 601 036.
Informations LOI ALUR :
Honoraires charge vendeur. (gedeon_26118_32224678)
Voir plus

Référence: 1565441
Honoraires à la charge du vendeur.
Barème des honoraires
DPE
A
B
C
D
E
F
G
GES
A
B
C
D
E
F
G

Prêt immobilier

Vous souhaitez connaître votre capacité d’emprunt et trouver le meilleur crédit immobilier ?
Réaliser une simulation gratuite

Photo 1 - Maison à DEMIGNY
Photo 1
Photo 2 - Maison à DEMIGNY
Photo 2
Photo 3 - Maison à DEMIGNY
Photo 3
Photo 4 - Maison à DEMIGNY
Photo 4
Photo 5 - Maison à DEMIGNY
Photo 5
Photo 6 - Maison à DEMIGNY
Photo 6
Photo 7 - Maison à DEMIGNY
Photo 7
Photo 8 - Maison à DEMIGNY
Photo 8
Ce site est protégé par reCAPTCHA la Politique de confidentialité et les Conditions d’utilisation de Google s’appliquent.
Obtenir un prêt immobilier au meilleur taux ?

En poursuivant votre navigation sans modifier vos paramètres, vous acceptez l'utilisation de cookies susceptibles de réaliser des statistiques de visite. Cliquez ici pour plus d'informations