Bénéficiez des services de nos partenaires locaux soigneusement sélectionnés
pour vous accompagner dans votre parcours d'achat immobilier

Maison 180m² à chalons-en-champagne

— Chalons-En-Champagne 51000 —
250 000 €
180 m² / 246 m²
6 pièces
parkingbalcon/terrassejardin

Nos partenaires locaux
Iad France - Gianni Mirabile vous propose : Cet ensemble immobilier réunit résidence principale et investissement locatif !

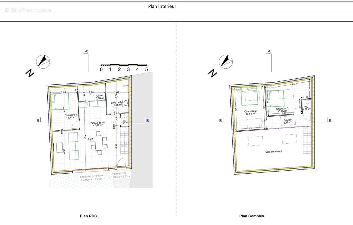
Propriété à Châlons-en-Champagne secteur piscine olympique combinant un premier bâtiment composé d'un sous-sol en rez-de-chaussée pouvant accueillir trois véhicules, l'accès se fait depuis la cour, ainsi qu'un appartement de 60 m² environ entièrement à rénover à l'étage.

En fond de cour, une maison esprit loft avec un intérieur entièrement neuf qui sera composée d'un séjour / cuisine avec un accès direct sur l'extérieur pour profiter des belles journées, une chambre, un wc et une salle d'eau la rendront vivable de plain pied, puis à l'étage deux chambres et un wc complèteront ce bien.

À découvrir rapidement, pour plus d'informations n'hésitez pas à me contacter par téléphone.

Honoraires d'agence à la charge du vendeur.
Bien non soumis au DPE. Les informations sur les risques auxquels ce bien est exposé, y compris l'obligation légale de débroussaillement, sont disponibles sur le site Géorisques : http://www.georisques.gouv.fr.
La présente annonce immobilière a été rédigée sous la responsabilité éditoriale de M Gianni Mirabile mandataire indépendant en immobilier (sans détention de fonds), agent commercial de la SAS I@D France immatriculé au RSAC de Chalons en champagne sous le numéro 791 377 849, titulaire de la carte de démarchage immobilier pour le compte de la société I@D France SAS.
Informations LOI ALUR :
Honoraires charge vendeur. (gedeon_6727_32068220)
Voir plus

Référence: 1864788
Honoraires à la charge du vendeur.

Prêt immobilier

Vous souhaitez connaître votre capacité d’emprunt et trouver le meilleur crédit immobilier ?
Réaliser une simulation gratuite

Photo 1 - Maison à CHALONS-EN-CHAMPAGNE
Photo 1
Photo 2 - Maison à CHALONS-EN-CHAMPAGNE
Photo 2
Photo 3 - Maison à CHALONS-EN-CHAMPAGNE
Photo 3
Photo 4 - Maison à CHALONS-EN-CHAMPAGNE
Photo 4
Photo 5 - Maison à CHALONS-EN-CHAMPAGNE
Photo 5
Photo 6 - Maison à CHALONS-EN-CHAMPAGNE
Photo 6
Photo 7 - Maison à CHALONS-EN-CHAMPAGNE
Photo 7
Photo 8 - Maison à CHALONS-EN-CHAMPAGNE
Photo 8
Photo 9 - Maison à CHALONS-EN-CHAMPAGNE
Photo 9
Ce site est protégé par reCAPTCHA la Politique de confidentialité et les Conditions d’utilisation de Google s’appliquent.
Obtenir un prêt immobilier au meilleur taux ?

En poursuivant votre navigation sans modifier vos paramètres, vous acceptez l'utilisation de cookies susceptibles de réaliser des statistiques de visite. Cliquez ici pour plus d'informations