Bénéficiez des services de nos partenaires locaux soigneusement sélectionnés
pour vous accompagner dans votre parcours d'achat immobilier

Maison 415m² à villereversure

— Villereversure 01250 —
520 000 €
415 m² / 51 700 m²
20 pièces
jardin

Nos partenaires locaux
Dans un cadre bucolique, découvrez cette maison de maître de 1850 en cours de rénovation, développant 415 m² au sol, accompagnée de son terrain attenant de 5,17 hectares.
Au rez-de-chaussée, un vaste hall d'entrée distribue un grand salon/séjour avec cellier et cuisine, une chambre ou bureau, un WC visiteurs ainsi qu'une buanderie.
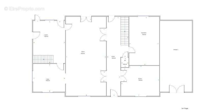
Au premier étage, vous trouverez six chambres, toutes dotées de cheminées et de rangements, ainsi qu'une salle de bains et un WC séparé.
Au deuxième étage, entièrement à rénover offrant un beau potentiel d'aménagement, se répartissent six pièces supplémentaires ainsi qu'une salle d'eau, .
En sous-sol, la maison dispose d'un garage et d'une cave.
La propriété comprend également plusieurs annexes, dont un hangar d'environ 400 m², idéal pour divers projets.
Entourée de paysages naturels préservés, de terres agricoles et de zones forestières, cette propriété bénéficie d'un cadre de vie exceptionnel, accès direct à la nature. Sentiers de promenade et de randonnée à proximité. Gare permettant de rejoindre rapidement Bourg-en-Bresse et les principaux axes régionaux. Vous profiterez d'une commune dynamique, au charme rural, située dans un secteur reconnu pour sa biodiversité (ZNIEFF, Natura 2000), garantissant un environnement préservé et agréable.
Grâce à sa configuration, son terrain et son emplacement, cette propriété représente une opportunité rare pour un projet touristique (gîtes, séminaires, éco-lodge, accueil de groupes)
équestre ou agricole.

Honoraires à la charge du vendeur. Classe énergie D, Classe climat D Montant estimé des dépenses annuelles d'énergie pour un usage standard : entre 7370.00 € et 10030.00 € sur les années 2021, 2022 et 2023 (abonnements compris). Les informations sur les risques auxquels ce bien est exposé sont disponibles sur le site Géorisques : georisques.gouv.fr.
Voir plus

Référence: 5239-ACCORTGAILLARD74240
Honoraires à la charge du vendeur.
Barème des honoraires
DPE
A
B
C
D
E
F
G
GES
A
B
C
D
E
F
G

Prêt immobilier

Vous souhaitez connaître votre capacité d’emprunt et trouver le meilleur crédit immobilier ?
Réaliser une simulation gratuite

Maison à VILLEREVERSURE
Maison à VILLEREVERSURE
Maison à VILLEREVERSURE
Maison à VILLEREVERSURE
Maison à VILLEREVERSURE
Maison à VILLEREVERSURE
Maison à VILLEREVERSURE
Maison à VILLEREVERSURE
Maison à VILLEREVERSURE
Ce site est protégé par reCAPTCHA la Politique de confidentialité et les Conditions d’utilisation de Google s’appliquent.
Obtenir un prêt immobilier au meilleur taux ?

En poursuivant votre navigation sans modifier vos paramètres, vous acceptez l'utilisation de cookies susceptibles de réaliser des statistiques de visite. Cliquez ici pour plus d'informations