Bénéficiez des services de nos partenaires locaux soigneusement sélectionnés
pour vous accompagner dans votre parcours d'achat immobilier

Maison à vendre 7 pièces betton (35)

— Betton 35830 —
449 900 €
239 m² / 1 190 m²
7 pièces
parking

Nos partenaires locaux
Optimhome, l'agence immobilière en ligne, vous présente :

35830 - BETTON - 15MIN RENNES - MAISON T7 - ENTIEREMENT RENOVEE - 5 CHAMBRES - SOUS-SOL 80M2 - CAVE - JARDIN 1190 M2 - CALME - LUMINEUX

Optimhome à le plaisir de vous présenter cette belle maison familiale fraîchement rénovée – 5 chambres – Jardin arboré de 1190m2 – Dépendance – A 5 min de Saint-Grégoire et aux portes de Rennes.

Située en campagne de Betton, dans un environnement calme et verdoyant, cette maison d' une surface utile de 249 m² (169 m² de surface utiles + 80m2 de sous-sol avec accès direct) remise entièrement au goût du jour allie confort moderne, beaux volumes et vie au grand air, à seulement 15 minutes du centre de Rennes.

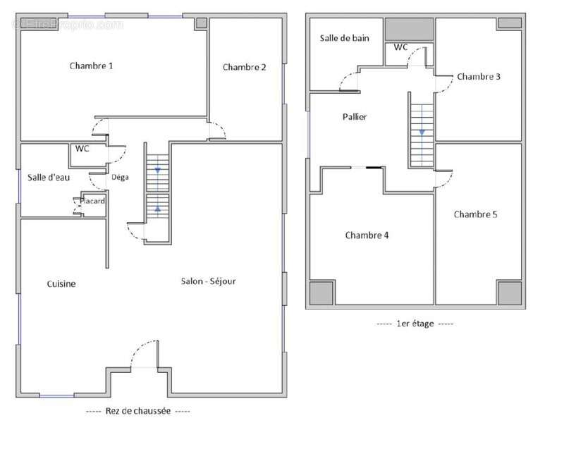
*** Au rez-de-chaussée :
Une entrée accueillante dessert une grand pièce de vie comprenant un séjour/ salle à manger traversant, exposé sud avec poêle à bois et une cuisine ouverte aménagée et équipée neuve.
Deux chambres, dont une avec dressing
Une salle d'eau contemporaine
Un WC séparé

*** À l'étage :
Trois chambres supplémentaires
Un espace polyvalent idéal pour un bureau, une salle de jeux ou une bibliothèque
Une salle de bains
Un second WC indépendant

Les +++ :
Un sous-sol complet de plus de 80 m² (garage, cave à vins, rangements)
Une dépendance extérieure, parfaite pour du stockage, un atelier ou un futur espace de loisirs
Un jardin clos, arboré et entretenu, accessible directement depuis le salon, parfait pour profiter pleinement de l'extérieur

Cette maison offre un cadre de vie idéal pour une famille, à proximité immédiate des écoles, commerces et accès rapides vers Rennes.

Un bien rare sur le secteur, qui allie campagne, confort et accessibilité.

Contactez-moi pour organiser une visite et découvrir tout son potentiel Les honoraires d'agence sont à la charge de l'acquéreur, soit 4,63% TTC du prix hors honoraires.
Les informations sur les risques auxquels ce bien est exposé sont disponibles sur le site Géorisques : www. georisques. gouv. fr.

Contactez Julie ARGOUD Entrepreneur Individuel, Agent commercial OptimHome (RSAC N°752 765 792 Greffe de LYON) [Coordonnées masquées] (réf. 590102 )
Voir plus

Référence: 830036680236
DPE
A
B
C
D
E
F
G
GES
A
B
C
D
E
F
G

Prêt immobilier

Vous souhaitez connaître votre capacité d’emprunt et trouver le meilleur crédit immobilier ?
Réaliser une simulation gratuite

Maison à BETTON
Maison à BETTON
Maison à BETTON
Maison à BETTON
Maison à BETTON
Maison à BETTON
Maison à BETTON
Maison à BETTON
Maison à BETTON
Maison à BETTON
Maison à BETTON
Maison à BETTON
Maison à BETTON
Maison à BETTON
Maison à BETTON
Maison à BETTON
Maison à BETTON
Maison à BETTON
Maison à BETTON
Maison à BETTON
Maison à BETTON
Ce site est protégé par reCAPTCHA la Politique de confidentialité et les Conditions d’utilisation de Google s’appliquent.
Obtenir un prêt immobilier au meilleur taux ?

En poursuivant votre navigation sans modifier vos paramètres, vous acceptez l'utilisation de cookies susceptibles de réaliser des statistiques de visite. Cliquez ici pour plus d'informations