Bénéficiez des services de nos partenaires locaux soigneusement sélectionnés
pour vous accompagner dans votre parcours d'achat immobilier

Vente appartement 5 pièces de 108m² - 93160 noisy-le-grand

— Noisy-Le-Grand 93160 —
495 000 €
108 m²
5 pièces

Nos partenaires locaux
Casavo vous propose à la vente

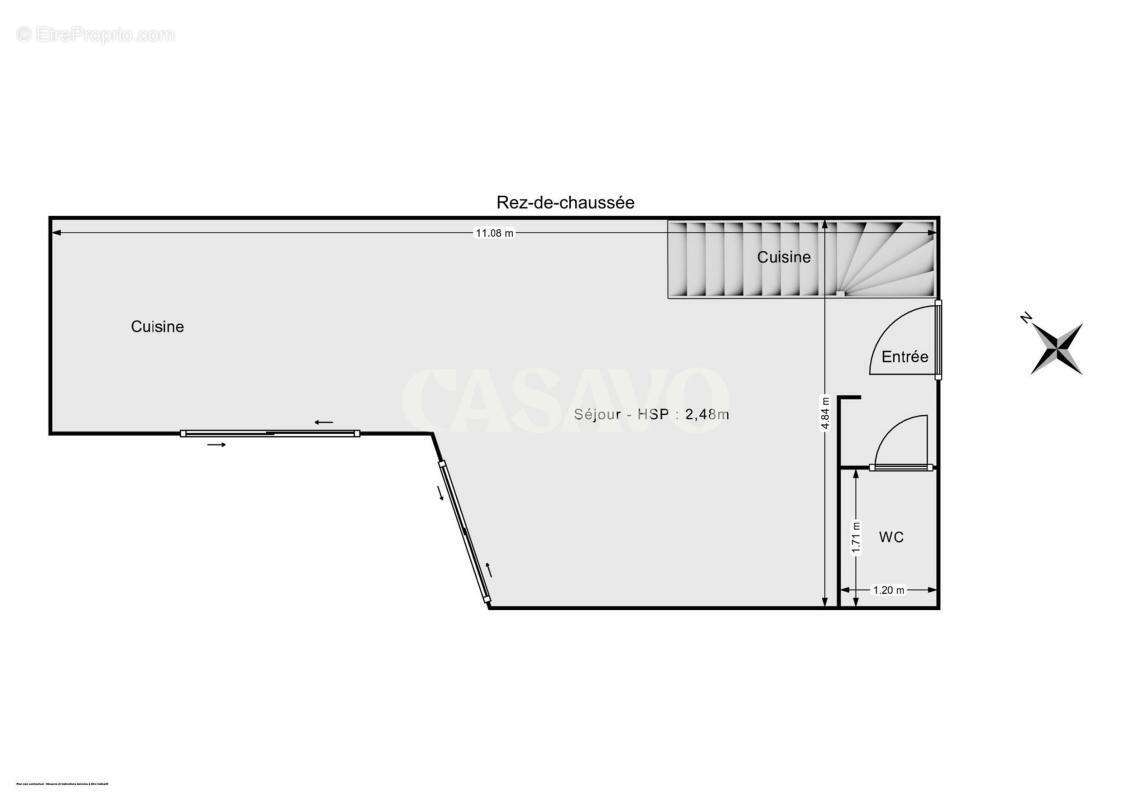
Un appartement en triplex de 5 pièces de 108.0 m² localisé dans le quartier des Richardets.
Il se compose d'un séjour, de 4 chambres, de 2 salles d'eau de 3 WC.

Vous rêvez de devenir propriétaire d'un appartement n.e.u.f, spacieux et lumineux, dans un quartier calme et verdoyant ? Ne cherchez plus, cette bien est fait pour vous !

Situé à proximité du centre-ville, des commerces, des écoles et des transports en commun, cet appartement de 108 m² vous offre tout le confort et la modernité dont vous avez besoin, pompe à chaleur, volet électriques.

Au rez-de-chaussée, vous découvrirez un vaste salon-séjour ouvert sur un espace cuisine, ainsi qu'un WC indépendant. Le salon donne accès à une belle terrasse, idéale pour profiter des beaux jours, et à un jardin clôturé et arboré.

N'attendez plus, contactez-nous dès aujourd'hui pour visiter cet appartement coup de cœur !

Ce bien est commercialisé par Casavo.

Intéressé par ce bien ? Plus d'informations sur le site de Casavo.
Voir plus

Référence: 23727
Honoraires à la charge du vendeur.

Prêt immobilier

Vous souhaitez connaître votre capacité d’emprunt et trouver le meilleur crédit immobilier ?
Réaliser une simulation gratuite

Appartement à NOISY-LE-GRAND
Appartement à NOISY-LE-GRAND
Appartement à NOISY-LE-GRAND
Appartement à NOISY-LE-GRAND
Appartement à NOISY-LE-GRAND
Appartement à NOISY-LE-GRAND
Appartement à NOISY-LE-GRAND
Appartement à NOISY-LE-GRAND
Ce site est protégé par reCAPTCHA la Politique de confidentialité et les Conditions d’utilisation de Google s’appliquent.
Obtenir un prêt immobilier au meilleur taux ?

En poursuivant votre navigation sans modifier vos paramètres, vous acceptez l'utilisation de cookies susceptibles de réaliser des statistiques de visite. Cliquez ici pour plus d'informations