Bénéficiez des services de nos partenaires locaux soigneusement sélectionnés
pour vous accompagner dans votre parcours d'achat immobilier

Appartement

— Marseille-8e 13008 —
475 000 €
104 m²
4 pièces
parkingbalcon/terrasseascenseur

Nos partenaires locaux
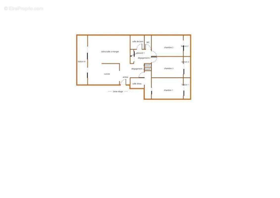
13006 MARSEILLE - QUARTIER CASTELLANE / PERRIER - 4 PIECES - 3 CHAMBRES DONT UNE SUITE PARENTALE - APPARTEMENT DE STANDING DE 104.0M² - SPACIEUX - LUMINEUX - REFAIT A NEUF ENTIEREMENT AVEC DES MATERIAUX DE QUALITES - BALCON DE 12M² - PARQUET - ASCENSEUR - CLIMATISATION - GARAGE - PROCHE DES COMMODITES - MEDECIN - COMMERCES - ECOLES - BUS METRO TRAMWAY - STADE VELODROME - A SAISIR RAPIDEMENT

effiCity, l'agence qui estime votre bien en ligne, vous propose ce MAGNIFIQUE appartement situé à Marseille 6 éme, dans le quartier prisé de Castellane.

Situé au 2ème étage d'un immeuble AVEC ASCENSEUR et GARDIEN, cet appartement de 104.0m² offre un espace de vie généreux et lumineux. L'ascenseur rend l'accès à ce bien pratique au quotidien.

Ce bien dispose d'une SPACIEUSE ENTREE LUMINEUSE, de suite à droite vous entrerez dans une magnifique CUISINE NEUVE entièrement équipée FOUR, MICRO ONDE, PLAQUE, HOTTE, LAVE VAISELLE, MACHINE A LAVER, ouverte sur sa magnifique pièce de vie avec PARQUET, CLIMATISATION, DOUBLE VITRAGE, toutes deux donnant sur son BALCON de 12M², parfait pour des moments de détente.

Côté nuit, TROIS CHAMBRES spacieuses toutes disposant de son propre balcon et de sa CLIMATISATION, avec leur magnifique parquet, dont UNE SUITE PARENTALE AVEC SALLE D'EAU ET DRESSING. Vous y trouverez également une autre salle de bain avec BAIGNOIRE et DOUBLE VASQUE, WC INDEPENDANT idéales pour une famille ou pour créer un espace de travail confortable.
Garage en location au pied de l'immeuble pour facilité votre stationnement. Photo meublé virtuellement.

Situé à proximité des commodités, des transports en commun et des écoles, cet appartement offre un cadre de vie idéal. Son emplacement stratégique vous permettra de profiter pleinement de tout ce que Marseille a à offrir.

Ne laissez pas passer cette opportunité exceptionnelle. Contactez-moi dès maintenant pour organiser une visite et laissez-vous envoûter par ce bien d'exception Jessica Impagnatiello [Coordonnées masquées] où bien par mail [Coordonnées masquées]
Les informations sur les risques auxquels ce bien est exposé sont disponibles sur le site Georisque : georisques. gouv. fr
Frédéric Contino - EI - est Agent Commercial mandataire en immobilier, immatriculé au Registre Spécial des Agents Commerciaux du Tribunal de Commerce de Marseille sous le n°751489758.
Siège social du mandant : effiCity, 48 avenue de Villiers - 75017 PARIS - Société par Actions Simplifiée, société au capital de 132 373,05 euros, immatriculée au RCS Paris 497 617 746 et titulaire de la Carte professionnelle CPI 75[Coordonnées masquées]02 025 - CCI Paris IDF - Caisse de Garantie : GALIAN Assurances 89 rue de la Boétie 75008 Paris
Voir plus

Référence: 199829
Bien en copropriété. Nombre de lots : 98. Charges de copropriété : 322 €.
Honoraires à la charge du vendeur.
Barème des honoraires
DPE
A
B
C
D
E
F
G
GES
A
B
C
D
E
F
G

Prêt immobilier

Vous souhaitez connaître votre capacité d’emprunt et trouver le meilleur crédit immobilier ?
Réaliser une simulation gratuite

Appartement à MARSEILLE-8E
Appartement à MARSEILLE-8E
Appartement à MARSEILLE-8E
Appartement à MARSEILLE-8E
Appartement à MARSEILLE-8E
Appartement à MARSEILLE-8E
Appartement à MARSEILLE-8E
Appartement à MARSEILLE-8E
Appartement à MARSEILLE-8E
Appartement à MARSEILLE-8E
Appartement à MARSEILLE-8E
Appartement à MARSEILLE-8E
Ce site est protégé par reCAPTCHA la Politique de confidentialité et les Conditions d’utilisation de Google s’appliquent.
Obtenir un prêt immobilier au meilleur taux ?

En poursuivant votre navigation sans modifier vos paramètres, vous acceptez l'utilisation de cookies susceptibles de réaliser des statistiques de visite. Cliquez ici pour plus d'informations