Bénéficiez des services de nos partenaires locaux soigneusement sélectionnés
pour vous accompagner dans votre parcours d'achat immobilier

Maison 163m² à nevers

— Nevers 58000 —
240 000 €
163 m²
7 pièces
balcon/terrasse

Nos partenaires locaux
58 000 NEVERS – QUARTIER DE LA RESISTANCE – MAISON DE CARACTÈRE 7 PIÈCES – 163 m²

EffiCity, l'agence qui estime votre bien en ligne, vous présente une magnifique maison de caractère en plein cœur du centre-ville de Nevers, offrant un cadre de vie exceptionnel, parfaitement desservi et proche de tous les services.

Un emplacement stratégique

Située dans le quartier central de Nevers, cette maison profite d'une localisation idéale : à quelques minutes du centre commercial Carré Colbert, qui regroupe commerces, services et galerie marchande.

L'axe autoroutier est très accessible : via l'autoroute A77, vous reliez Nevers à Paris en ≈ 2h30 selon l'itinéraire.

Proche des transports en commun et de la gare de Nevers, facilitant les déplacements.

Un charme authentique et de belles prestations

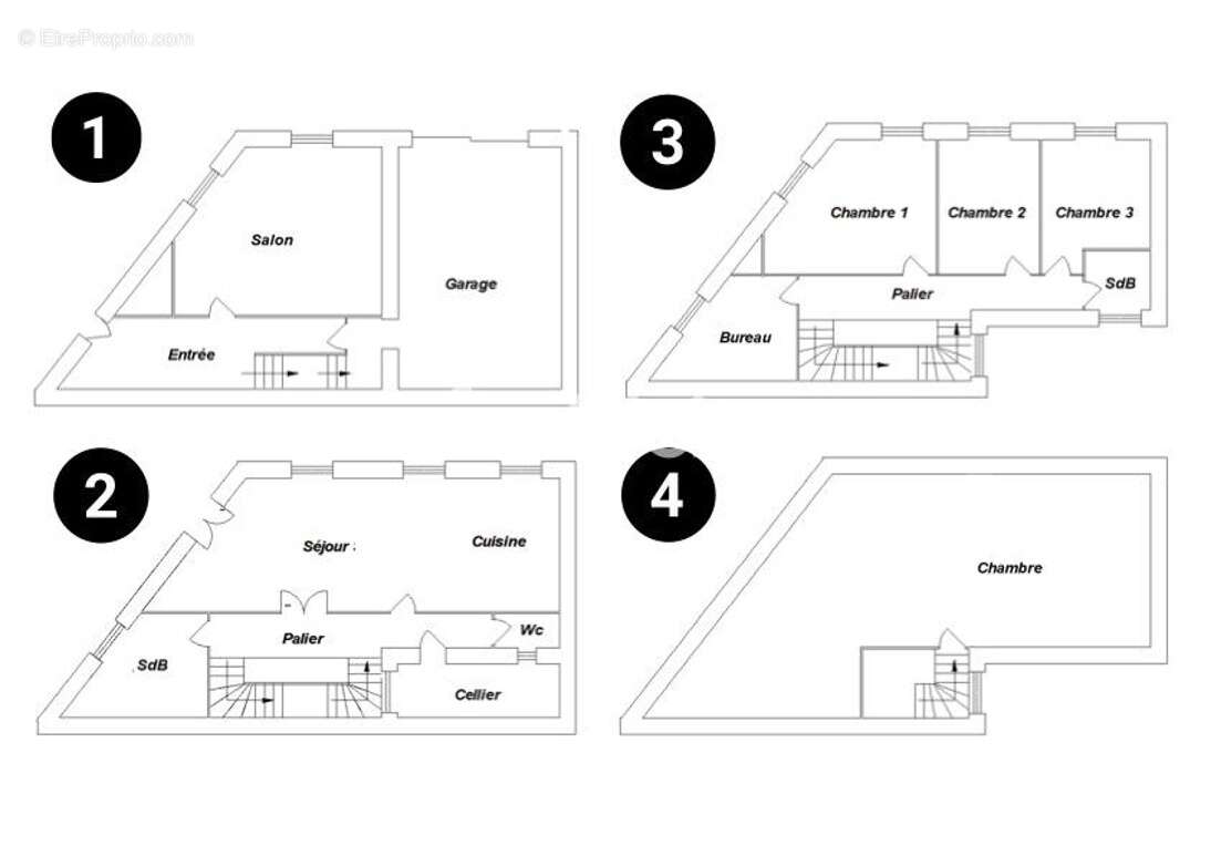
Maison sur quatre niveaux, construite dans les années 40, mêlant le charme traditionnel à un confort moderne.

163 m² habitables où chacun trouvera sa place
Au rez de chaussée : l'entrée donnant sur le coin salon, un accès intérieur au garage et à la cave
Au 1er étage, un grand séjour lumineux ouvert sur la cuisine moderne équipée et meublée. Vous aurez également un toilette séparé, une grande salle de bain et un cellier faisant office également de buanderie.
Un espace terrasse (côté "cour") avant l'accès au
2ème étage, 3 chambres avec un bureau et une salle d'eau refaite à neuf avec toilette.
Au 3ème étage : une grande chambre

Proximité des écoles et établissements scolaires

À deux pas de l'école maternelle de l'Oratoire, rue Marguerite-Duras, et de l'école élémentaire André-Cloix, rue Albert-Morlon.

Plusieurs lycées à proximité : Lycée Jules-Renard (11 boulevard Saint-Exupéry), Lycée de la Communication Alain-Colas (95 rue Destutt-de-Tracy), mais aussi le Centre Scolaire Notre-Dame pour un enseignement privé mais central.

Commerces & vie de quartier

Le Carré Colbert, centre commercial emblématique du centre-ville, propose des enseignes variées (Carrefour Market, H&M, FNAC…) et un véritable lieu de vie urbain.
La ville de Nevers met en place un plan de revitalisation urbaine, renforçant l'attractivité du commerce en centre, via son programme Action cœur de ville.
Association de commerçants locale “Les Vitrines de Nevers” : plus de 200 professionnels, une vie commerciale active et de proximité.

Points forts

Maison de caractère, rare sur le marché.

Grand potentiel SANS TRAVAUX

Emplacement premium : central, calme, bien desservi.

Proximité immédiate des écoles, des commerces et des transports.

Atout de vie urbaine + un vrai coin « vert » en ville.

Visite sur rendez-vous avec Dominique Lasneau
mailto:[Coordonnées masquées] – [Coordonnées masquées]
Les informations sur les risques auxquels ce bien est exposé sont disponibles sur le site Georisque : georisques. gouv. fr
Dominique Lasneau - EI - est Agent Commercial mandataire en immobilier, immatriculé au Registre Spécial des Agents Commerciaux du Tribunal de Commerce de Roanne sous le n°511593493.
Siège social du mandant : effiCity, 48 avenue de Villiers - 75017 PARIS - Société par Actions Simplifiée, société au capital de 132 373,05 euros, immatriculée au RCS Paris 497 617 746 et titulaire de la Carte professionnelle CPI 75[Coordonnées masquées]02 025 - CCI Paris IDF - Caisse de Garantie : GALIAN Assurances 89 rue de la Boétie 75008 Paris
Voir plus

Référence: 200125
Honoraires à la charge du vendeur.
Barème des honoraires
DPE
A
B
C
D
E
F
G
GES
A
B
C
D
E
F
G

Prêt immobilier

Vous souhaitez connaître votre capacité d’emprunt et trouver le meilleur crédit immobilier ?
Réaliser une simulation gratuite

Maison à NEVERS
Maison à NEVERS
Maison à NEVERS
Maison à NEVERS
Maison à NEVERS
Maison à NEVERS
Maison à NEVERS
Maison à NEVERS
Maison à NEVERS
Maison à NEVERS
Maison à NEVERS
Maison à NEVERS
Maison à NEVERS
Maison à NEVERS
Maison à NEVERS
Ce site est protégé par reCAPTCHA la Politique de confidentialité et les Conditions d’utilisation de Google s’appliquent.
Obtenir un prêt immobilier au meilleur taux ?

En poursuivant votre navigation sans modifier vos paramètres, vous acceptez l'utilisation de cookies susceptibles de réaliser des statistiques de visite. Cliquez ici pour plus d'informations