Bénéficiez des services de nos partenaires locaux soigneusement sélectionnés
pour vous accompagner dans votre parcours d'achat immobilier

Paris xvii - ternes - appartement de réception

— Paris-17e 75017 —
2 295 000 €
196 m²
7 pièces
parkingascenseur

Nos partenaires locaux
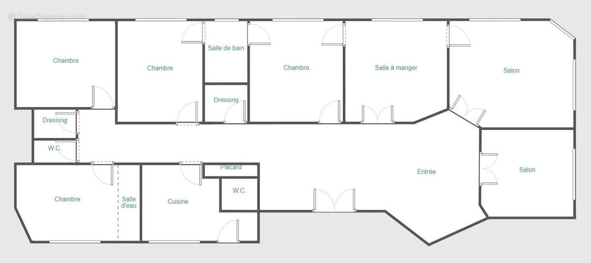
L’agence MAXIME DESPÈRES vous propose cet appartement de réception de 196,41 m², situé au cœur du quartier des Ternes, au sein d’un immeuble ancien de grand standing avec ascenseur. Traversant, lumineux, avec plan en étoile, moulures, parquet et belle hauteur sous plafond : tout le charme de l’ancien allié au confort moderne, ce bien se compose: d'une galerie d'entrée, d’un double séjour, d’une salle à manger, d’une cuisine indépendante équipée, de quatre chambres (possibilité 5), de deux salles de bains, d’un dressing et de deux WC séparés.
Une cave complète ce bien. Possibilité de Parking en option à proximité.
Profession libérale autorisée
Honoraires à la charge de l'acquéreur de 1% (prix hors honoraires: 2 272 050€). Pas de procédure en cours. Nombre total de lots : 51. Lots d’habitation : 46. Charges annuelles: 4495€/an. Les informations sur les risques auxquels ce bien est exposé sont disponibles sur le site Géorisques.
Voir plus

Référence: 86018611
Barème des honoraires
DPE
A
B
C
D
E
F
G
GES
A
B
C
D
E
F
G

Prêt immobilier

Vous souhaitez connaître votre capacité d’emprunt et trouver le meilleur crédit immobilier ?
Réaliser une simulation gratuite

Appartement à PARIS-17E
Appartement à PARIS-17E
Appartement à PARIS-17E
Appartement à PARIS-17E
Appartement à PARIS-17E
Appartement à PARIS-17E
Appartement à PARIS-17E
Appartement à PARIS-17E
Appartement à PARIS-17E
Appartement à PARIS-17E
Appartement à PARIS-17E
Appartement à PARIS-17E
Appartement à PARIS-17E
Appartement à PARIS-17E
Appartement à PARIS-17E
Appartement à PARIS-17E
Ce site est protégé par reCAPTCHA la Politique de confidentialité et les Conditions d’utilisation de Google s’appliquent.
Obtenir un prêt immobilier au meilleur taux ?

En poursuivant votre navigation sans modifier vos paramètres, vous acceptez l'utilisation de cookies susceptibles de réaliser des statistiques de visite. Cliquez ici pour plus d'informations